• 手机版

    扫码体验手机版

  • 微信公众号

    扫码关注公众号

登录注册
游客您好
第三方账号登陆

[衢州] 文华园6-1-4#119㎡现代——自然休闲风格

[复制链接]
发表于 2022-11-13 17:05:46 | 显示全部楼层 |阅读模式
自然休闲风格

格堂装饰为您全程记录装修全过程!

小区名称
文华园
房屋面积
119㎡
户型结构
套房
装修风格
现代
装修方式
半包
装修造价
查看请联系客服万元
设计师
江工
项目经理
刘工
装修公司
格堂装饰
完工实景
完工实景
水电全景
水电全景
VR全景
VR全景
设计说明
希望通过原始自然的材质去营造一个现代舒适且独具艺术气质的现代家居空间,空间布局尽可能开放,增加空间的通透性和趣味性,设计语言极简洁,没人任何多余的设计,为业主以后灵活使用空间提供了无限的可能性。
更多信息

效果图
2022_11_12_17_18_IMG_8602.PNG

2022_11_12_17_18_IMG_8603.PNG

2022_11_12_17_18_IMG_8604.PNG

2022_11_12_17_18_IMG_8605.PNG

2022_11_12_17_18_IMG_8606.PNG

2022_11_12_17_18_IMG_8607.PNG
回复

使用道具 举报

 楼主| 发表于 2022-11-13 17:06:23 | 显示全部楼层
本帖最后由 格堂月红 于 2023-5-13 12:56 编辑

目      录


回复 支持 反对

使用道具 举报

 楼主| 发表于 2022-11-13 17:07:10 | 显示全部楼层

原始结构图
2022_11_12_17_19_IMG_8608.PNG
回复 支持 反对

使用道具 举报

 楼主| 发表于 2022-11-13 17:07:28 | 显示全部楼层

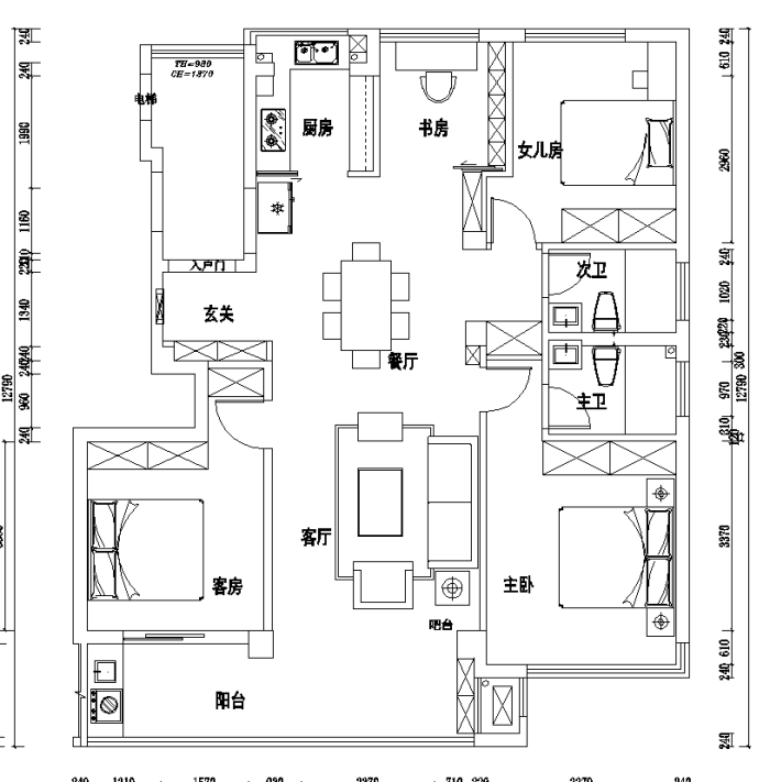
平面布置图
2022_11_12_17_19_IMG_8609.PNG
回复 支持 反对

使用道具 举报

 楼主| 发表于 2022-11-16 09:49:45 | 显示全部楼层

开工前师傅正在保护大门
IMG_20221109_084815.jpg

IMG_20221109_084914.jpg
回复 支持 反对

使用道具 举报

 楼主| 发表于 2022-11-16 09:50:06 | 显示全部楼层

门槛已经保护到位
IMG_20221109_084822.jpg
回复 支持 反对

使用道具 举报

 楼主| 发表于 2022-11-16 09:50:51 | 显示全部楼层

煤气表已经保护好了。
IMG_20221109_084827.jpg
回复 支持 反对

使用道具 举报

 楼主| 发表于 2022-11-16 09:52:09 | 显示全部楼层

下水管用格堂专用保护盖保护,防止砂石堵塞管道。
IMG_20221109_084828.jpg

IMG_20221109_084836.jpg

IMG_20221109_084841.jpg

IMG_20221109_084843.jpg
回复 支持 反对

使用道具 举报

 楼主| 发表于 2022-11-16 09:54:47 | 显示全部楼层

临时小便池已经安放好了:每一个施工现场都会配备临时小便斗,并且时刻保持干净卫生、保证工地环境干净、整洁。
IMG_20221109_084845.jpg
回复 支持 反对

使用道具 举报

 楼主| 发表于 2022-11-16 09:55:53 | 显示全部楼层

电梯口墙面和地面已经保护到位。
IMG_20221109_085218.jpg

IMG_20221109_085220.jpg

IMG_20221109_085224.jpg

IMG_20221109_085225.jpg

IMG_20221109_085227.jpg
回复 支持 反对

使用道具 举报

您需要登录后才可以回帖 登录 | 立即注册

本版积分规则

全国统一客服电话
0570-8028505

24x7小时免费咨询

  • 官方在线客服

    QQ客服:小西

    点击交谈

    QQ客服:良子

    点击交谈

    QQ客服:闵月

    点击交谈
  • 衢州市柯城区财富中心3号楼2楼

  • 衢州格堂装饰有限公司

  • 扫一扫关注官方微信

    获取一手特惠信息

快速回复 返回顶部 返回列表