• 手机版

    扫码体验手机版

  • 微信公众号

    扫码关注公众号

登录注册
游客您好
第三方账号登陆

[衢州] 文华园17-2-3#100㎡现代——热爱可抵岁月漫长

[复制链接]
发表于 2022-11-10 11:46:43 | 显示全部楼层 |阅读模式
热爱可抵岁月漫长

格堂装饰为您全程记录装修全过程!

小区名称
文华园
房屋面积
100㎡
户型结构
套房
装修风格
现代
装修方式
半包
装修造价
查看请联系客服万元
设计师
陈工
项目经理
施工
装修公司
格堂装饰
完工实景
完工实景
水电全景
水电全景
VR全景
VR全景
设计说明
生命里有许多正向时刻,也有许多负向时刻。
一个人快乐的秘诀,便是抓住正向的时刻,使
它更充盈;转化负向的时刻,使它得到清洗。
生活就是一半烟火,一半诗意。手持烟火谋生
活,心怀诗意以谋爱。
更多信息

效果图
65bbf8ca905179f56d86aa53ca4204f.jpg

aa9b6dc9737e3e6ceb0ae9df55faa5c.jpg
回复

使用道具 举报

 楼主| 发表于 2022-11-10 16:15:54 | 显示全部楼层
本帖最后由 格堂月红 于 2023-1-3 21:46 编辑

目      录

回复 支持 反对

使用道具 举报

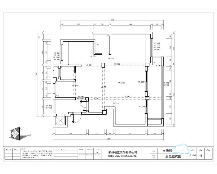
 楼主| 发表于 2022-11-10 16:16:44 | 显示全部楼层

原始结构图
6c52a237d4620bca8db398f466bc2cb.jpg
回复 支持 反对

使用道具 举报

 楼主| 发表于 2022-11-10 16:17:09 | 显示全部楼层

平面布置图
00b8a7dc9da54c1cabab9ad5960ff9a.jpg
回复 支持 反对

使用道具 举报

 楼主| 发表于 2022-11-10 16:18:34 | 显示全部楼层

设计师、项目经理正在布置开工桌
IMG_20221104_085634.jpg

IMG_20221104_090428.jpg

IMG_20221104_090515.jpg
回复 支持 反对

使用道具 举报

 楼主| 发表于 2022-11-10 16:20:09 | 显示全部楼层

临时小便池已经安放好了:每一个施工现场都会配备临时小便斗,并且时刻保持干净卫生、保证工地环境干净、整洁。
IMG_20221104_090040.jpg
回复 支持 反对

使用道具 举报

 楼主| 发表于 2022-11-10 16:21:01 | 显示全部楼层

下水管用格堂专用保护盖保护,防止砂石堵塞管道。
IMG_20221104_090205.jpg
回复 支持 反对

使用道具 举报

 楼主| 发表于 2022-11-10 16:21:28 | 显示全部楼层

煤气表已经保护到位
IMG_20221104_090237.jpg
回复 支持 反对

使用道具 举报

 楼主| 发表于 2022-11-10 16:22:54 | 显示全部楼层

电梯口墙面和地面已经保护到位。
IMG_20221104_093429.jpg

IMG_20221104_093427.jpg

IMG_20221104_093426.jpg

IMG_20221104_093422.jpg

IMG_20221104_093430.jpg
回复 支持 反对

使用道具 举报

 楼主| 发表于 2022-11-10 16:23:51 | 显示全部楼层

电梯口对角
IMG_20221104_093442.jpg

IMG_20221104_093444.jpg

IMG_20221104_093440.jpg

IMG_20221104_093436.jpg

IMG_20221104_093438.jpg
回复 支持 反对

使用道具 举报

您需要登录后才可以回帖 登录 | 立即注册

本版积分规则

全国统一客服电话
0570-8028505

24x7小时免费咨询

  • 官方在线客服

    QQ客服:小西

    点击交谈

    QQ客服:良子

    点击交谈

    QQ客服:闵月

    点击交谈
  • 衢州市柯城区财富中心3号楼2楼

  • 衢州格堂装饰有限公司

  • 扫一扫关注官方微信

    获取一手特惠信息

快速回复 返回顶部 返回列表