• 手机版

    扫码体验手机版

  • 微信公众号

    扫码关注公众号

登录注册
游客您好
第三方账号登陆

[江山] 揽月湾12# 132m2现代-潮流之家

[复制链接]
发表于 2022-11-9 09:07:52 | 显示全部楼层 |阅读模式
揽月湾12# 132m2现代-潮流之家

格堂装饰为您全程记录装修全过程!

小区名称
揽月湾
房屋面积
132㎡
户型结构
框架结构
装修风格
现代
装修方式
半包
装修造价
查看请联系客服万元
设计师
王工
项目经理
郑工
装修公司
格堂装饰
完工实景
完工实景
水电全景
水电全景
VR全景
VR全景
设计说明
设计理念:房屋的主人很年轻,拥有很多突破常规的想法,向往既实用又宽阔的居家环境,对设计接受度高,喜欢自由、随意、热闹的氛围,经常邀请朋友来家里聚餐,希望各个空间都能完美的地容纳家人朋友的到来。
更多信息
回复

使用道具 举报

 楼主| 发表于 2022-11-9 09:08:34 | 显示全部楼层
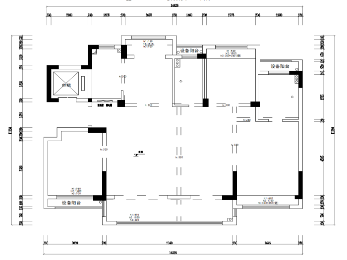
原始结构图

1667953468708.png
回复 支持 反对

使用道具 举报

 楼主| 发表于 2022-11-9 09:09:26 | 显示全部楼层
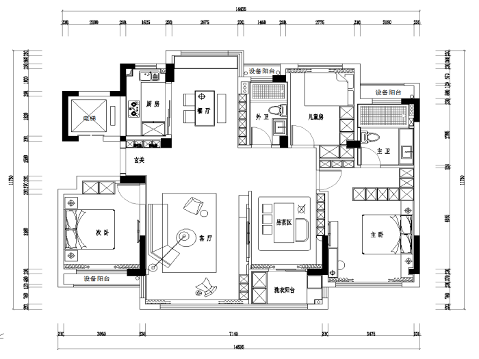
平面布置图

1667953420983.png

回复 支持 反对

使用道具 举报

 楼主| 发表于 2022-11-9 09:23:05 | 显示全部楼层
开工前大门先保护到位


a87804e04918cba2e273a4fe72f794c.jpg

0fe5894a0f4269773427dcd3f531eb6.jpg

回复 支持 反对

使用道具 举报

 楼主| 发表于 2022-11-9 09:25:00 | 显示全部楼层
门槛保护起来,防止磕碰

e27dfb8accbcff26d2e3e2c467404fb.jpg

307aa762543ae7e6e080f1ec6ccda12.jpg


回复 支持 反对

使用道具 举报

 楼主| 发表于 2022-11-9 09:26:21 | 显示全部楼层
卫生间的简易马桶安装到位,防止后期施工中沙石堵塞进入,美观又干净!

0272a674e5f34a9da7d1877624e6ab9.jpg

回复 支持 反对

使用道具 举报

 楼主| 发表于 2022-11-9 09:28:00 | 显示全部楼层
排水管道用格堂装饰专用保护盖保护,防止后期施工砂石堵塞管道

0a42e515328542454c50c7388a399e1.jpg

10b95adf546ae8d1788711805a98dd3.jpg

e50c4207b0ab9415c8ea71600417d59.jpg

ed10f53be0e9e0b824125dd4216f8a6.jpg

e50c4207b0ab9415c8ea71600417d59.jpg

回复 支持 反对

使用道具 举报

 楼主| 发表于 2022-11-9 09:29:05 | 显示全部楼层
煤气表已经保护到位。

704a8340f6ac787269e4319d7ceeacd.jpg


回复 支持 反对

使用道具 举报

 楼主| 发表于 2022-11-9 09:30:35 | 显示全部楼层
开工锤已准备好

f06fe9dde5a2c32dbed36e7f993dfb5.jpg

回复 支持 反对

使用道具 举报

 楼主| 发表于 2022-11-9 09:31:54 | 显示全部楼层
送给业主美丽的鲜花

244800da864c362d276f6d791f713d8.jpg

回复 支持 反对

使用道具 举报

您需要登录后才可以回帖 登录 | 立即注册

本版积分规则

全国统一客服电话
0570-8028505

24x7小时免费咨询

  • 官方在线客服

    QQ客服:小西

    点击交谈

    QQ客服:良子

    点击交谈

    QQ客服:闵月

    点击交谈
  • 衢州市柯城区财富中心3号楼2楼

  • 衢州格堂装饰有限公司

  • 扫一扫关注官方微信

    获取一手特惠信息

快速回复 返回顶部 返回列表