• 手机版

    扫码体验手机版

  • 微信公众号

    扫码关注公众号

登录注册
游客您好
第三方账号登陆

[龙游] 文成小区14-1-11#78 ㎡现代----有爱之家

[复制链接]
发表于 2022-10-25 17:02:13 | 显示全部楼层 |阅读模式
有爱之家

格堂装饰为您全程记录装修全过程!

小区名称
文成小区
房屋面积
78㎡
户型结构
框架
装修风格
现代
装修方式
半包
装修造价
查看请联系客服万元
设计师
陈工
项目经理
杨工
装修公司
格堂装饰
完工实景
完工实景
水电全景
水电全景
VR全景
VR全景
设计说明
设计理念: 原始户型主卧偏大,将阳台进行改造,改造后变成了大主卧与大客厅,使用面积不变小。功能区基本依照原有格局,但在此基础上增添了较多收纳空间,使得空间利用率最大化。
更多信息
本帖最后由 格堂艳子 于 2023-3-26 11:34 编辑

客餐厅效果图
IMG_2774(20221025-080914).JPG
卧室效果图
IMG_2775(20221025-080917).JPG



原始结构图
IMG_2773(20221025-080909).JPG
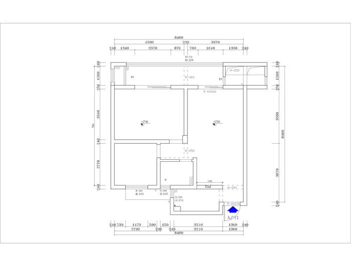
平面布置图
IMG_2772(20221025-080903).JPG


目      录
1  开工                拆除阶段9泥木工完工     油漆材料
2砌墙放样           砌墙阶段10油漆施工     
3黄墙绿地          水电放样11柜子安装
4水电开槽          水电材料12橱柜安装
5水电中途         水电完工图13灯具安装
6水电细节         水电验收14竣工完工图
7防水阶段         木工材料15竣工验收
8泥工阶段         木工阶段16



回复

使用道具 举报

 楼主| 发表于 2022-10-25 17:08:07 | 显示全部楼层
项目经理正在开工前准备

IMG_2463.JPG

IMG_2464.JPG

IMG_2465.JPG
回复 支持 反对

使用道具 举报

 楼主| 发表于 2022-10-25 17:09:06 | 显示全部楼层
电梯口墙面和地面都贴好了格堂专用的保护垫。
IMG_2483(1).JPG

IMG_2484(1).JPG

IMG_2485(1).JPG

IMG_2486(1).JPG

IMG_2491(1).JPG

回复 支持 反对

使用道具 举报

 楼主| 发表于 2022-10-25 17:10:10 | 显示全部楼层
电梯口对角
IMG_2487(1).JPG

IMG_2488(1).JPG

IMG_2489(1).JPG

IMG_2490(1).JPG

IMG_2491(1).JPG






回复 支持 反对

使用道具 举报

 楼主| 发表于 2022-10-25 17:11:31 | 显示全部楼层
排水管道用格堂装饰专用保护盖保护,防止后期施工砂石堵塞管道
IMG_2471.JPG

IMG_2473(1).JPG
回复 支持 反对

使用道具 举报

 楼主| 发表于 2022-10-25 17:12:04 | 显示全部楼层
临时马桶:每一个施工现场都会配备临时小便斗,并且时刻保持干净卫生、保证工地环境干净、整洁。

IMG_2472(1).JPG
回复 支持 反对

使用道具 举报

 楼主| 发表于 2022-10-25 17:13:19 | 显示全部楼层
开工前大门已保护到位,防止磕碰

IMG_2479(1).JPG

IMG_2480(1).JPG
回复 支持 反对

使用道具 举报

 楼主| 发表于 2022-10-25 17:19:59 | 显示全部楼层
燃气表保护到位

IMG_2493(1).JPG
回复 支持 反对

使用道具 举报

 楼主| 发表于 2022-10-25 17:22:22 | 显示全部楼层
原始图

IMG_2469.JPG

IMG_2468.JPG

IMG_2470.JPG

IMG_2481(1).JPG

IMG_2482(1).JPG
回复 支持 反对

使用道具 举报

 楼主| 发表于 2022-10-25 17:23:13 | 显示全部楼层
礼炮已准备好

IMG_2476(1).JPG
回复 支持 反对

使用道具 举报

您需要登录后才可以回帖 登录 | 立即注册

本版积分规则

全国统一客服电话
0570-8028505

24x7小时免费咨询

  • 官方在线客服

    QQ客服:小西

    点击交谈

    QQ客服:良子

    点击交谈

    QQ客服:闵月

    点击交谈
  • 衢州市柯城区财富中心3号楼2楼

  • 衢州格堂装饰有限公司

  • 扫一扫关注官方微信

    获取一手特惠信息

快速回复 返回顶部 返回列表