• 手机版

    扫码体验手机版

  • 微信公众号

    扫码关注公众号

登录注册
游客您好
第三方账号登陆

[衢州] 陶然里3-2-9#129㎡新中式——【舍 得】

[复制链接]
发表于 2022-10-23 11:47:13 | 显示全部楼层 |阅读模式
陶然里3-2-9#129㎡新中式——【舍 得】

格堂装饰为您全程记录装修全过程!

小区名称
陶然里
房屋面积
129㎡
户型结构
套房
装修风格
新中式
装修方式
全包
装修造价
查看请联系客服万元
设计师
徐工
项目经理
徐工
装修公司
格堂装饰
完工实景
完工实景
水电全景
水电全景
VR全景
VR全景
设计说明
人与自然造化相合,久而久之亦达到一种微妙平衡。东方余韵的注脚,透过格栅、藤编、卯榫等传统工艺的造物无声串联;禅意雅致中,大化生机。或品茗一盏,或手书一副;茶香袅袅,墨宝缭绕……
更多信息
效果图
8c7ff9f7d6d1ae8ead367dda1609527.jpg

84d890b37abf3a802c7856d7f74277a.jpg
回复

使用道具 举报

 楼主| 发表于 2022-10-23 11:58:23 | 显示全部楼层
本帖最后由 格堂彩霞 于 2022-11-10 16:02 编辑

目      录

回复 支持 反对

使用道具 举报

 楼主| 发表于 2022-10-23 11:58:44 | 显示全部楼层
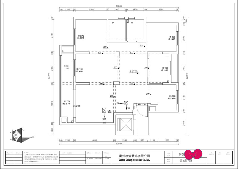
原始结构图
1666495666810_副本.jpg
回复 支持 反对

使用道具 举报

 楼主| 发表于 2022-10-23 11:58:59 | 显示全部楼层
平面布置图
1666495666832_副本.jpg
回复 支持 反对

使用道具 举报

 楼主| 发表于 2022-10-23 15:13:03 | 显示全部楼层
开工仪式准备,开工横幅、鲜花、礼花准备到位
IMG_20221020_082134.jpg

回复 支持 反对

使用道具 举报

 楼主| 发表于 2022-10-23 15:16:10 | 显示全部楼层
大门保护,防止后期磕碰
IMG_20221020_082240.jpg

IMG_20221020_082245.jpg

回复 支持 反对

使用道具 举报

 楼主| 发表于 2022-10-23 15:18:16 | 显示全部楼层
电梯楼道地面保护到位
IMG_20221020_082249_副本.jpg

IMG_20221020_082251.jpg

IMG_20221020_082252.jpg

IMG_20221020_082250.jpg

IMG_20221020_082247.jpg
回复 支持 反对

使用道具 举报

 楼主| 发表于 2022-10-23 15:18:46 | 显示全部楼层
电梯楼道地面保护到位
IMG_20221020_082538_副本.jpg

IMG_20221020_082303.jpg

IMG_20221020_082304.jpg

IMG_20221020_082306.jpg

IMG_20221020_082259.jpg

回复 支持 反对

使用道具 举报

 楼主| 发表于 2022-10-23 15:21:04 | 显示全部楼层
拆除放样,按照图纸放样,确保放样无误
IMG_20221020_083346_副本.jpg

IMG_20221020_082644.jpg

IMG_20221020_082615.jpg

IMG_20221020_082604_副本.jpg
回复 支持 反对

使用道具 举报

 楼主| 发表于 2022-10-23 15:22:40 | 显示全部楼层
在墙上做好拆除标记
IMG_20221020_082546.jpg

IMG_20221020_082552.jpg

IMG_20221020_082601.jpg
回复 支持 反对

使用道具 举报

您需要登录后才可以回帖 登录 | 立即注册

本版积分规则

全国统一客服电话
0570-8028505

24x7小时免费咨询

  • 官方在线客服

    QQ客服:小西

    点击交谈

    QQ客服:良子

    点击交谈

    QQ客服:闵月

    点击交谈
  • 衢州市柯城区财富中心3号楼2楼

  • 衢州格堂装饰有限公司

  • 扫一扫关注官方微信

    获取一手特惠信息

快速回复 返回顶部 返回列表