• 手机版

    扫码体验手机版

  • 微信公众号

    扫码关注公众号

登录注册
游客您好
第三方账号登陆

[衢州] 拾光里19-1-4#80㎡现代——随心而居

[复制链接]
发表于 2022-10-13 09:21:15 | 显示全部楼层 |阅读模式
随心而居

格堂装饰为您全程记录装修全过程!

小区名称
拾光里
房屋面积
80㎡
户型结构
套房
装修风格
现代
装修方式
半包
装修造价
查看请联系客服万元
设计师
郑工
项目经理
周工
装修公司
格堂装饰
完工实景
完工实景
水电全景
水电全景
VR全景
VR全景
设计说明
关于家,我们各有归属,也各有故事。世界那么大,有你就有家,日子的些许慌张与忙乱,总能被生活的小事所抚慰。触摸生活的真实,享受居家的美好,在家中享受幸福,是一切抱负的最终目的。
更多信息
本帖最后由 格堂月红 于 2022-10-13 09:52 编辑

效果图
mmexport1665409870365.png

mmexport1665409876788.png

mmexport1665409883326.png

mmexport1665409890405.png
回复

使用道具 举报

 楼主| 发表于 2022-10-13 09:24:27 | 显示全部楼层
本帖最后由 格堂月红 于 2023-1-12 09:14 编辑

目      录


回复 支持 反对

使用道具 举报

 楼主| 发表于 2022-10-13 09:24:52 | 显示全部楼层

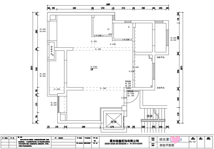
原始结构图
mmexport1665409941789.png
回复 支持 反对

使用道具 举报

 楼主| 发表于 2022-10-13 09:25:21 | 显示全部楼层

平面布置图
mmexport1665409935391.png
回复 支持 反对

使用道具 举报

 楼主| 发表于 2022-10-13 09:27:28 | 显示全部楼层

设计师、项目经理正在布置开工桌。
IMG_20221010_133314.jpg

IMG_20221010_133345.jpg

IMG_20221010_133400.jpg

IMG_20221010_133528.jpg
回复 支持 反对

使用道具 举报

 楼主| 发表于 2022-10-13 09:29:29 | 显示全部楼层

下水管用格堂专用保护盖保护,防止砂石堵塞管道。
IMG_20221010_133734.jpg

IMG_20221010_133739.jpg

IMG_20221010_133759.jpg
回复 支持 反对

使用道具 举报

 楼主| 发表于 2022-10-13 09:30:10 | 显示全部楼层

临时小便池已经安放好了:每一个施工现场都会配备临时小便斗,并且时刻保持干净卫生、保证工地环境干净、整洁。
IMG_20221010_133750.jpg
回复 支持 反对

使用道具 举报

 楼主| 发表于 2022-10-13 09:31:07 | 显示全部楼层

大门已经保护好了
IMG_20221010_134447.jpg

IMG_20221010_134702.jpg
回复 支持 反对

使用道具 举报

 楼主| 发表于 2022-10-13 09:32:37 | 显示全部楼层

电梯口墙面和地面已经保护到位。
IMG_20221010_140424.jpg

IMG_20221010_140427.jpg

IMG_20221010_140431.jpg

IMG_20221010_140433.jpg

IMG_20221010_140435.jpg
回复 支持 反对

使用道具 举报

 楼主| 发表于 2022-10-13 09:33:12 | 显示全部楼层

电梯口对角
IMG_20221010_140444.jpg

IMG_20221010_140446.jpg

IMG_20221010_140448.jpg

IMG_20221010_140450.jpg

IMG_20221010_140452.jpg
回复 支持 反对

使用道具 举报

您需要登录后才可以回帖 登录 | 立即注册

本版积分规则

全国统一客服电话
0570-8028505

24x7小时免费咨询

  • 官方在线客服

    QQ客服:小西

    点击交谈

    QQ客服:良子

    点击交谈

    QQ客服:闵月

    点击交谈
  • 衢州市柯城区财富中心3号楼2楼

  • 衢州格堂装饰有限公司

  • 扫一扫关注官方微信

    获取一手特惠信息

快速回复 返回顶部 返回列表