• 手机版

    扫码体验手机版

  • 微信公众号

    扫码关注公众号

登录注册
游客您好
第三方账号登陆

[龙游] 灵江花园A2-1#224㎡现代简约——【素雅】

[复制链接]
发表于 2022-10-8 12:00:36 | 显示全部楼层 |阅读模式
【素雅】

格堂装饰为您全程记录装修全过程!

小区名称
灵江花园
房屋面积
224㎡
户型结构
别墅
装修风格
现代
装修方式
半包
装修造价
查看请联系客服万元
设计师
梁工
项目经理
杨工
装修公司
格堂装饰
完工实景
完工实景
水电全景
水电全景
VR全景
VR全景
设计说明
感受空间状态、顺应空间逻辑,再而应势而变;在实用主义美学所需之下,精修各区域比例、细部连接的形式,将空间的合理性、家居的感性、集结为生活的序,继而掀开生活的又一章。
更多信息
回复

使用道具 举报

 楼主| 发表于 2022-10-8 12:02:06 | 显示全部楼层
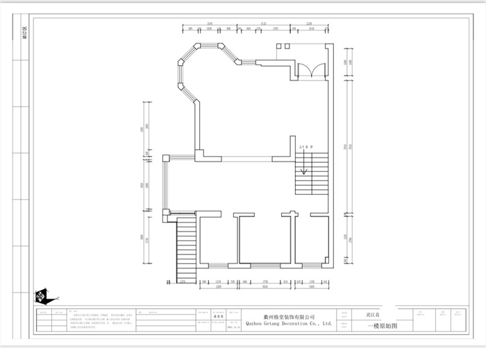
一楼原始结构图
IMG_9098(20221008-111326).JPG

二楼原始结构图
IMG_9099(20221008-111348).JPG


回复 支持 反对

使用道具 举报

 楼主| 发表于 2022-10-8 12:03:24 | 显示全部楼层
一楼平面布置图
IMG_9100(20221008-111408).JPG
二楼平面布置图
IMG_9101(20221008-111424).JPG
回复 支持 反对

使用道具 举报

 楼主| 发表于 2022-10-8 12:04:32 | 显示全部楼层
开工布置
IMG_7805.JPG
回复 支持 反对

使用道具 举报

 楼主| 发表于 2022-10-8 12:05:52 | 显示全部楼层
本帖最后由 格堂小静 于 2022-10-8 12:08 编辑

二楼客厅原始图
IMG_7807.JPG

IMG_7808.JPG
回复 支持 反对

使用道具 举报

 楼主| 发表于 2022-10-8 12:06:18 | 显示全部楼层
IMG_7809.JPG

IMG_7810.JPG

IMG_7814.JPG

IMG_7815.JPG
回复 支持 反对

使用道具 举报

 楼主| 发表于 2022-10-8 12:07:48 | 显示全部楼层
三楼房间卫生间原始图
IMG_7811.JPG

IMG_7812.JPG

IMG_7813.JPG
回复 支持 反对

使用道具 举报

 楼主| 发表于 2022-10-8 12:08:42 | 显示全部楼层
一楼客厅
IMG_7806.JPG

IMG_7816.JPG
回复 支持 反对

使用道具 举报

 楼主| 发表于 2022-10-8 12:09:41 | 显示全部楼层
厨房
IMG_7817.JPG
回复 支持 反对

使用道具 举报

 楼主| 发表于 2022-10-8 12:12:01 | 显示全部楼层
师傅现场对接拆墙放样
IMG_7818.JPG

IMG_7834.JPG

回复 支持 反对

使用道具 举报

您需要登录后才可以回帖 登录 | 立即注册

本版积分规则

全国统一客服电话
0570-8028505

24x7小时免费咨询

  • 官方在线客服

    QQ客服:小西

    点击交谈

    QQ客服:良子

    点击交谈

    QQ客服:闵月

    点击交谈
  • 衢州市柯城区财富中心3号楼2楼

  • 衢州格堂装饰有限公司

  • 扫一扫关注官方微信

    获取一手特惠信息

快速回复 返回顶部 返回列表