• 手机版

    扫码体验手机版

  • 微信公众号

    扫码关注公众号

登录注册
游客您好
第三方账号登陆

[衢州] 金誉府7-3-70#118㎡现代——温柔的家

[复制链接]
发表于 2022-10-7 17:23:10 | 显示全部楼层 |阅读模式
金誉府7-3-70#118㎡现代——温柔的家

格堂装饰为您全程记录装修全过程!

小区名称
金誉府7-3-70#118㎡现代——温柔的家
房屋面积
118㎡
户型结构
套房
装修风格
现代
装修方式
半包
装修造价
查看请联系客服万元
设计师
吴工
项目经理
胡工
装修公司
格堂装饰
完工实景
完工实景
水电全景
水电全景
VR全景
VR全景
设计说明
温柔的家设计说明:“用心对待生活,才能感受生活的美好,一个温柔的家,更让人感到幸福。
更多信息
效果图
324471c3d9af1b3f2fbd22065d5d0d5.png

b3adb5af15f1bdae3ee6ab72c89ff41.jpg
回复

使用道具 举报

 楼主| 发表于 2022-10-7 17:23:46 | 显示全部楼层
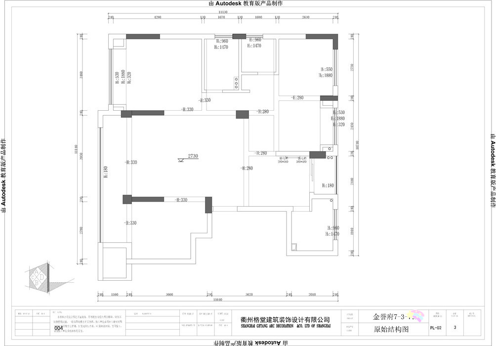
原始结构图
277e8607b6dfb936f945bdfa7c908a9.jpg
回复 支持 反对

使用道具 举报

 楼主| 发表于 2022-10-7 17:24:14 | 显示全部楼层
平面布置图

12bd6c36eb5d8c11a320b5dc2a61bfb.jpg
回复 支持 反对

使用道具 举报

 楼主| 发表于 2022-10-7 17:24:36 | 显示全部楼层
本帖最后由 格堂陈辰 于 2023-1-8 15:42 编辑

目      录


回复 支持 反对

使用道具 举报

 楼主| 发表于 2022-10-7 17:25:08 | 显示全部楼层
电梯口保护
IMG_20221007_093358.jpg

IMG_20221007_093401.jpg

IMG_20221007_093413.jpg

IMG_20221007_093407.jpg

IMG_20221007_093410.jpg
回复 支持 反对

使用道具 举报

 楼主| 发表于 2022-10-7 17:25:52 | 显示全部楼层
本帖最后由 格堂陈辰 于 2022-10-7 17:27 编辑

电梯口对角
IMG_20221007_093454.jpg

IMG_20221007_093457.jpg

IMG_20221007_093503.jpg

IMG_20221007_093459.jpg

IMG_20221007_093501.jpg
回复 支持 反对

使用道具 举报

 楼主| 发表于 2022-10-7 17:27:38 | 显示全部楼层
门槛保护
IMG_20221007_093506.jpg
回复 支持 反对

使用道具 举报

 楼主| 发表于 2022-10-7 17:28:07 | 显示全部楼层
大门保护

回复 支持 反对

使用道具 举报

 楼主| 发表于 2022-10-7 17:28:43 | 显示全部楼层
临时马桶:每一个施工现场都会配备临时小便斗,并且时刻保持干净卫生、保证工地环境干净、整洁
IMG_20221007_094357.jpg
回复 支持 反对

使用道具 举报

 楼主| 发表于 2022-10-7 17:29:18 | 显示全部楼层
开工前下水管用格堂专用保护盖保护,防止砂石堵塞管道。
IMG_20221007_094517.jpg
回复 支持 反对

使用道具 举报

您需要登录后才可以回帖 登录 | 立即注册

本版积分规则

全国统一客服电话
0570-8028505

24x7小时免费咨询

  • 官方在线客服

    QQ客服:小西

    点击交谈

    QQ客服:良子

    点击交谈

    QQ客服:闵月

    点击交谈
  • 衢州市柯城区财富中心3号楼2楼

  • 衢州格堂装饰有限公司

  • 扫一扫关注官方微信

    获取一手特惠信息

快速回复 返回顶部 返回列表