• 手机版

    扫码体验手机版

  • 微信公众号

    扫码关注公众号

登录注册
游客您好
第三方账号登陆

[衢州] 陶然里4-2-20#74㎡现代——自由生长

[复制链接]
发表于 2022-9-30 15:38:10 | 显示全部楼层 |阅读模式
陶然里4-2-20#74㎡现代——自由生长

格堂装饰为您全程记录装修全过程!

小区名称
陶然里
房屋面积
74㎡
户型结构
套房
装修风格
现代
装修方式
半包
装修造价
查看请联系客服万元
设计师
王工
项目经理
余工
装修公司
格堂装饰
完工实景
完工实景
水电全景
水电全景
VR全景
VR全景
设计说明
微风在园中唤起一阵阵花浪,就像那静谧、柔弱的大海。浪花在绿叶丛中流逝,于是又现出花园和绿色的大海。翠绿的群山向大河奔去,只有牧童在这里欢乐歌舞。玫瑰花儿绽开了金色的花瓣, 给这颗童心带来了欢娱。”——切斯瓦夫·米沃
更多信息
本帖最后由 格堂陈辰 于 2022-9-30 16:00 编辑

效果图
3.png
4.png
回复

使用道具 举报

 楼主| 发表于 2022-9-30 15:38:57 | 显示全部楼层
本帖最后由 格堂陈辰 于 2022-9-30 16:01 编辑

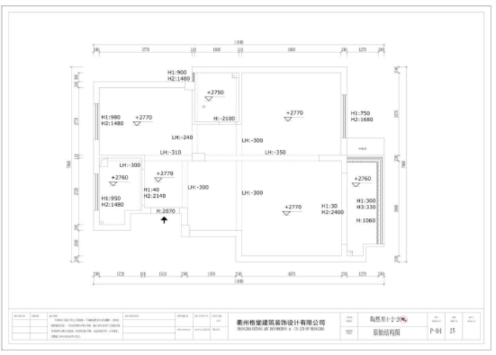
原始结构图
1.png

回复 支持 反对

使用道具 举报

 楼主| 发表于 2022-9-30 15:39:25 | 显示全部楼层
本帖最后由 格堂陈辰 于 2022-9-30 16:01 编辑

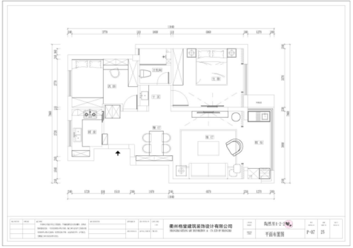
平面布置图
2.png
回复 支持 反对

使用道具 举报

 楼主| 发表于 2022-9-30 15:39:54 | 显示全部楼层
回复 支持 反对

使用道具 举报

 楼主| 发表于 2022-9-30 15:48:49 | 显示全部楼层

电梯口保护到位
IMG_20220928_075634.jpg

IMG_20220928_075636.jpg

IMG_20220928_075642.jpg

IMG_20220928_075638.jpg

IMG_20220928_075640.jpg

回复 支持 反对

使用道具 举报

 楼主| 发表于 2022-9-30 15:49:45 | 显示全部楼层
电梯口对角
IMG_20220928_075649.jpg

IMG_20220928_075651.jpg

IMG_20220928_075653.jpg

IMG_20220928_075657.jpg
回复 支持 反对

使用道具 举报

 楼主| 发表于 2022-9-30 15:50:32 | 显示全部楼层
煤气表 保护 到位
c5b583368209b81cfc4770bed1fe70e.jpg
回复 支持 反对

使用道具 举报

 楼主| 发表于 2022-9-30 15:52:55 | 显示全部楼层

临时马桶安放到位  保持工地卫生干净

回复 支持 反对

使用道具 举报

 楼主| 发表于 2022-9-30 15:53:23 | 显示全部楼层
水管用格堂专用保护盖保护,防止砂石堵塞管道

回复 支持 反对

使用道具 举报

 楼主| 发表于 2022-9-30 15:54:17 | 显示全部楼层

礼炮已经准备好了
IMG_20220928_080704.jpg
回复 支持 反对

使用道具 举报

您需要登录后才可以回帖 登录 | 立即注册

本版积分规则

全国统一客服电话
0570-8028505

24x7小时免费咨询

  • 官方在线客服

    QQ客服:小西

    点击交谈

    QQ客服:良子

    点击交谈

    QQ客服:闵月

    点击交谈
  • 衢州市柯城区财富中心3号楼2楼

  • 衢州格堂装饰有限公司

  • 扫一扫关注官方微信

    获取一手特惠信息

快速回复 返回顶部 返回列表