• 手机版

    扫码体验手机版

  • 微信公众号

    扫码关注公众号

登录注册
游客您好
第三方账号登陆

[衢州] 香缇公馆8--2-#300㎡现代——【时光正好 晚风温柔】

[复制链接]
发表于 2022-9-29 15:57:27 | 显示全部楼层 |阅读模式
【时光正好 晚风温柔】

格堂装饰为您全程记录装修全过程!

小区名称
香缇公馆
房屋面积
300㎡
户型结构
别墅
装修风格
现代
装修方式
半包
装修造价
查看请联系客服万元
设计师
梁工
项目经理
刘工
装修公司
格堂装饰
完工实景
完工实景
水电全景
水电全景
VR全景
VR全景
设计说明
真正适合生活的居家空间 第一要义便是回归到生活本身 于生活中体悟温馨蕴意 我们希望在回家之后的时光里,你可以放下被追逐的疲惫,被重压负荷的倦怠……而只是沉醉于自身向心的解读。
更多信息

效果图
5a978039d449d4411d4a8c9becb14a5.jpg

709d9684d9cf04479c8bf07b83321ea.jpg
回复

使用道具 举报

 楼主| 发表于 2022-9-29 15:57:43 | 显示全部楼层
本帖最后由 格堂飞飞 于 2023-1-8 14:59 编辑

开工
拆改
砌墙阶段
水电放样
水电材料
水电阶段
水电图
回复 支持 反对

使用道具 举报

 楼主| 发表于 2022-9-29 15:58:28 | 显示全部楼层

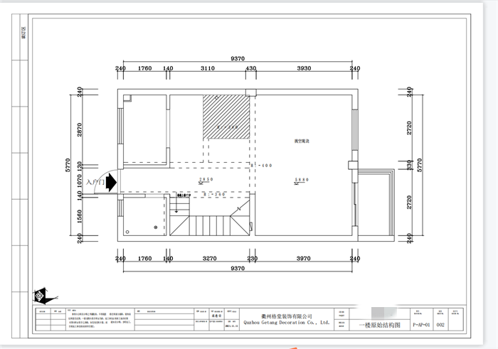
原始结构图
截图20220929154323.png

截图20220929154413.png

截图20220929154442.png

截图20220929154503.png
回复 支持 反对

使用道具 举报

 楼主| 发表于 2022-9-29 15:59:15 | 显示全部楼层
平面布置图
截图20220929154524.png

截图20220929154550.png

截图20220929154617.png

截图20220929154642.png

截图20220929154707.png
回复 支持 反对

使用道具 举报

 楼主| 发表于 2022-9-29 16:12:23 | 显示全部楼层

煤气表保护好了,防止磕碰哦!
IMG_3895.JPG
回复 支持 反对

使用道具 举报

 楼主| 发表于 2022-9-29 16:13:19 | 显示全部楼层

临时马桶安装好了,方便师傅使用,要讲究卫生哦!
IMG_3900.JPG
回复 支持 反对

使用道具 举报

 楼主| 发表于 2022-9-29 16:14:57 | 显示全部楼层

下水管用格堂专用保护盖保护,防止砂石堵塞管道。

IMG_3901.JPG

IMG_3896.JPG
回复 支持 反对

使用道具 举报

 楼主| 发表于 2022-9-29 16:16:07 | 显示全部楼层

开工前配电箱面板,需要拆除,防止磕碰破损!
IMG_3920.JPG

IMG_3916.JPG
回复 支持 反对

使用道具 举报

 楼主| 发表于 2022-9-29 16:17:11 | 显示全部楼层

项目经理正在,大门保护,防止磕碰哦!
IMG_3918.JPG

IMG_3919.JPG
回复 支持 反对

使用道具 举报

 楼主| 发表于 2022-9-29 16:18:45 | 显示全部楼层

开工前准备工作,先要做好哦!
IMG_3902.JPG

IMG_3903.JPG
回复 支持 反对

使用道具 举报

您需要登录后才可以回帖 登录 | 立即注册

本版积分规则

全国统一客服电话
0570-8028505

24x7小时免费咨询

  • 官方在线客服

    QQ客服:小西

    点击交谈

    QQ客服:良子

    点击交谈

    QQ客服:闵月

    点击交谈
  • 衢州市柯城区财富中心3号楼2楼

  • 衢州格堂装饰有限公司

  • 扫一扫关注官方微信

    获取一手特惠信息

快速回复 返回顶部 返回列表