• 手机版

    扫码体验手机版

  • 微信公众号

    扫码关注公众号

登录注册
游客您好
第三方账号登陆

[龙游] 江南里22-3#现代轻奢——简爱

[复制链接]
发表于 2022-9-28 16:00:29 | 显示全部楼层 |阅读模式
简爱

格堂装饰为您全程记录装修全过程!

小区名称
江南里
房屋面积
242㎡
户型结构
叠排
装修风格
现代轻奢
装修方式
半包
装修造价
查看请联系客服万元
设计师
徐工
项目经理
杨工
装修公司
格堂装饰
完工实景
完工实景
水电全景
水电全景
VR全景
VR全景
设计说明
每一个早晨都是一个愉快的邀请,使得我的生活跟大自然同样的简单”。形式由功能而来,空间的功能性设计由生活而来,不为对立而生,互为因果相融。把一切复杂的变为纯粹,用最自然最清晰的方法去诠释生活
更多信息
本帖最后由 格堂艳子 于 2023-5-19 10:31 编辑

客餐厅效果图
IMG_6165(20221110-095915).JPG

IMG_6167(20221110-095926).JPG

IMG_6166(20221110-095919).JPG

IMG_6170(20221110-095941).JPG

IMG_6168(20221110-095931).JPG


目      录





回复

使用道具 举报

 楼主| 发表于 2022-9-28 16:07:38 | 显示全部楼层
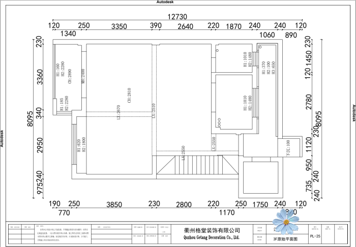
三楼原始结构图
IMG_7070.PNG
四楼原始结构图
IMG_7072.PNG
五楼原始结构图
IMG_7074.PNG
负一楼原始结构图
IMG_7076.PNG
回复 支持 反对

使用道具 举报

 楼主| 发表于 2022-9-28 16:10:34 | 显示全部楼层
三楼平面布置图
IMG_7071.PNG
四楼平面布置图
IMG_7073.PNG
五楼平面布置图
IMG_7075.PNG
负一楼平面布置图
IMG_7077.PNG
回复 支持 反对

使用道具 举报

 楼主| 发表于 2022-9-28 16:14:34 | 显示全部楼层
开工前大门已保护到位,防止磕碰
IMG_5019(2).JPG
回复 支持 反对

使用道具 举报

 楼主| 发表于 2022-9-28 16:15:36 | 显示全部楼层
本帖最后由 格堂艳子 于 2022-9-28 16:18 编辑

电梯口墙面和地面都贴好了格堂专用的保护垫。

IMG_7487(1).JPG

IMG_7488(1).JPG

IMG_7489(1).JPG

IMG_7490(1).JPG

IMG_7491(1).JPG





回复 支持 反对

使用道具 举报

 楼主| 发表于 2022-9-28 16:16:54 | 显示全部楼层
电梯口对角
IMG_7482(1).JPG

IMG_7483.JPG

IMG_7484(1).JPG

IMG_7485(1).JPG

IMG_7486(1).JPG
回复 支持 反对

使用道具 举报

 楼主| 发表于 2022-9-28 16:20:00 | 显示全部楼层
玻璃保护膜到位,防止后期玻璃磕碰破损。

IMG_7509(1).JPG

IMG_7480(1).JPG

IMG_7502(1).JPG

IMG_7503(1).JPG
回复 支持 反对

使用道具 举报

 楼主| 发表于 2022-9-28 16:22:18 | 显示全部楼层
临时马桶:每一个施工现场都会配备临时小便斗,并且时刻保持干净卫生、保证工地环境干净、整洁。
IMG_7506(1).JPG
回复 支持 反对

使用道具 举报

 楼主| 发表于 2022-9-28 16:22:57 | 显示全部楼层
排水管道用格堂装饰专用保护盖保护,防止后期施工砂石堵塞管道

IMG_7507(1).JPG
回复 支持 反对

使用道具 举报

 楼主| 发表于 2022-9-28 16:24:53 | 显示全部楼层
项目经理正在开工前准备
IMG_7501(1).JPG

IMG_7518(1).JPG
回复 支持 反对

使用道具 举报

您需要登录后才可以回帖 登录 | 立即注册

本版积分规则

全国统一客服电话
0570-8028505

24x7小时免费咨询

  • 官方在线客服

    QQ客服:小西

    点击交谈

    QQ客服:良子

    点击交谈

    QQ客服:闵月

    点击交谈
  • 衢州市柯城区财富中心3号楼2楼

  • 衢州格堂装饰有限公司

  • 扫一扫关注官方微信

    获取一手特惠信息

快速回复 返回顶部 返回列表