• 手机版

    扫码体验手机版

  • 微信公众号

    扫码关注公众号

登录注册
游客您好
第三方账号登陆

[龙游] 江南里3-1-6#93㎡奶油风——脆脆奶芙

[复制链接]
发表于 2022-9-25 14:14:41 | 显示全部楼层 |阅读模式
脆脆奶芙

格堂装饰为您全程记录装修全过程!

小区名称
江南里
房屋面积
93㎡
户型结构
套房
装修风格
奶油风
装修方式
半包
装修造价
查看请联系客服万元
设计师
金工
项目经理
杨工
装修公司
格堂装饰
完工实景
完工实景
水电全景
水电全景
VR全景
VR全景
设计说明
提起奶油——首先想到的就是绵密香甜,而奶油风装修也带着几分这种氛围感;它既有现代简约的空间感,又有法式浪漫的空灵感,它可以以一种清单的姿态呈现出软绵轻盈的空间质感。
更多信息
回复

使用道具 举报

 楼主| 发表于 2022-9-25 14:15:19 | 显示全部楼层
原始结构图
IMG_6764(20220925-140742).JPG
回复 支持 反对

使用道具 举报

 楼主| 发表于 2022-9-25 14:15:41 | 显示全部楼层
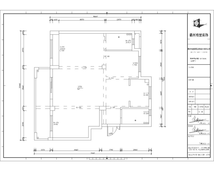
平面布置图
IMG_6765(20220925-140747).JPG
回复 支持 反对

使用道具 举报

 楼主| 发表于 2022-9-25 14:16:43 | 显示全部楼层
开工大门保护、电梯保护、地面保护,防止后期磕碰到
IMG_6293.JPG

IMG_6294.JPG

IMG_6295.JPG
IMG_6296.JPG

IMG_6297.JPG
回复 支持 反对

使用道具 举报

 楼主| 发表于 2022-9-25 14:18:03 | 显示全部楼层
IMG_6300.JPG

IMG_6301.JPG

IMG_6302.JPG

IMG_6303.JPG

IMG_6304.JPG
回复 支持 反对

使用道具 举报

 楼主| 发表于 2022-9-25 14:18:26 | 显示全部楼层
临时马桶:每一个施工现场都会配备临时小便斗,并且时刻保持干净卫生、保证工地环境干净、整洁。
IMG_6305.JPG
回复 支持 反对

使用道具 举报

 楼主| 发表于 2022-9-25 14:18:53 | 显示全部楼层
水管用格堂专用保护盖保护,防止砂石堵塞管道
IMG_6306.JPG
回复 支持 反对

使用道具 举报

 楼主| 发表于 2022-9-25 14:19:20 | 显示全部楼层
所有玻璃窗做好保护,防尘
IMG_6307.JPG

IMG_6308.JPG

IMG_6309.JPG

IMG_6310.JPG
回复 支持 反对

使用道具 举报

 楼主| 发表于 2022-9-25 14:19:37 | 显示全部楼层
所有玻璃窗做好保护,防尘
IMG_6311.JPG

IMG_6312.JPG

IMG_6313.JPG
回复 支持 反对

使用道具 举报

 楼主| 发表于 2022-9-25 14:21:09 | 显示全部楼层
IMG_6314.JPG

IMG_6315.JPG

IMG_6316.JPG


回复 支持 反对

使用道具 举报

您需要登录后才可以回帖 登录 | 立即注册

本版积分规则

全国统一客服电话
0570-8028505

24x7小时免费咨询

  • 官方在线客服

    QQ客服:小西

    点击交谈

    QQ客服:良子

    点击交谈

    QQ客服:闵月

    点击交谈
  • 衢州市柯城区财富中心3号楼2楼

  • 衢州格堂装饰有限公司

  • 扫一扫关注官方微信

    获取一手特惠信息

快速回复 返回顶部 返回列表