• 手机版

    扫码体验手机版

  • 微信公众号

    扫码关注公众号

登录注册
游客您好
第三方账号登陆

[衢州] 陶然里4-1-80#98㎡现代——《木白》

[复制链接]
发表于 2022-9-24 15:00:03 | 显示全部楼层 |阅读模式
陶然里4-1-80#98㎡现代——《木白》

格堂装饰为您全程记录装修全过程!

小区名称
陶然里
房屋面积
98㎡
户型结构
套房
装修风格
现代
装修方式
半包
装修造价
查看请联系客服万元
设计师
王工
项目经理
余工
装修公司
格堂装饰
完工实景
完工实景
水电全景
水电全景
VR全景
VR全景
设计说明
"在光阴的剪影中盈盈浅笑,任风吹过依旧向阳。"
世人喜爱繁华的表象,可繁华终有落幕,繁华已逝,留下的又是什么?繁华虽好,却敌不过简简单单四字
更多信息
本帖最后由 格堂陈辰 于 2022-11-18 14:20 编辑

效果图
015f0cf6f8039a00dfc0b38a17d0d4d.jpg

bfa600e07fd76748ddc155d79015dd1.png
回复

使用道具 举报

 楼主| 发表于 2022-9-24 15:00:46 | 显示全部楼层
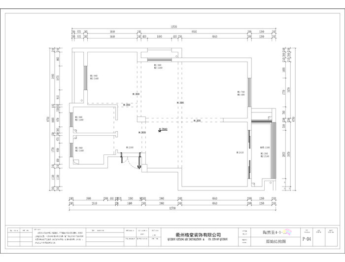
原始结构图
0b233ae1507ebf9a7d971c10669187b.jpg
回复 支持 反对

使用道具 举报

 楼主| 发表于 2022-9-24 15:01:11 | 显示全部楼层
平面布置图
1306ccdf46d9537ffb100a9e3d59eeb.jpg
回复 支持 反对

使用道具 举报

 楼主| 发表于 2022-9-24 15:01:58 | 显示全部楼层
本帖最后由 格堂陈辰 于 2022-11-17 16:37 编辑

目      录

1开工9水电完工图
2拆改10泥木工材料
3砌墙11木工中途
4黄墙绿地12泥木工验收
5水电放样13油漆材料
6水电材料14油漆中途
7水电中途15安装阶段
8水电完工图16竣工验收
回复 支持 反对

使用道具 举报

 楼主| 发表于 2022-9-24 15:03:27 | 显示全部楼层
本帖最后由 格堂陈辰 于 2022-11-18 14:04 编辑

电梯口保护
IMG_20221118_133012.jpg

IMG_20221118_133014.jpg

IMG_20221118_133017.jpg

IMG_20221118_133015.jpg

IMG_20221118_133019.jpg
回复 支持 反对

使用道具 举报

 楼主| 发表于 2022-9-24 15:03:40 | 显示全部楼层
本帖最后由 格堂陈辰 于 2022-11-18 14:05 编辑

电梯口对角
IMG_20221118_133025.jpg

IMG_20221118_133027.jpg

IMG_20221118_133030.jpg

IMG_20221118_133028.jpg

IMG_20221118_133031.jpg
回复 支持 反对

使用道具 举报

 楼主| 发表于 2022-9-24 15:04:07 | 显示全部楼层
本帖最后由 格堂陈辰 于 2022-11-17 16:39 编辑

大门保护
IMG_20221008_150225.jpg
回复 支持 反对

使用道具 举报

 楼主| 发表于 2022-9-24 15:04:18 | 显示全部楼层
本帖最后由 格堂陈辰 于 2022-11-17 20:38 编辑

门槛保护


回复 支持 反对

使用道具 举报

 楼主| 发表于 2022-9-24 15:05:38 | 显示全部楼层
临时马桶安放到位  保持工地卫生干净
IMG_20220924_083643.jpg
回复 支持 反对

使用道具 举报

 楼主| 发表于 2022-9-24 15:06:19 | 显示全部楼层
水管用格堂专用保护盖保护,防止砂石堵塞管道
IMG_20220924_083647.jpg
回复 支持 反对

使用道具 举报

您需要登录后才可以回帖 登录 | 立即注册

本版积分规则

全国统一客服电话
0570-8028505

24x7小时免费咨询

  • 官方在线客服

    QQ客服:小西

    点击交谈

    QQ客服:良子

    点击交谈

    QQ客服:闵月

    点击交谈
  • 衢州市柯城区财富中心3号楼2楼

  • 衢州格堂装饰有限公司

  • 扫一扫关注官方微信

    获取一手特惠信息

快速回复 返回顶部 返回列表