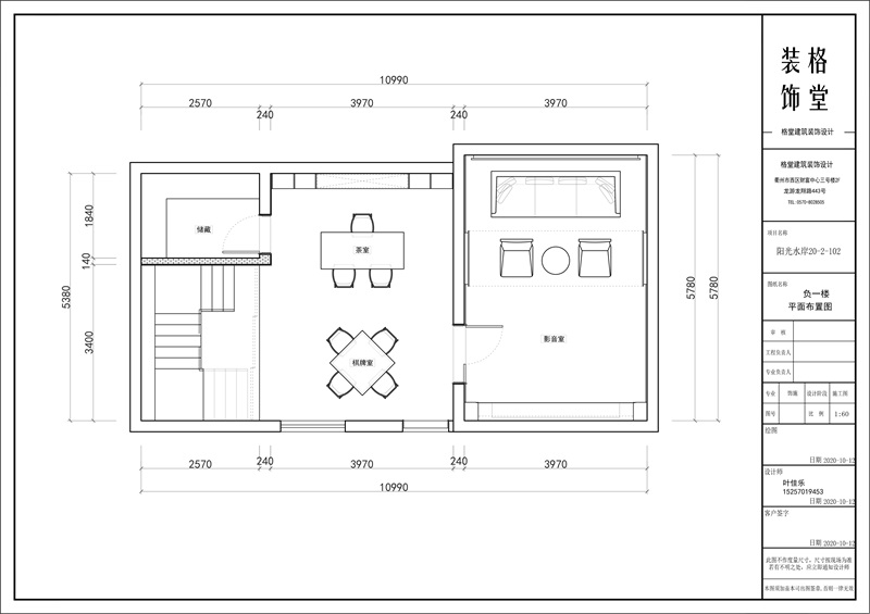
阳光水岸20-2#205㎡意式极简——沐.阳光 |
|
阳光水岸20-2#205㎡意式极简——沐.阳光
格堂装饰实景完工案例欣赏!
设计说明
玄关是空间的起始笔触,设计师以木饰面及夹丝玻璃铺就,配合木格栅使光影及视觉得到平和轻松,玄关家具上,设计师用极简的方式贯通整体,搭配极简条凳、一盏吊灯,欢迎回家的同时也是出门自拍打卡的情绪转换空间
在闲适的穿梭中便与客厅邂逅,借由木格栅的虚实效果,连接多个区域互通对话,简洁的线条,温和的色调,安宁地诠释出静谧轻奢的格调。仿若薄雾笼罩下不经意透露的那点朦胧韵味。 阳光透过窗纱,光线点点落于柔软布料,这一瞬的客厅仿佛成了永恒 厨房、餐厅使用内藏移门,封闭厨房和开放厨房自由的形式,让尺寸感、舒适度以及便利性进一步提升,深色面板与白色的岩板作对比,加由视觉和触觉上的多元碰撞、对比,映衬一种微妙的开放与互动。 主卧以递进式的布局、丰富的质感打造出层层叠叠的精致韵味,布艺硬包与木饰面、格栅的多重组合,既有上下一体的延续性,配合灯光赋予其满满的设计感与温馨感。 更多信息
| |


在线客服
微信客服
关注有礼