• 手机版

    扫码体验手机版

  • 微信公众号

    扫码关注公众号

登录注册
游客您好
第三方账号登陆

[衢州] 阳光水岸13#1-12#㎡ 法式———高贵典雅的巴黎式浪漫生活

[复制链接]
发表于 2022-9-21 15:27:32 | 显示全部楼层 |阅读模式
高贵典雅的巴黎式浪漫生活

格堂装饰为您全程记录装修全过程!

小区名称
阳光水岸
房屋面积
210㎡
户型结构
套房
装修风格
法式
装修方式
半包
装修造价
查看请联系客服万元
设计师
石工
项目经理
胡工
装修公司
格堂装饰
完工实景
完工实景
水电全景
水电全景
VR全景
VR全景
设计说明
整体造型拥有精美的雕刻工艺,时尚大气的外观,散发着浓郁的法式古典气息。布局上突出轴线的对称,恢宏的气势,庄重大方,充分彰显主人之高贵身份与地位。
更多信息

回复

使用道具 举报

 楼主| 发表于 2022-9-21 15:27:48 | 显示全部楼层
回复 支持 反对

使用道具 举报

 楼主| 发表于 2022-9-21 15:28:52 | 显示全部楼层
本帖最后由 格堂飞飞 于 2022-9-21 15:31 编辑

原始结构图
图片1.png
回复 支持 反对

使用道具 举报

 楼主| 发表于 2022-9-21 15:32:03 | 显示全部楼层

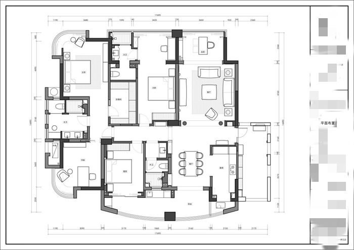
平面布置图
图片2.png
回复 支持 反对

使用道具 举报

 楼主| 发表于 2022-9-21 15:45:28 | 显示全部楼层

开工前准备工作,先要做好哦!
IMG_3477.JPG

IMG_3478.JPG

IMG_3479.JPG

IMG_3482.JPG
回复 支持 反对

使用道具 举报

 楼主| 发表于 2022-9-21 15:47:01 | 显示全部楼层

临时马桶安装好了,方便师傅使用,要讲究卫生间哦!
IMG_3492.JPG
回复 支持 反对

使用道具 举报

 楼主| 发表于 2022-9-21 15:48:23 | 显示全部楼层
下水管用专用保护盖保护,防止砂石堵塞管道。
IMG_3493.JPG

IMG_3494.JPG

IMG_3496.JPG

IMG_3503.JPG
回复 支持 反对

使用道具 举报

 楼主| 发表于 2022-9-21 15:49:28 | 显示全部楼层

煤气表保护好了,防止磕碰哦!
IMG_3497.JPG
回复 支持 反对

使用道具 举报

 楼主| 发表于 2022-9-21 15:50:37 | 显示全部楼层
本帖最后由 格堂飞飞 于 2022-9-21 15:52 编辑

吉时已到,恭祝业主大人,开工大吉!
IMG_3490.JPG

回复 支持 反对

使用道具 举报

 楼主| 发表于 2022-9-21 15:53:49 | 显示全部楼层

开工第一锤,由业主大人,亲自来哦!
IMG_3487.JPG

回复 支持 反对

使用道具 举报

您需要登录后才可以回帖 登录 | 立即注册

本版积分规则

全国统一客服电话
0570-8028505

24x7小时免费咨询

  • 官方在线客服

    QQ客服:小西

    点击交谈

    QQ客服:良子

    点击交谈

    QQ客服:闵月

    点击交谈
  • 衢州市柯城区财富中心3号楼2楼

  • 衢州格堂装饰有限公司

  • 扫一扫关注官方微信

    获取一手特惠信息

快速回复 返回顶部 返回列表