• 手机版

    扫码体验手机版

  • 微信公众号

    扫码关注公众号

登录注册
游客您好
第三方账号登陆

[衢州] 斗潭西区18-1-8#72㎡现代简约——简约雅致轻松

[复制链接]
发表于 2022-9-21 15:15:11 | 显示全部楼层 |阅读模式
斗潭西区18-1-8#72㎡现代简约——简约雅致轻松

格堂装饰为您全程记录装修全过程!

小区名称
斗潭西区
房屋面积
72㎡
户型结构
套房
装修风格
现代
装修方式
半包
装修造价
查看请联系客服万元
设计师
余工
项目经理
郑工
装修公司
格堂装饰
完工实景
完工实景
水电全景
水电全景
VR全景
VR全景
设计说明
本案在设计上着眼于让户型改后整体空间尺寸利用最大化,在充分了解并尊重业主需求情况下,尽可能优化生活动线与储物功能。风格上定位简约,设计和施工都着眼于环保,家就是港湾。
更多信息
效果图
f258482aa5c50dcc64f070f33be146b.jpg

bde2521662cb593b19c31dff53fb0f5.jpg

c0908893d32b57dd4ac7daf5657112e.jpg

2e05184bc15b1e5ade507f596dce030.jpg
回复

使用道具 举报

 楼主| 发表于 2022-9-21 15:15:43 | 显示全部楼层
回复 支持 反对

使用道具 举报

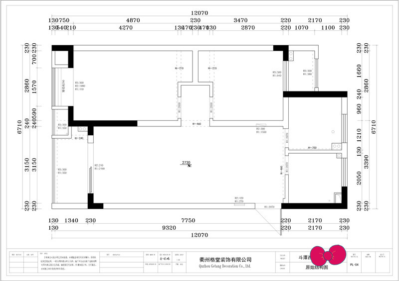
 楼主| 发表于 2022-9-21 15:16:11 | 显示全部楼层
原始结构图
a527851f8651ca1363fe73650fb8895_副本.jpg
回复 支持 反对

使用道具 举报

 楼主| 发表于 2022-9-21 15:16:25 | 显示全部楼层
平面布置图
8f9ff07c8bcfd82849bbd63206a226f_副本.jpg
回复 支持 反对

使用道具 举报

 楼主| 发表于 2022-9-21 15:19:11 | 显示全部楼层
本帖最后由 格堂彩霞 于 2022-9-21 15:20 编辑

开工仪式准备,开工横幅、鲜花、礼花准备到位
IMG_20220920_100512.jpg

IMG_20220920_100543.jpg

回复 支持 反对

使用道具 举报

 楼主| 发表于 2022-9-21 15:21:21 | 显示全部楼层
大门、门槛保护
IMG_20220920_100840.jpg

IMG_20220920_101030.jpg

IMG_20220920_101447.jpg

IMG_20220920_101548.jpg
回复 支持 反对

使用道具 举报

 楼主| 发表于 2022-9-21 15:21:55 | 显示全部楼层
电梯楼道墙地面保护到位
IMG_20220920_100804.jpg

IMG_20220920_100806.jpg

IMG_20220920_100807.jpg

IMG_20220920_100808.jpg

IMG_20220920_100805.jpg

回复 支持 反对

使用道具 举报

 楼主| 发表于 2022-9-21 15:22:33 | 显示全部楼层
电梯楼道墙地面保护到位
IMG_20220920_100840.jpg

IMG_20220920_100821.jpg

IMG_20220920_100824.jpg

IMG_20220920_100827.jpg

IMG_20220920_100830.jpg

回复 支持 反对

使用道具 举报

 楼主| 发表于 2022-9-21 15:23:13 | 显示全部楼层
简易马桶到位
IMG_20220920_101059.jpg

IMG_20220920_100738.jpg
回复 支持 反对

使用道具 举报

 楼主| 发表于 2022-9-21 15:25:21 | 显示全部楼层
开工吉时到,礼花放起来!
恭祝业主开工大吉、大吉大利!!!
IMG_20220920_101748_副本.jpg

IMG_20220920_101749_副本.jpg

回复 支持 反对

使用道具 举报

您需要登录后才可以回帖 登录 | 立即注册

本版积分规则

全国统一客服电话
0570-8028505

24x7小时免费咨询

  • 官方在线客服

    QQ客服:小西

    点击交谈

    QQ客服:良子

    点击交谈

    QQ客服:闵月

    点击交谈
  • 衢州市柯城区财富中心3号楼2楼

  • 衢州格堂装饰有限公司

  • 扫一扫关注官方微信

    获取一手特惠信息

快速回复 返回顶部 返回列表