• 手机版

    扫码体验手机版

  • 微信公众号

    扫码关注公众号

登录注册
游客您好
第三方账号登陆

[江山] 淤头新兴街254m2现代--绿色田野围绕

[复制链接]
发表于 2022-9-20 17:13:33 | 显示全部楼层 |阅读模式
淤头新兴街 254m2现代--绿色田野围绕

格堂装饰为您全程记录装修全过程!

小区名称
淤头新兴街20号
房屋面积
254㎡
户型结构
大宅
装修风格
现代
装修方式
半包
装修造价
查看请联系客服万元
设计师
江工
项目经理
郑工
装修公司
格堂装饰
完工实景
完工实景
水电全景
水电全景
VR全景
VR全景
设计说明
驻·民宿。民宿进则感受市井生活气息,退则被一片绿色田野围绕,空气新鲜。远望云雾缭绕的江郎山。时光变得静谧柔和。正是因为这优美的自然风景,让民宿主决定在这里扎根,取名为“驻“也是希望家人能够停下脚步,驻留于此。
更多信息
回复

使用道具 举报

 楼主| 发表于 2022-9-20 17:15:43 | 显示全部楼层
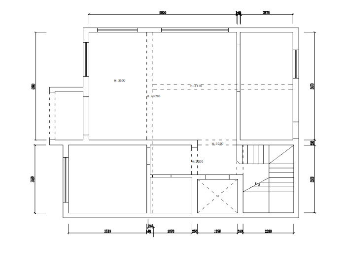
原始结构图

1f2b1c6291cf203feeb0795c9c70cd7.png

a3500ad0d227f89e041483ea0e80bd1.png

e1b6b934ed9ece2724144995901df90.png
回复 支持 反对

使用道具 举报

 楼主| 发表于 2022-9-20 17:17:15 | 显示全部楼层
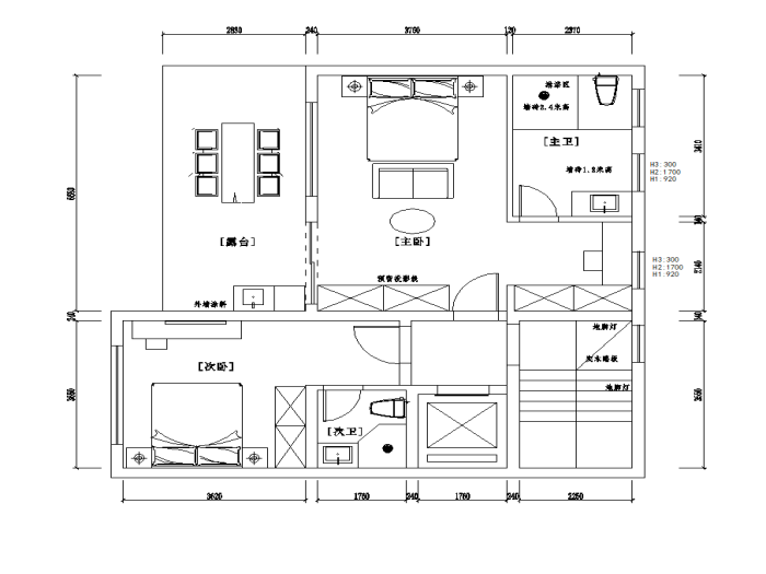
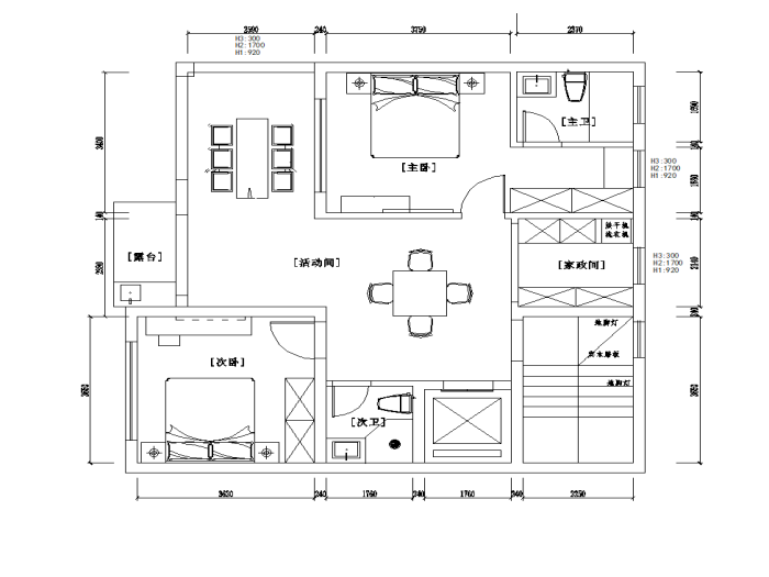
平面布置图

07be090f13cb258fd6c35500dcdbc0a.png

81b0ba66b74c9287682ef3a33b74f19.png

c6a1e4bad9a38781636bee16be89442.png

回复 支持 反对

使用道具 举报

 楼主| 发表于 2022-9-21 14:54:35 | 显示全部楼层
本帖最后由 格堂红叶 于 2022-9-21 14:56 编辑

礼炮已准备好

af1f314d8c2167a12d3f7d7b0af4b91.jpg

df890225b4195a46cb613e239160dad.jpg

a91a77223e51df8d81a763a91c76800.jpg

回复 支持 反对

使用道具 举报

 楼主| 发表于 2022-9-21 14:58:31 | 显示全部楼层
本帖最后由 格堂红叶 于 2022-9-21 15:01 编辑

开工锤已准备好

d60860031314ef9c37aca3e2da7c153.jpg
回复 支持 反对

使用道具 举报

 楼主| 发表于 2022-9-21 15:02:18 | 显示全部楼层
送给业主美丽的鲜花


05735ead526e27c5f36fdbdf518bf1f.jpg


回复 支持 反对

使用道具 举报

 楼主| 发表于 2022-9-21 15:05:42 | 显示全部楼层
喜气的加多宝也准备好了

2034f2908d682b2cc4b94b420c0ab36.jpg
回复 支持 反对

使用道具 举报

 楼主| 发表于 2022-9-21 15:06:30 | 显示全部楼层
一切准备就绪,等待开工吉时。

ee8870850f28de93c7d527b825cd08c.jpg
回复 支持 反对

使用道具 举报

 楼主| 发表于 2022-9-21 15:07:39 | 显示全部楼层
本帖最后由 格堂红叶 于 2022-9-21 15:09 编辑

吉时已到,恭祝业主大人开工大吉,顺风顺水!

559f8d089db1ef8a8bfe20f3b8c9d5d.jpg
回复 支持 反对

使用道具 举报

 楼主| 发表于 2022-9-21 15:08:45 | 显示全部楼层
恭祝业主大人开工大吉

cbb87e231adca1756ee55c980376fa1.jpg

04a6fc8c77a2c5b8f8aaadeb16a37ec.jpg
回复 支持 反对

使用道具 举报

您需要登录后才可以回帖 登录 | 立即注册

本版积分规则

全国统一客服电话
0570-8028505

24x7小时免费咨询

  • 官方在线客服

    QQ客服:小西

    点击交谈

    QQ客服:良子

    点击交谈

    QQ客服:闵月

    点击交谈
  • 衢州市柯城区财富中心3号楼2楼

  • 衢州格堂装饰有限公司

  • 扫一扫关注官方微信

    获取一手特惠信息

快速回复 返回顶部 返回列表