• 手机版

    扫码体验手机版

  • 微信公众号

    扫码关注公众号

登录注册
游客您好
第三方账号登陆

[衢州] 云栖新语5-1-20#126㎡现代——取法自然 静时

[复制链接]
发表于 2022-9-18 16:34:10 | 显示全部楼层 |阅读模式
云栖新语5-1-20#126㎡现代——取法自然 静时

格堂装饰为您全程记录装修全过程!

小区名称
云栖新语
房屋面积
126㎡
户型结构
套房
装修风格
现代
装修方式
半包
装修造价
查看请联系客服万元
设计师
佘工
项目经理
周工
装修公司
格堂装饰
完工实景
完工实景
水电全景
水电全景
VR全景
VR全景
设计说明
简单是高级形式的复杂,越是高级的东西表达的形式越是简单。极简的设计语言和表现形式,秉持“大宅至简”的设计理念,去除多余非必要的空间形式,为空间赋予更多的精神内涵,打造极简的诗意栖居,是一种恰如其分、回归本心的生活方式。
更多信息
效果图
21a6d3e04ee22937ab09588b2362d6c.jpg

ee8ba307a20c04271de0c386d343439.jpg
回复

使用道具 举报

 楼主| 发表于 2022-9-18 16:34:44 | 显示全部楼层
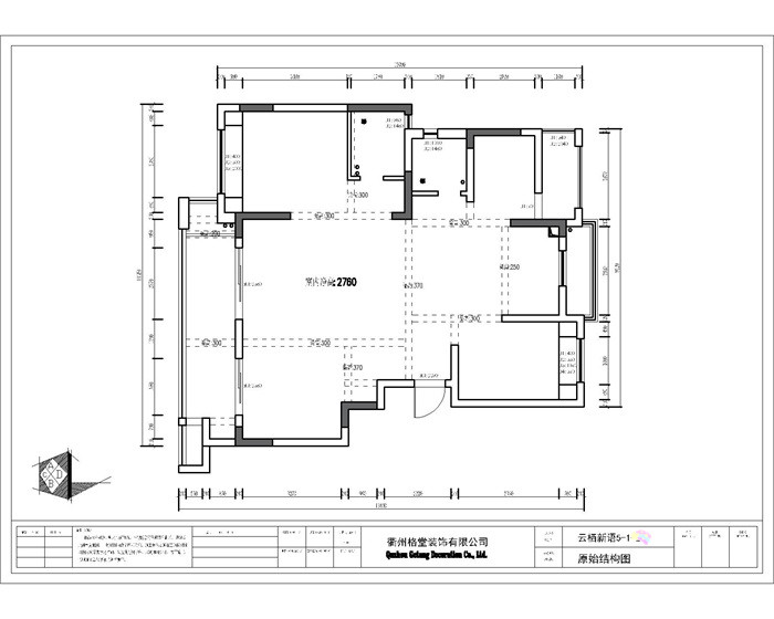
原始结构图
f3efd5af1e0ca5e83151cca7bc7fcd7.jpg
回复 支持 反对

使用道具 举报

 楼主| 发表于 2022-9-18 16:35:19 | 显示全部楼层

平面布置图
4985c60948e198517f8383853b6f940.jpg
回复 支持 反对

使用道具 举报

 楼主| 发表于 2022-9-18 16:36:59 | 显示全部楼层
回复 支持 反对

使用道具 举报

 楼主| 发表于 2022-9-18 16:37:41 | 显示全部楼层
电梯口保护
IMG_20220917_082827.jpg

IMG_20220917_082829.jpg

IMG_20220917_082833.jpg

IMG_20220917_082831.jpg

IMG_20220917_082835.jpg
回复 支持 反对

使用道具 举报

 楼主| 发表于 2022-9-18 16:38:00 | 显示全部楼层
本帖最后由 格堂陈辰 于 2022-9-18 16:39 编辑

电梯口对角
IMG_20220917_082848.jpg

IMG_20220917_082850.jpg

IMG_20220917_082853.jpg

IMG_20220917_082851.jpg

IMG_20220917_082855.jpg
回复 支持 反对

使用道具 举报

 楼主| 发表于 2022-9-18 16:40:20 | 显示全部楼层

大门保护到位
IMG_20220917_083710.jpg
回复 支持 反对

使用道具 举报

 楼主| 发表于 2022-9-18 16:40:52 | 显示全部楼层
本帖最后由 格堂陈辰 于 2022-9-18 16:45 编辑

门槛保护到位
回复 支持 反对

使用道具 举报

 楼主| 发表于 2022-9-18 16:41:47 | 显示全部楼层
临时马桶:每一个施工现场都会配备临时小便斗,并且时刻保持干净卫生、保证工地环境干净、整洁
IMG_20220917_083200.jpg
回复 支持 反对

使用道具 举报

 楼主| 发表于 2022-9-18 16:44:17 | 显示全部楼层
下水管用格堂专用保护盖保护,防止砂石堵塞管道
IMG_20220917_083148.jpg

IMG_20220917_083158.jpg

IMG_20220917_083208.jpg
回复 支持 反对

使用道具 举报

您需要登录后才可以回帖 登录 | 立即注册

本版积分规则

全国统一客服电话
0570-8028505

24x7小时免费咨询

  • 官方在线客服

    QQ客服:小西

    点击交谈

    QQ客服:良子

    点击交谈

    QQ客服:闵月

    点击交谈
  • 衢州市柯城区财富中心3号楼2楼

  • 衢州格堂装饰有限公司

  • 扫一扫关注官方微信

    获取一手特惠信息

快速回复 返回顶部 返回列表