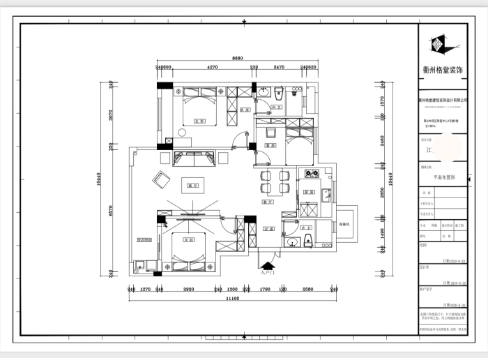
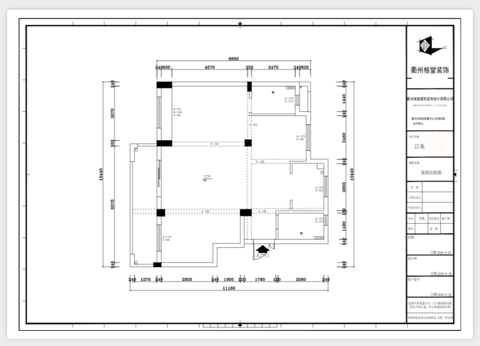
[龙游] 江南里2-1-10#93㎡现代——归迹 |
|
归迹
格堂装饰为您全程记录装修全过程! 设计说明
在精致主义盛行的当下
反其道而行之 在舍弃了物质欲念之后 创一处可供精神休息的场域 此刻,把心放下,打开五感 去感受风,聆听雨,欣赏日出与日落。 寻找生活最原本的样子,是在舍弃绝大多数的外物之后,发现内心最渴望的事物。本案空间,不刻意追求极致感,我们认为过于精致的空间会带来情绪的紧张,以爱为家,从极简生活出发。拿掉多余的装饰,让家变得更加宽敞舒适,腾出来的空间,是为爱预留的位置。 更多信息
| |


在线客服
微信客服
关注有礼