• 手机版

    扫码体验手机版

  • 微信公众号

    扫码关注公众号

登录注册
游客您好
第三方账号登陆

[龙游] 江南里18-3#296㎡现代——爱默生

[复制链接]
发表于 2022-9-16 17:33:37 | 显示全部楼层 |阅读模式
爱默生

格堂装饰为您全程记录装修全过程!

小区名称
江南里
房屋面积
296㎡
户型结构
叠排
装修风格
现代
装修方式
半包
装修造价
查看请联系客服万元
设计师
杜工
项目经理
沈工
装修公司
格堂装饰
完工实景
完工实景
水电全景
水电全景
VR全景
VR全景
设计说明
对当代而言,艺术和潮玩都是不可或缺的。潮流是一种生活态度,不仅仅体现在穿着搭配,更源于对生活的看法。做生活大玩家,潮出新意,玩出态度,探索潮流的不同表达方式,敢于尝试“不被定义"的新鲜事物。
更多信息
本帖最后由 格堂艳子 于 2023-2-25 09:46 编辑

客餐厅效果图
IMG_5804(20220916-163630).JPG

IMG_5805(20220916-163638).JPG

主卧效果图

IMG_5806(20220916-163644).JPG
次卧效果图
IMG_5808(20220916-163701).JPG
目      录

1开工           9
2拆改阶段      砌墙阶段  10
3水电放样      水电开槽11
4 水电材料     水电中途    12
5水电完工图  水电细节13
6水电验收14
7
15
8
16



回复

使用道具 举报

 楼主| 发表于 2022-9-17 09:28:58 | 显示全部楼层
本帖最后由 格堂艳子 于 2022-10-6 16:08 编辑

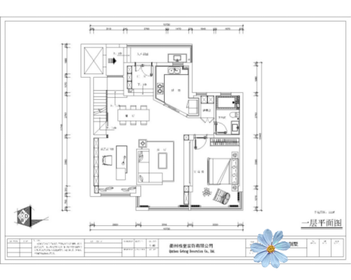
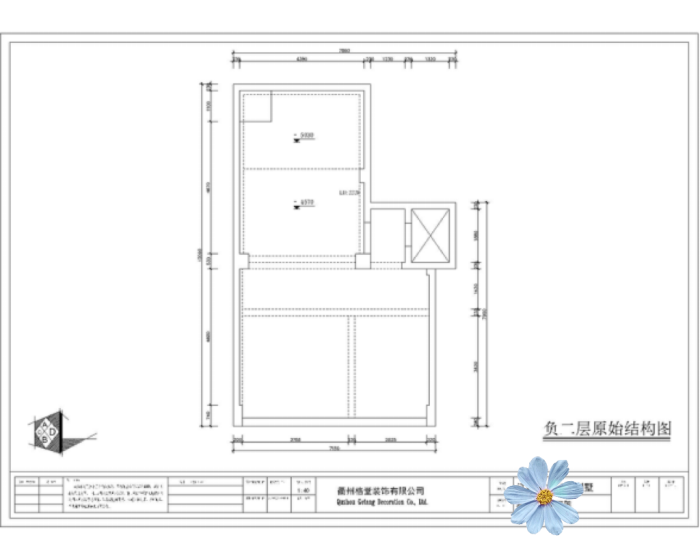
原始结构图
IMG_5823.PNG

IMG_5824.PNG

IMG_5832.PNG
IMG_5827.PNG
回复 支持 反对

使用道具 举报

 楼主| 发表于 2022-9-17 09:30:40 | 显示全部楼层
平面效果图
IMG_5826(20220916-170300).JPG

IMG_5828.PNG

IMG_5829.PNG

IMG_5830.PNG

回复 支持 反对

使用道具 举报

 楼主| 发表于 2022-9-17 09:37:58 | 显示全部楼层
开工前大门已保护到位,防止磕碰

IMG_4178(1).JPG
回复 支持 反对

使用道具 举报

 楼主| 发表于 2022-9-17 09:42:13 | 显示全部楼层
电梯口墙面和地面都贴好了格堂专用的保护垫。
IMG_5283(2).JPG

IMG_5284(2).JPG

IMG_5285(2).JPG

IMG_5286(2).JPG

IMG_5287(2).JPG

回复 支持 反对

使用道具 举报

 楼主| 发表于 2022-9-17 09:42:47 | 显示全部楼层
电梯口对角

IMG_5288(2).JPG

IMG_5289(2).JPG

IMG_5290(2).JPG

IMG_5291(2).JPG

IMG_5292(2).JPG
回复 支持 反对

使用道具 举报

 楼主| 发表于 2022-9-17 09:43:54 | 显示全部楼层
排水管道用格堂装饰专用保护盖保护,防止后期施工砂石堵塞管道

IMG_5306(2).JPG

IMG_5301(2).JPG

IMG_5302(2).JPG

IMG_5303(2).JPG

IMG_5304(2).JPG
回复 支持 反对

使用道具 举报

 楼主| 发表于 2022-9-17 09:44:21 | 显示全部楼层
临时马桶:每一个施工现场都会配备临时小便斗,并且时刻保持干净卫生、保证工地环境干净、整洁。

IMG_5305(2).JPG
回复 支持 反对

使用道具 举报

 楼主| 发表于 2022-9-17 09:45:16 | 显示全部楼层
玻璃保护膜到位,防止后期玻璃磕碰破损。

IMG_5363(1).JPG

IMG_5300(2).JPG

IMG_5313(2).JPG
回复 支持 反对

使用道具 举报

 楼主| 发表于 2022-9-17 09:45:52 | 显示全部楼层
送给业主美丽的鲜花

IMG_5311(1).JPG
回复 支持 反对

使用道具 举报

您需要登录后才可以回帖 登录 | 立即注册

本版积分规则

全国统一客服电话
0570-8028505

24x7小时免费咨询

  • 官方在线客服

    QQ客服:小西

    点击交谈

    QQ客服:良子

    点击交谈

    QQ客服:闵月

    点击交谈
  • 衢州市柯城区财富中心3号楼2楼

  • 衢州格堂装饰有限公司

  • 扫一扫关注官方微信

    获取一手特惠信息

快速回复 返回顶部 返回列表