• 手机版

    扫码体验手机版

  • 微信公众号

    扫码关注公众号

登录注册
游客您好
第三方账号登陆

[衢州] 智兴家园3-2-7#115㎡现代——流连

[复制链接]
发表于 2022-9-9 15:21:19 | 显示全部楼层 |阅读模式
流连

格堂装饰为您全程记录装修全过程!

小区名称
智兴家园
房屋面积
115㎡
户型结构
套房
装修风格
现代
装修方式
全包
装修造价
查看请联系客服万元
设计师
王辉
项目经理
胡工
装修公司
格堂装饰
完工实景
完工实景
水电全景
水电全景
VR全景
VR全景
设计说明
我们希望每一个灵感或者设计语言都像从空间生长出来,好像一切都那么理所当然。在一些不经意间,又出奇不意。空间有根有据,即便是装饰,也不是刻意附和。它应该具有包容性,包容世俗生活,包容未来的变化
更多信息

效果图
156d4333f2d38ff44b26620fdf1f2d6.jpg

462b5372bfd2d1d6e6f875e560619a1.jpg
回复

使用道具 举报

 楼主| 发表于 2022-9-9 15:22:38 | 显示全部楼层
回复 支持 反对

使用道具 举报

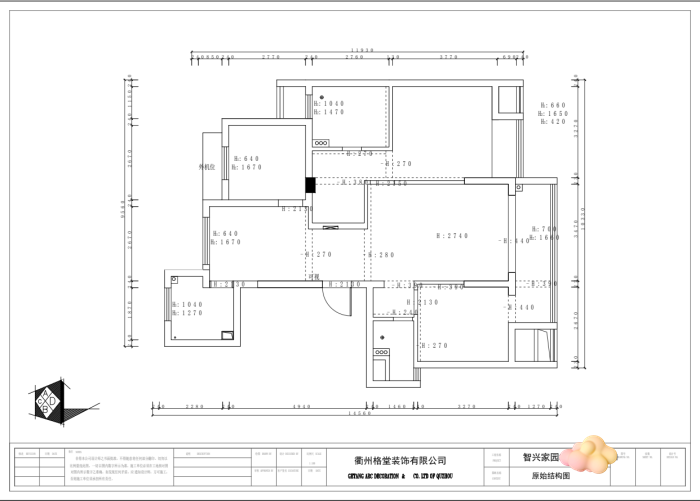
 楼主| 发表于 2022-9-9 15:24:52 | 显示全部楼层

原始结构图
c991978f8807d81feee1edfb2a0a97b.png
回复 支持 反对

使用道具 举报

 楼主| 发表于 2022-9-9 15:25:10 | 显示全部楼层

平面布置图
6378ce0febfadd4264d3d1b0a204bcc.png
回复 支持 反对

使用道具 举报

 楼主| 发表于 2022-9-9 15:26:19 | 显示全部楼层

开工前,项目经理正在验房
IMG_20220908_094929.jpg

IMG_20220908_094936.jpg
回复 支持 反对

使用道具 举报

 楼主| 发表于 2022-9-9 15:28:12 | 显示全部楼层

项目经理正在布置开工桌
IMG_20220908_095051.jpg

IMG_20220908_094948.jpg
回复 支持 反对

使用道具 举报

 楼主| 发表于 2022-9-9 15:29:12 | 显示全部楼层

下水管用格堂专用保护盖保护,防止砂石堵塞管道。
IMG_20220908_095004.jpg

IMG_20220908_095021.jpg

IMG_20220908_095041.jpg

IMG_20220908_095043.jpg
回复 支持 反对

使用道具 举报

 楼主| 发表于 2022-9-9 15:30:00 | 显示全部楼层

小便池已经安放好了,每一个施工现场都会配备临时小便斗,并且时刻保持干净卫生、保证工地环境干净、整洁。
IMG_20220908_095008.jpg
回复 支持 反对

使用道具 举报

 楼主| 发表于 2022-9-9 15:30:23 | 显示全部楼层

煤气表已经保护好了。
IMG_20220908_095023.jpg
回复 支持 反对

使用道具 举报

 楼主| 发表于 2022-9-9 15:31:13 | 显示全部楼层

大门已经保护好了
IMG_20220908_095137.jpg

IMG_20220908_095329.jpg
回复 支持 反对

使用道具 举报

您需要登录后才可以回帖 登录 | 立即注册

本版积分规则

全国统一客服电话
0570-8028505

24x7小时免费咨询

  • 官方在线客服

    QQ客服:小西

    点击交谈

    QQ客服:良子

    点击交谈

    QQ客服:闵月

    点击交谈
  • 衢州市柯城区财富中心3号楼2楼

  • 衢州格堂装饰有限公司

  • 扫一扫关注官方微信

    获取一手特惠信息

快速回复 返回顶部 返回列表