• 手机版

    扫码体验手机版

  • 微信公众号

    扫码关注公众号

登录注册
游客您好
第三方账号登陆

[江山] 江山郡# 106m2现代-《木白》

[复制链接]
发表于 2022-9-9 13:37:39 | 显示全部楼层 |阅读模式
江山郡# 106m2现代-《木白》

格堂装饰为您全程记录装修全过程!

小区名称
江山郡
房屋面积
106㎡
户型结构
套房
装修风格
现代
装修方式
全包
装修造价
查看请联系客服万元
设计师
王工
项目经理
郑工
装修公司
格堂装饰
完工实景
完工实景
水电全景
水电全景
VR全景
VR全景
设计说明
"在光阴的剪影中盈盈浅笑,任寒风吹过依旧向阳。"
世人喜爱繁华的表象,可繁华终有落幕,繁华已逝,留下的又是什么?繁华虽好,却敌不过简简单单四字
更多信息
回复

使用道具 举报

 楼主| 发表于 2022-9-9 13:38:43 | 显示全部楼层
原始结构图

8c1d99249629b4543efe6cd55efbb4d.jpg
回复 支持 反对

使用道具 举报

 楼主| 发表于 2022-9-9 13:39:42 | 显示全部楼层
本帖最后由 格堂红叶 于 2022-9-10 08:07 编辑

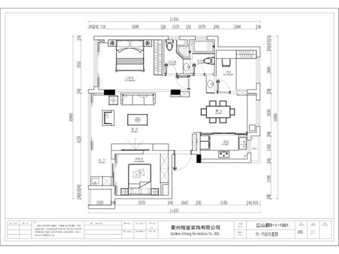
平面布置图

b5ab4363b0efb5a6b3ac5ec0340d1b5.jpg
回复 支持 反对

使用道具 举报

 楼主| 发表于 2022-9-10 08:07:04 | 显示全部楼层
开工前,大门先保护起来防止磕碰

0b0c78ff4f8f4634f1cf275ff5f923d.jpg

7f8cb69dc4fde000f999900c98f9782.jpg

回复 支持 反对

使用道具 举报

 楼主| 发表于 2022-9-10 08:08:47 | 显示全部楼层
门槛保护起来,防止磕碰

bd102ae76fb1f0a70c6f13e78d24c6c.jpg
回复 支持 反对

使用道具 举报

 楼主| 发表于 2022-9-10 08:13:15 | 显示全部楼层
本帖最后由 格堂红叶 于 2022-9-10 08:15 编辑

开工前电梯口墙面和地面已经保护到位

67c3564d3bdf4f803cefd2e152c857d.jpg

73adda921fe5cfe0e6288e42e7ac59e.jpg

d5496cb59abf2945435b10b0395579d.jpg

c138a620b4df65d8a83c00487487ea2.jpg

c2ef591fe7d0600e4797234e3bdad38.jpg


回复 支持 反对

使用道具 举报

 楼主| 发表于 2022-9-10 08:18:50 | 显示全部楼层
开工前电梯口墙面和地面已经保护到位

dd13042ed2f3540c818b26f4a660c96.jpg

38d1be84c977e0485ca1135c87dfffe.jpg

262dc495ccca817b5689fdbd60a8d81.jpg

7f093e34d0e1f221135c480481fb08b.jpg

7412e30c4b5ef5794d213a48f9464cf.jpg

回复 支持 反对

使用道具 举报

 楼主| 发表于 2022-9-10 08:20:00 | 显示全部楼层
卫生间的简易马桶安装到位,防止后期施工中沙石堵塞进入,美观又干净!


50fb5ca54b01abd77daf0f855bb2fad.jpg
回复 支持 反对

使用道具 举报

 楼主| 发表于 2022-9-10 08:21:28 | 显示全部楼层
排水管道用格堂装饰专用保护盖保护,防止后期施工砂石堵塞管道

8eda2d99c1c4d77946b569e4e4f62ee.jpg

add106398341341d5628dc68608401b.jpg

d622be095ca375587bc7f48dd930037.jpg

6892e8f95830777425a3b94e4192d7a.jpg

d0e3174536ec4ca7090c3eed85829b5.jpg

回复 支持 反对

使用道具 举报

 楼主| 发表于 2022-9-10 08:22:20 | 显示全部楼层
煤气表已经保护到位。

b171e6ece9b03893f5f6cf686aba9e9.jpg
回复 支持 反对

使用道具 举报

您需要登录后才可以回帖 登录 | 立即注册

本版积分规则

全国统一客服电话
0570-8028505

24x7小时免费咨询

  • 官方在线客服

    QQ客服:小西

    点击交谈

    QQ客服:良子

    点击交谈

    QQ客服:闵月

    点击交谈
  • 衢州市柯城区财富中心3号楼2楼

  • 衢州格堂装饰有限公司

  • 扫一扫关注官方微信

    获取一手特惠信息

快速回复 返回顶部 返回列表