• 手机版

    扫码体验手机版

  • 微信公众号

    扫码关注公众号

登录注册
游客您好
第三方账号登陆

[衢州] 誉江南15-4-70#138㎡现代——轻奢时代

[复制链接]
发表于 2022-9-2 17:22:43 | 显示全部楼层 |阅读模式
誉江南15-4-70#138㎡现代——轻奢时代

格堂装饰为您全程记录装修全过程!

小区名称
誉江南
房屋面积
138㎡
户型结构
套房
装修风格
现代
装修方式
半包
装修造价
查看请联系客服万元
设计师
吴工
项目经理
周工
装修公司
格堂装饰
完工实景
完工实景
水电全景
水电全景
VR全景
VR全景
设计说明
以意式零度半透工艺呈现的胡桃木饰面,结合充满质感与张力的大理石材,再与哑光黑金属叠加,秩序分明,让整个空间的时尚格调兼容并蓄。案例中的现代轻奢风格以冷色调定位,整个基调雅致细腻,体现了主人的优雅品质。
更多信息
效果图
5d2166fa3d46aca4c0f86cfe11313f1.jpg

99e72f414bd92f254ca92e0c97eb516.jpg

回复

使用道具 举报

 楼主| 发表于 2022-9-2 17:25:51 | 显示全部楼层
原始结构图

QQ截图20220902171347.png
回复 支持 反对

使用道具 举报

 楼主| 发表于 2022-9-2 17:26:16 | 显示全部楼层
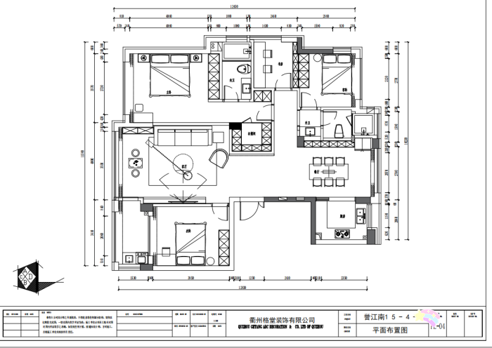
平面布置图

QQ截图20220902171315.png
回复 支持 反对

使用道具 举报

 楼主| 发表于 2022-9-2 17:27:05 | 显示全部楼层
本帖最后由 格堂陈辰 于 2022-12-11 14:03 编辑

目      录


回复 支持 反对

使用道具 举报

 楼主| 发表于 2022-9-2 17:27:40 | 显示全部楼层

电梯口保护
IMG_20220831_083307.jpg

IMG_20220831_083309.jpg

IMG_20220831_083312.jpg

IMG_20220831_083310.jpg

IMG_20220831_083314.jpg
回复 支持 反对

使用道具 举报

 楼主| 发表于 2022-9-2 17:28:13 | 显示全部楼层

电梯口对角
IMG_20220831_083321.jpg

IMG_20220831_083322.jpg

IMG_20220831_083327.jpg

IMG_20220831_083324.jpg

IMG_20220831_083325.jpg
回复 支持 反对

使用道具 举报

 楼主| 发表于 2022-9-2 17:28:36 | 显示全部楼层

大门保护
IMG_20220831_083341.jpg
回复 支持 反对

使用道具 举报

 楼主| 发表于 2022-9-2 17:29:08 | 显示全部楼层
门槛保护

回复 支持 反对

使用道具 举报

 楼主| 发表于 2022-9-2 17:29:50 | 显示全部楼层
临时马桶:每一个施工现场都会配备临时小便斗,并且时刻保持干净卫生、保证工地环境干净、整洁
IMG_20220831_082632.jpg
回复 支持 反对

使用道具 举报

 楼主| 发表于 2022-9-3 13:59:11 | 显示全部楼层
本帖最后由 格堂陈辰 于 2022-9-3 14:21 编辑

水管用格堂专用保护盖保护,防止砂石堵塞管道
IMG_20220831_083746.jpg

回复 支持 反对

使用道具 举报

您需要登录后才可以回帖 登录 | 立即注册

本版积分规则

全国统一客服电话
0570-8028505

24x7小时免费咨询

  • 官方在线客服

    QQ客服:小西

    点击交谈

    QQ客服:良子

    点击交谈

    QQ客服:闵月

    点击交谈
  • 衢州市柯城区财富中心3号楼2楼

  • 衢州格堂装饰有限公司

  • 扫一扫关注官方微信

    获取一手特惠信息

快速回复 返回顶部 返回列表