• 手机版

    扫码体验手机版

  • 微信公众号

    扫码关注公众号

登录注册
游客您好
第三方账号登陆

[衢州] 牡丹园12-2-2#189㎡现代轻奢--【轻奢艺术生活】

[复制链接]
发表于 2022-9-1 09:15:20 | 显示全部楼层 |阅读模式
【轻奢艺术生活】

格堂装饰为您全程记录装修全过程!

小区名称
牡丹园
房屋面积
189㎡
户型结构
套房
装修风格
现代轻奢
装修方式
半包
装修造价
查看请联系客服万元
设计师
韩工
项目经理
刘工
装修公司
格堂装饰
完工实景
完工实景
水电全景
水电全景
VR全景
VR全景
设计说明
扭转看似单调缺乏艺术的空间,又或是给空间亿点点细节,除了改变冰冷的水泥墙体,还可以加入美学故事,本案设计装修风格以高品质、设计感、舒适、简约为特点,同时也代表着自由与贵气,并且经过巧妙的混搭与组合,让空间的奢华感上升到一个新的高度。
更多信息

效果图
246b16494382f28ccc7780449c7c040.jpg

eb5687e5a596b0da4203621146b59ff.jpg

f30444a5e00d1aa7e9b3434e422b5f8.jpg
回复

使用道具 举报

 楼主| 发表于 2022-9-1 09:17:49 | 显示全部楼层
本帖最后由 格堂月红 于 2023-2-6 14:04 编辑

目      录


回复 支持 反对

使用道具 举报

 楼主| 发表于 2022-9-1 09:18:06 | 显示全部楼层

原始结构图
70c80b8f02d25c32361515e17d10e69.png
回复 支持 反对

使用道具 举报

 楼主| 发表于 2022-9-1 09:18:25 | 显示全部楼层
本帖最后由 格堂月红 于 2022-11-30 14:47 编辑

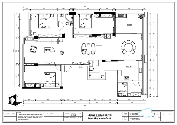
平面布置图
9412643da95be021a2ef64b09788394.png
回复 支持 反对

使用道具 举报

 楼主| 发表于 2022-9-1 09:19:25 | 显示全部楼层

开工前,电梯口墙面和地面已经保护到位。
mmexport1661911627613.jpg

mmexport1661911629913.jpg

mmexport1661911632378.jpg

mmexport1661911634961.jpg

mmexport1661911637682.jpg
回复 支持 反对

使用道具 举报

 楼主| 发表于 2022-9-1 09:20:00 | 显示全部楼层

电梯口
mmexport1661911640217.jpg

mmexport1661911642603.jpg

mmexport1661911645198.jpg

mmexport1661911647878.jpg
回复 支持 反对

使用道具 举报

 楼主| 发表于 2022-9-1 09:23:17 | 显示全部楼层

大门已经保护好了
mmexport1661911624916.jpg

mmexport1661911652713.jpg
回复 支持 反对

使用道具 举报

 楼主| 发表于 2022-9-1 09:23:45 | 显示全部楼层

门槛已经保护好了
mmexport1661911616952.jpg
回复 支持 反对

使用道具 举报

 楼主| 发表于 2022-9-1 09:26:12 | 显示全部楼层

一次性小便池已经放好,每一个施工现场都会配备临时小便斗,并且时刻保持干净卫生、保证工地环境干净、整洁。
mmexport1661911619621.jpg
回复 支持 反对

使用道具 举报

 楼主| 发表于 2022-9-1 09:26:41 | 显示全部楼层

煤气表已经保护到位
mmexport1661911607884.jpg
回复 支持 反对

使用道具 举报

您需要登录后才可以回帖 登录 | 立即注册

本版积分规则

全国统一客服电话
0570-8028505

24x7小时免费咨询

  • 官方在线客服

    QQ客服:小西

    点击交谈

    QQ客服:良子

    点击交谈

    QQ客服:闵月

    点击交谈
  • 衢州市柯城区财富中心3号楼2楼

  • 衢州格堂装饰有限公司

  • 扫一扫关注官方微信

    获取一手特惠信息

快速回复 返回顶部 返回列表