• 手机版

    扫码体验手机版

  • 微信公众号

    扫码关注公众号

登录注册
游客您好
第三方账号登陆

[开化] 御景湾6-3-1#100㎡现代----初始

[复制链接]
发表于 2022-8-30 17:31:38 | 显示全部楼层 |阅读模式
御景湾6-3-1#100㎡现代----初始

格堂装饰为您全程记录装修全过程!

小区名称
御景湾
房屋面积
100㎡
户型结构
3房2厅1卫1阳台
装修风格
现代
装修方式
半包
装修造价
查看请联系客服万元
设计师
蒋工
项目经理
徐工
装修公司
格堂装饰
完工实景
完工实景
水电全景
水电全景
VR全景
VR全景
设计说明
现代简约风格主要表现在空间开敞、内外通透,在空间平面设计中追求不受承重墙的限制自由
更多信息

效果图
3af90b9fc271f4f8d7f815d20d473f0.jpg

da39ff0bf8ce543d1ff771d73930991.jpg
回复

使用道具 举报

 楼主| 发表于 2022-8-30 17:32:02 | 显示全部楼层
本帖最后由 格堂小韩 于 2023-1-9 11:14 编辑


回复 支持 反对

使用道具 举报

 楼主| 发表于 2022-9-23 10:58:23 | 显示全部楼层

原始结构图
御景湾6-3-102(1)_02_副本.jpg
回复 支持 反对

使用道具 举报

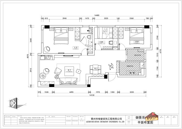
 楼主| 发表于 2022-9-23 10:58:41 | 显示全部楼层

平面布置图
御景湾6-3-102(1)_05_副本.jpg
回复 支持 反对

使用道具 举报

 楼主| 发表于 2022-9-23 10:59:04 | 显示全部楼层

开工前准备
IMG_2043.JPG

IMG_2044.JPG

IMG_2045.JPG

IMG_2046.JPG

IMG_2047.JPG
回复 支持 反对

使用道具 举报

 楼主| 发表于 2022-9-23 10:59:58 | 显示全部楼层

吉时到,我们开工啦
IMG_2155.JPG

IMG_2154.JPG
回复 支持 反对

使用道具 举报

 楼主| 发表于 2022-9-23 11:01:11 | 显示全部楼层

装修开工第一锤应该敲在要拆除的墙体的墙角(即拐角)上,象征一锤定音的意思,也是新房动土的一种表示方式
IMG_2156.JPG

IMG_2153.JPG
回复 支持 反对

使用道具 举报

 楼主| 发表于 2022-9-23 11:01:42 | 显示全部楼层

厨房原始结构
IMG_2048.JPG

IMG_2049.JPG

IMG_2050.JPG

IMG_2051.JPG

IMG_2052.JPG
回复 支持 反对

使用道具 举报

 楼主| 发表于 2022-9-23 14:13:20 | 显示全部楼层

厨房对角原始结构
IMG_2053.JPG

IMG_2054.JPG

IMG_2055.JPG

IMG_2056.JPG

IMG_2057.JPG
回复 支持 反对

使用道具 举报

 楼主| 发表于 2022-9-23 14:14:08 | 显示全部楼层

外卫原始结构
IMG_2058.JPG

IMG_2059.JPG

IMG_2060.JPG

IMG_2061.JPG

IMG_2062.JPG
回复 支持 反对

使用道具 举报

您需要登录后才可以回帖 登录 | 立即注册

本版积分规则

全国统一客服电话
0570-8028505

24x7小时免费咨询

  • 官方在线客服

    QQ客服:小西

    点击交谈

    QQ客服:良子

    点击交谈

    QQ客服:闵月

    点击交谈
  • 衢州市柯城区财富中心3号楼2楼

  • 衢州格堂装饰有限公司

  • 扫一扫关注官方微信

    获取一手特惠信息

快速回复 返回顶部 返回列表