• 手机版

    扫码体验手机版

  • 微信公众号

    扫码关注公众号

登录注册
游客您好
第三方账号登陆

[江山] 望府3# 110m2现代法式风--温柔的云

[复制链接]
发表于 2022-8-28 14:32:35 | 显示全部楼层 |阅读模式
望府3# 110m2现代法式风--温柔的云

格堂装饰为您全程记录装修全过程!

小区名称
望府
房屋面积
110㎡
户型结构
套房
装修风格
现代
装修方式
全包
装修造价
查看请联系客服万元
设计师
王工
项目经理
郑工
装修公司
格堂装饰
完工实景
完工实景
水电全景
水电全景
VR全景
VR全景
设计说明
优雅的奶白色作为空间的主基调,塑造温馨舒适的居家氛围。精致的线条装饰柜门房门,满满的层次和立体感。在浅色的整体配色中加入一抹蓝色一抹橙色,体现生活中的热情。
更多信息
回复

使用道具 举报

发表于 2022-9-2 09:27:01 | 显示全部楼层
本帖最后由 格堂小周 于 2022-9-6 13:04 编辑


回复

使用道具 举报

 楼主| 发表于 2022-8-28 14:34:21 | 显示全部楼层
原始结构图


982e66cd7604c7a3218845df8f4c272.png
回复 支持 反对

使用道具 举报

 楼主| 发表于 2022-8-28 14:34:57 | 显示全部楼层
本帖最后由 格堂红叶 于 2022-9-6 09:45 编辑

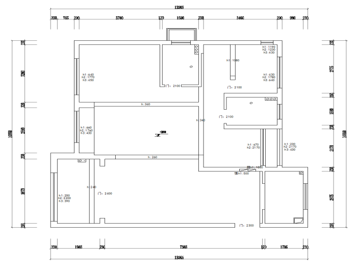
平面布置图
88d535ec6675d4434f9ce2f046e15a3.png


回复 支持 反对

使用道具 举报

 楼主| 发表于 2022-8-28 15:08:48 | 显示全部楼层
大门已保护好,防止磕碰

0adab8371522b1085da77f87058656f.jpg

091b482cef80d0291863f39519cf64a.jpg

4cafe6d74c74a5a79a6a73301e6f8ca.jpg

d5173d1805538db0abe67351c23ef87.jpg

回复 支持 反对

使用道具 举报

 楼主| 发表于 2022-8-28 15:09:55 | 显示全部楼层
本帖最后由 格堂红叶 于 2022-8-28 15:53 编辑

门槛保护起来,防止磕碰

ffff1b1cc00b7549a60e3dfc07bb295.jpg
回复 支持 反对

使用道具 举报

 楼主| 发表于 2022-8-28 15:12:18 | 显示全部楼层
本帖最后由 格堂红叶 于 2022-8-28 15:53 编辑

卫生间的简易马桶安装到位,防止后期施工中沙石堵塞进入,美观又干净!

3cae1572dbc37042e6ea9657f7c9c5d.jpg

7a40ad7954bbf132eee1afdb9b1e2d1.jpg
回复 支持 反对

使用道具 举报

 楼主| 发表于 2022-8-28 15:15:42 | 显示全部楼层
本帖最后由 格堂红叶 于 2022-8-28 15:53 编辑

排水管道用格堂装饰专用保护盖保护,防止后期施工砂石堵塞管道

9f51eb1ca6435916633331b4372a2f0.jpg

73ae3cc52419d4b0b21e4bcbcb71830.jpg

c8b7d6d3934c1f3d6755fecbc100a42.jpg

d83ebab7910c6e5112c7ec675594f1c.jpg

ed0993b3fcc72f87f18b01782de2520.jpg

回复 支持 反对

使用道具 举报

 楼主| 发表于 2022-8-28 15:16:39 | 显示全部楼层
本帖最后由 格堂红叶 于 2022-9-7 10:16 编辑

煤气管道用格堂装饰专用保护盖保护,防止后期施工砂石堵塞管道

374b312041d4a823b5ed20d4b2022a7.jpg

回复 支持 反对

使用道具 举报

 楼主| 发表于 2022-8-28 15:17:51 | 显示全部楼层
本帖最后由 格堂红叶 于 2022-8-28 15:28 编辑

礼炮已准备好

47eebc5711260398bbb3d0bce9661ee.jpg

8cce51fdfc7c9f1cd0ddb2e542a8fce.jpg

回复 支持 反对

使用道具 举报

 楼主| 发表于 2022-8-28 15:22:20 | 显示全部楼层
本帖最后由 格堂红叶 于 2022-9-7 10:16 编辑

开工锤已准备好

ff50b193430662395820ff79cc6d000.jpg
回复 支持 反对

使用道具 举报

您需要登录后才可以回帖 登录 | 立即注册

本版积分规则

全国统一客服电话
0570-8028505

24x7小时免费咨询

  • 官方在线客服

    QQ客服:小西

    点击交谈

    QQ客服:良子

    点击交谈

    QQ客服:闵月

    点击交谈
  • 衢州市柯城区财富中心3号楼2楼

  • 衢州格堂装饰有限公司

  • 扫一扫关注官方微信

    获取一手特惠信息

快速回复 返回顶部 返回列表