• 手机版

    扫码体验手机版

  • 微信公众号

    扫码关注公众号

登录注册
游客您好
第三方账号登陆

[衢州] 望潮府6-3-4#100㎡复古奶油风——温柔治愈的家

[复制链接]
发表于 2022-8-25 16:08:05 | 显示全部楼层 |阅读模式
望潮府6-3-4#100㎡复古奶油风——温柔治愈的家

格堂装饰为您全程记录装修全过程!

小区名称
望潮府
房屋面积
100㎡
户型结构
套房
装修风格
奶油风
装修方式
半包
装修造价
查看请联系客服万元
设计师
邓工
项目经理
施工
装修公司
格堂装饰
完工实景
完工实景
水电全景
水电全景
VR全景
VR全景
设计说明
墙面大面积使用奶油色并融合木色跳色,使整个空间温暖优雅,橱柜、餐边柜、墙面局部点缀使用活泼温柔的抹茶色,点亮了整个空间。干净利落的PU线条与柔和的弧线发生碰撞,让整个家又飒又温柔。
更多信息
效果图
80ccb5a38ce71e47f1342db2eb4fd1b.jpg

678aac10af1bc86fc39f8e0a28f9714.jpg

7277c6ec9ee98e2e7c4dfe143c847d5.jpg
回复

使用道具 举报

 楼主| 发表于 2022-8-25 16:08:37 | 显示全部楼层
回复 支持 反对

使用道具 举报

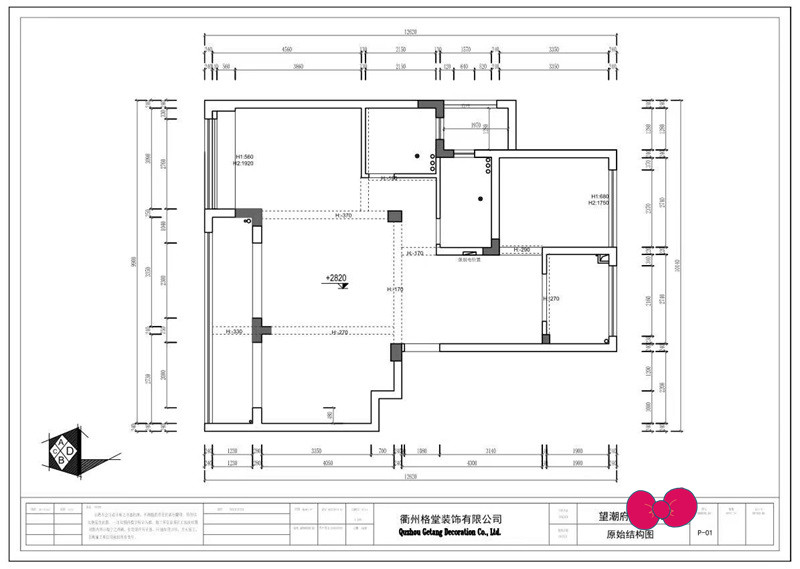
 楼主| 发表于 2022-8-25 16:14:10 | 显示全部楼层
原始结构图
667c95c2531afde05969369e4eb12f1_副本.jpg
回复 支持 反对

使用道具 举报

 楼主| 发表于 2022-8-25 16:14:25 | 显示全部楼层
平面布置图
21e11a8a90f44f79e410196f516fd49_副本.jpg
回复 支持 反对

使用道具 举报

 楼主| 发表于 2022-8-25 16:18:10 | 显示全部楼层
开工仪式准备,开工横幅、鲜花、礼花准备到位
IMG_20220821_135945.jpg

IMG_20220821_140737.jpg

IMG_20220821_140910.jpg

回复 支持 反对

使用道具 举报

 楼主| 发表于 2022-8-25 16:18:59 | 显示全部楼层
大门保护,防水施工过程中磕碰到
IMG_20220821_141407.jpg

IMG_20220821_142037.jpg
回复 支持 反对

使用道具 举报

 楼主| 发表于 2022-8-25 16:19:50 | 显示全部楼层
燃气表保护到位
IMG_20220821_141627.jpg
回复 支持 反对

使用道具 举报

 楼主| 发表于 2022-8-25 16:20:17 | 显示全部楼层
下水管用格堂专用保护盖保护,防止砂石堵塞管道
IMG_20220821_141519.jpg

IMG_20220821_141602.jpg

回复 支持 反对

使用道具 举报

 楼主| 发表于 2022-8-25 16:20:42 | 显示全部楼层
简易马桶到位
IMG_20220821_141652.jpg

回复 支持 反对

使用道具 举报

 楼主| 发表于 2022-8-25 16:21:48 | 显示全部楼层
配电箱盖拆下来保管
IMG_20220821_141553.jpg

IMG_20220821_141551.jpg

IMG_20220821_142109.jpg
回复 支持 反对

使用道具 举报

您需要登录后才可以回帖 登录 | 立即注册

本版积分规则

全国统一客服电话
0570-8028505

24x7小时免费咨询

  • 官方在线客服

    QQ客服:小西

    点击交谈

    QQ客服:良子

    点击交谈

    QQ客服:闵月

    点击交谈
  • 衢州市柯城区财富中心3号楼2楼

  • 衢州格堂装饰有限公司

  • 扫一扫关注官方微信

    获取一手特惠信息

快速回复 返回顶部 返回列表