• 手机版

    扫码体验手机版

  • 微信公众号

    扫码关注公众号

登录注册
游客您好
第三方账号登陆

[衢州] 南湖碧苑1-2-2#153㎡后现代简约风——《无界之归》

[复制链接]
发表于 2022-8-14 11:21:11 | 显示全部楼层 |阅读模式
《无界之归》

格堂装饰为您全程记录装修全过程!

小区名称
南湖碧苑
房屋面积
153㎡
户型结构
复式
装修风格
后现代
装修方式
半包
装修造价
查看请联系客服万元
设计师
江工
项目经理
施工
装修公司
格堂装饰
完工实景
完工实景
水电全景
水电全景
VR全景
VR全景
设计说明
我们身处在节奏快的都市生活,回到家只想安静的过休闲的生活。在软装上此阿勇了一些色彩点缀,让客供件显得没有那么单板沉闷,整个画面看着比较舒适。现代风格搭配一些木色,配上简洁的灰色大地砖,空间显得有温度又很简洁。
更多信息
效果图
05ab6cceb8cee4f0364afdb681fc96a.png

7b40b5fedaf971d3ca46577306291ac.jpg

cc1bbe57e2471f2d61a5feeac177a0a.jpg

cc86b3a4c48e9100f9198f0b4ab02f3.png

f4ea6e83eb2622273518c689a71adf6.png
回复

使用道具 举报

 楼主| 发表于 2022-8-14 11:21:54 | 显示全部楼层

原始结构图
300d858969f30c768ed6aca7f15353e.png

58566a2260fac9835ea1dfd7d39b4d8.png
回复 支持 反对

使用道具 举报

 楼主| 发表于 2022-8-14 11:22:22 | 显示全部楼层

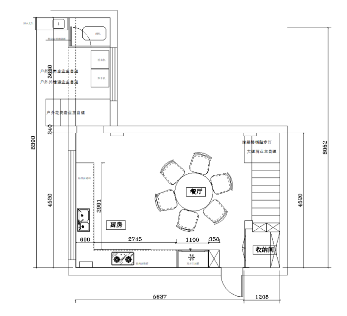
平面布置图
1357771c95e91949b07a59db14cf553.png

cbd4f5345f52868e181f44e86f0a0d0.png
回复 支持 反对

使用道具 举报

 楼主| 发表于 2022-8-14 11:25:48 | 显示全部楼层
回复 支持 反对

使用道具 举报

 楼主| 发表于 2022-8-14 11:29:09 | 显示全部楼层

8月10日是个开工的好日子,项目经理正在开工仪式前的准备。
IMG_20220810_152405.jpg

IMG_20220810_152453.jpg
回复 支持 反对

使用道具 举报

 楼主| 发表于 2022-8-14 11:30:05 | 显示全部楼层

礼炮已经准备到位
IMG_20220810_152230.jpg
回复 支持 反对

使用道具 举报

 楼主| 发表于 2022-8-14 11:32:29 | 显示全部楼层

下水管用格堂专用保护盖保护,防止砂石堵塞管道

IMG_20220810_153939.jpg
回复 支持 反对

使用道具 举报

 楼主| 发表于 2022-8-14 11:34:52 | 显示全部楼层

一次性小便池已经安放好了。
IMG_20220810_153353.jpg
回复 支持 反对

使用道具 举报

 楼主| 发表于 2022-8-14 11:35:38 | 显示全部楼层

给业主大人送上美丽的鲜花!
IMG_20220810_152112.jpg
回复 支持 反对

使用道具 举报

 楼主| 发表于 2022-8-14 11:36:47 | 显示全部楼层

吉时到,开工了,恭祝业主大人开工大吉!!!
IMG_20220810_152805.jpg
回复 支持 反对

使用道具 举报

您需要登录后才可以回帖 登录 | 立即注册

本版积分规则

全国统一客服电话
0570-8028505

24x7小时免费咨询

  • 官方在线客服

    QQ客服:小西

    点击交谈

    QQ客服:良子

    点击交谈

    QQ客服:闵月

    点击交谈
  • 衢州市柯城区财富中心3号楼2楼

  • 衢州格堂装饰有限公司

  • 扫一扫关注官方微信

    获取一手特惠信息

快速回复 返回顶部 返回列表