• 手机版

    扫码体验手机版

  • 微信公众号

    扫码关注公众号

登录注册
游客您好
第三方账号登陆

[衢州] 誉江南15-1-10#103㎡现代—— 灰调质感的家

[复制链接]
发表于 2022-8-9 17:22:15 | 显示全部楼层 |阅读模式
誉江南15-1-10#103㎡现代—— 灰调质感的家

格堂装饰为您全程记录装修全过程!

小区名称
誉江南
房屋面积
103㎡
户型结构
套房
装修风格
现代
装修方式
半包
装修造价
查看请联系客服万元
设计师
徐工
项目经理
周工
装修公司
格堂装饰
完工实景
完工实景
水电全景
水电全景
VR全景
VR全景
设计说明
居于城市,喧嚣与宁静的矛盾聚合,
渴望一处可消弭感知界限的空间,
让知觉、想象、情感自由生长,
静度时光,诗意栖息。
更多信息
效果图

3d55e1de1be14cfa5afa7577c97ba68.jpg

40df37f05ba15ceb53bda5b3e5c773f.jpg

b115cd1959a785fb1ce3de8d33767b2.jpg
回复

使用道具 举报

 楼主| 发表于 2022-8-9 17:22:57 | 显示全部楼层
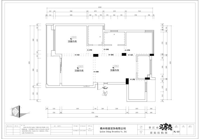
原始结构图

6a93e6e6a8529b2d489e6e202c07b26.jpg
回复 支持 反对

使用道具 举报

 楼主| 发表于 2022-8-9 17:23:20 | 显示全部楼层
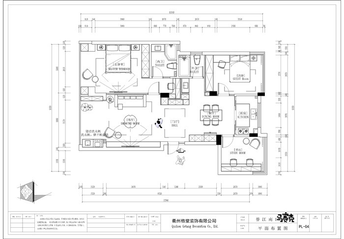
平面布置图

39ff3b9af40d1a55e2ced194b4bb242.jpg
回复 支持 反对

使用道具 举报

 楼主| 发表于 2022-8-9 17:24:05 | 显示全部楼层
本帖最后由 格堂陈辰 于 2022-9-8 16:44 编辑

目      录

1开工9水电验收
2拆改10泥木工材料
3砌墙11泥木工中途
4黄墙绿地12泥木工验收
5水电放样13油漆材料
6水电材料14油漆中途
7水电中途15安装阶段
8水电完工图16竣工验收

回复 支持 反对

使用道具 举报

 楼主| 发表于 2022-8-9 17:24:51 | 显示全部楼层
电梯口保护到位
IMG_20220805_081810.jpg

IMG_20220805_081813.jpg

IMG_20220805_081818.jpg

IMG_20220805_081815.jpg

IMG_20220805_081821.jpg
回复 支持 反对

使用道具 举报

 楼主| 发表于 2022-8-9 17:25:55 | 显示全部楼层

电梯口对角
IMG_20220805_081829.jpg

IMG_20220805_081830.jpg

IMG_20220805_081837.jpg

IMG_20220805_081832.jpg

IMG_20220805_081835.jpg
回复 支持 反对

使用道具 举报

 楼主| 发表于 2022-8-9 17:26:32 | 显示全部楼层

大门保护
IMG_20220802_090513.jpg

IMG_20220805_081730.jpg
回复 支持 反对

使用道具 举报

 楼主| 发表于 2022-8-9 17:26:58 | 显示全部楼层

门槛保护
IMG_20220805_081736.jpg
回复 支持 反对

使用道具 举报

 楼主| 发表于 2022-8-9 17:27:59 | 显示全部楼层
临时马桶:每一个施工现场都会配备临时小便斗,并且时刻保持干净卫生、保证工地环境干净、整洁
IMG_20220802_084752.jpg
回复 支持 反对

使用道具 举报

 楼主| 发表于 2022-8-9 17:29:36 | 显示全部楼层
礼炮已就绪。
IMG_20220802_084223.jpg

回复 支持 反对

使用道具 举报

您需要登录后才可以回帖 登录 | 立即注册

本版积分规则

全国统一客服电话
0570-8028505

24x7小时免费咨询

  • 官方在线客服

    QQ客服:小西

    点击交谈

    QQ客服:良子

    点击交谈

    QQ客服:闵月

    点击交谈
  • 衢州市柯城区财富中心3号楼2楼

  • 衢州格堂装饰有限公司

  • 扫一扫关注官方微信

    获取一手特惠信息

快速回复 返回顶部 返回列表