• 手机版

    扫码体验手机版

  • 微信公众号

    扫码关注公众号

登录注册
游客您好
第三方账号登陆

[衢州] 中梁首府8-2-4#122㎡新中式——寅·韵

[复制链接]
发表于 2022-8-9 16:13:04 | 显示全部楼层 |阅读模式
新中式——寅·韵

格堂装饰为您全程记录装修全过程!

小区名称
中梁首府
房屋面积
122㎡
户型结构
套房
装修风格
新中式
装修方式
半包
装修造价
查看请联系客服万元
设计师
杨工
项目经理
徐工
装修公司
格堂装饰
完工实景
完工实景
水电全景
水电全景
VR全景
VR全景
设计说明
将古典的中式风格与现代进行结合,打破了原有的传统中式风格比较沉闷
更多信息

效果图
mmexport1660031781733.jpg

mmexport1660031784013.jpg
回复

使用道具 举报

 楼主| 发表于 2022-8-9 16:13:42 | 显示全部楼层
本帖最后由 格堂水菊 于 2022-8-13 15:16 编辑

开工
拆改阶段
砌墙阶段
回复 支持 反对

使用道具 举报

 楼主| 发表于 2022-8-9 16:14:08 | 显示全部楼层
原始图

mmexport1660031752561.jpg
回复 支持 反对

使用道具 举报

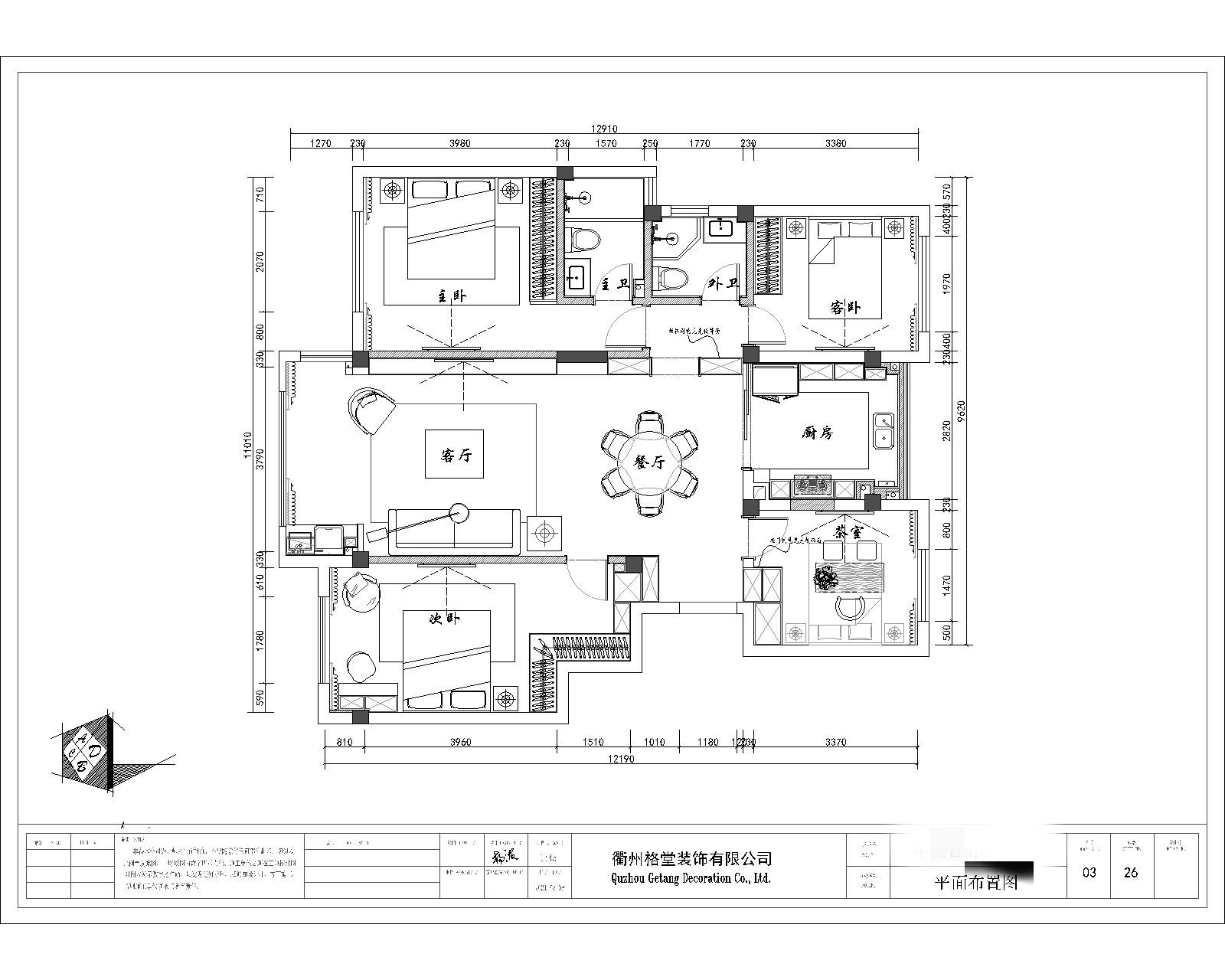
 楼主| 发表于 2022-8-9 16:15:09 | 显示全部楼层

平面布置图
mmexport1660031750568.jpg
回复 支持 反对

使用道具 举报

 楼主| 发表于 2022-8-9 16:19:01 | 显示全部楼层

煤气表保护,防止后期磕碰。
IMG_20220801_094846.jpg
回复 支持 反对

使用道具 举报

 楼主| 发表于 2022-8-9 16:19:46 | 显示全部楼层

下水管用格堂专用保护盖保护,防止砂石堵塞管道。
IMG_20220801_094849.jpg

IMG_20220801_094911.jpg

IMG_20220801_094925.jpg

IMG_20220801_095000.jpg
回复 支持 反对

使用道具 举报

 楼主| 发表于 2022-8-9 16:21:29 | 显示全部楼层

大门保护好了,防止后期后期磕碰
IMG_20220801_094822.jpg
回复 支持 反对

使用道具 举报

 楼主| 发表于 2022-8-9 16:22:04 | 显示全部楼层

项目经理在做开工前准备。
IMG_20220801_094449.jpg
回复 支持 反对

使用道具 举报

 楼主| 发表于 2022-8-9 16:22:41 | 显示全部楼层

一切准备就绪,就等吉时
IMG_20220801_095231.jpg
回复 支持 反对

使用道具 举报

 楼主| 发表于 2022-8-9 16:23:21 | 显示全部楼层

开工吉时到,礼花放起来,恭祝业主开工大吉,大吉大利!!!
IMG_20220801_095804.jpg

IMG_20220801_095805.jpg
回复 支持 反对

使用道具 举报

您需要登录后才可以回帖 登录 | 立即注册

本版积分规则

全国统一客服电话
0570-8028505

24x7小时免费咨询

  • 官方在线客服

    QQ客服:小西

    点击交谈

    QQ客服:良子

    点击交谈

    QQ客服:闵月

    点击交谈
  • 衢州市柯城区财富中心3号楼2楼

  • 衢州格堂装饰有限公司

  • 扫一扫关注官方微信

    获取一手特惠信息

快速回复 返回顶部 返回列表