• 手机版

    扫码体验手机版

  • 微信公众号

    扫码关注公众号

登录注册
游客您好
第三方账号登陆

[衢州] 衢州公馆29--3#408㎡现代 —《光衍境域》

[复制链接]
发表于 2022-7-29 10:18:29 | 显示全部楼层 |阅读模式
《光衍境域》

格堂装饰为您全程记录装修全过程!

小区名称
衢州公馆
房屋面积
408㎡
户型结构
别墅
装修风格
现代
装修方式
半包
装修造价
查看请联系客服万元
设计师
江工
项目经理
余工
装修公司
格堂装饰
完工实景
完工实景
水电全景
水电全景
VR全景
VR全景
设计说明
希望这个家能更多保持与自然的互通,阳光、空气是生命力的源泉,当空间与自然更好的互通,便有着无限的生命力释放。客厅彻底释放采光优势,并将南入口打通构建“盒体”,将自然光进行过滤后引入室内,让整体核心区域充满能量。
更多信息
本帖最后由 格堂飞飞 于 2022-7-29 10:20 编辑

效果图
IMG_8625.JPG

IMG_8626.JPG

IMG_8631.JPG

IMG_8632.JPG

IMG_8633.JPG
回复

使用道具 举报

 楼主| 发表于 2022-7-29 10:20:43 | 显示全部楼层
本帖最后由 格堂飞飞 于 2023-1-2 16:58 编辑

开工
拆改阶段
砌墙阶段
水电放样
水电材料
水电阶段



回复 支持 反对

使用道具 举报

 楼主| 发表于 2022-7-29 10:23:08 | 显示全部楼层

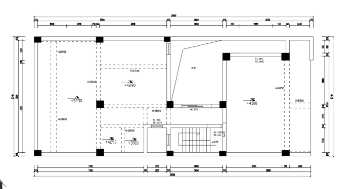
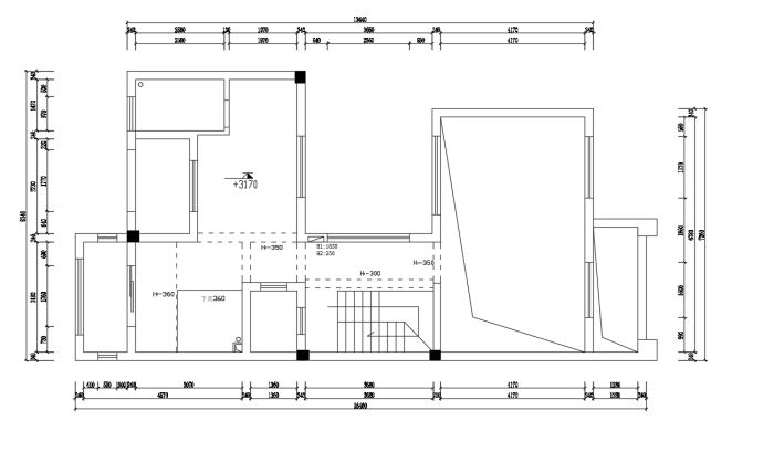
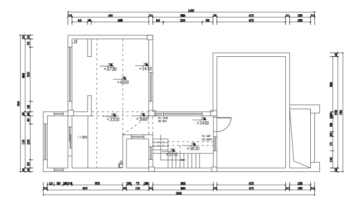
原始结构图
IMG_9413.PNG

IMG_9416.PNG

IMG_9418.PNG

IMG_9420.PNG
回复 支持 反对

使用道具 举报

 楼主| 发表于 2022-7-29 10:26:27 | 显示全部楼层

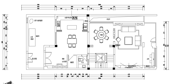
平面布置图
IMG_9414.PNG

IMG_9415.PNG

IMG_9417.PNG

IMG_9419.PNG

IMG_9421.PNG
回复 支持 反对

使用道具 举报

 楼主| 发表于 2022-7-29 10:27:50 | 显示全部楼层

开工前准备工作,先要做好哦!
IMG_2978.JPG

IMG_2979.JPG

IMG_2981.JPG

IMG_2982.JPG

IMG_2984.JPG
回复 支持 反对

使用道具 举报

 楼主| 发表于 2022-7-29 10:31:28 | 显示全部楼层

项目经理正在煤气表保护,防止磕碰哦!
IMG_2986.JPG

IMG_2987.JPG
回复 支持 反对

使用道具 举报

 楼主| 发表于 2022-7-29 10:39:49 | 显示全部楼层

准备工作做好了,等待开工吉时喽!
IMG_2989.JPG

IMG_2990.JPG
回复 支持 反对

使用道具 举报

 楼主| 发表于 2022-7-29 10:40:31 | 显示全部楼层

吉时已到恭祝,业主大人,开工大吉!
IMG_3012.JPG
回复 支持 反对

使用道具 举报

 楼主| 发表于 2022-7-29 10:46:34 | 显示全部楼层

开工第一锤,由业主大人,亲自来哦!
IMG_2995.JPG
回复 支持 反对

使用道具 举报

 楼主| 发表于 2022-7-29 10:48:42 | 显示全部楼层

装修开工第一锤应该由业主敲在要拆除的墙体的墙角(即拐角)上,象征一锤定音的意思,也是新房动土的一种表示方式。

IMG_2997.JPG
回复 支持 反对

使用道具 举报

您需要登录后才可以回帖 登录 | 立即注册

本版积分规则

全国统一客服电话
0570-8028505

24x7小时免费咨询

  • 官方在线客服

    QQ客服:小西

    点击交谈

    QQ客服:良子

    点击交谈

    QQ客服:闵月

    点击交谈
  • 衢州市柯城区财富中心3号楼2楼

  • 衢州格堂装饰有限公司

  • 扫一扫关注官方微信

    获取一手特惠信息

快速回复 返回顶部 返回列表