• 手机版

    扫码体验手机版

  • 微信公众号

    扫码关注公众号

登录注册
游客您好
第三方账号登陆

[衢州] 招贤里4-1-9-#120㎡现代—— 《静谧雅居》

[复制链接]
发表于 2022-7-28 16:22:45 | 显示全部楼层 |阅读模式
《静谧雅居》

格堂装饰为您全程记录装修全过程!

小区名称
招贤里
房屋面积
120㎡
户型结构
套房
装修风格
现代
装修方式
半包
装修造价
查看请联系客服万元
设计师
江工
项目经理
周工
装修公司
格堂装饰
完工实景
完工实景
水电全景
水电全景
VR全景
VR全景
设计说明
希望整体可以有一种简单舒适的感觉,以返璞归真还原生活本色,用简单的设计打造生活中的温馨感。前期主打功能布局做了三稿方案进行了优化。在功能布局下主打收纳,空间感为主。排查拥挤过道。
更多信息

效果图
IMG_9422.JPG

IMG_9423.JPG

IMG_9424.JPG

IMG_9425.JPG

IMG_9426.JPG
回复

使用道具 举报

 楼主| 发表于 2022-7-28 16:22:57 | 显示全部楼层
回复 支持 反对

使用道具 举报

 楼主| 发表于 2022-7-28 16:23:21 | 显示全部楼层

原始结构图
IMG_9427.PNG
回复 支持 反对

使用道具 举报

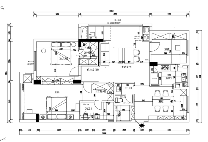
 楼主| 发表于 2022-7-28 16:23:40 | 显示全部楼层

平面布置图
IMG_9428.PNG
回复 支持 反对

使用道具 举报

 楼主| 发表于 2022-7-28 16:25:48 | 显示全部楼层
项目经理正在做,开关前的准备工作!
IMG_7033.JPG

开工前准备工作,先要做好哦!
IMG_7034.JPG


IMG_7037.JPG

IMG_7038.JPG
回复 支持 反对

使用道具 举报

 楼主| 发表于 2022-7-28 16:28:50 | 显示全部楼层

师傅正在大门保护,防止磕碰哦!
IMG_7039.JPG

IMG_7042.JPG
回复 支持 反对

使用道具 举报

 楼主| 发表于 2022-7-28 16:29:26 | 显示全部楼层

项目经理正在煤气表保护,防止磕碰哦!
IMG_7040.JPG

IMG_7043.JPG
回复 支持 反对

使用道具 举报

 楼主| 发表于 2022-7-28 16:30:45 | 显示全部楼层

临时马桶方便师傅使用,要讲究卫生哦!
IMG_7046.JPG
回复 支持 反对

使用道具 举报

 楼主| 发表于 2022-7-28 16:31:28 | 显示全部楼层

门槛也要保护起来,防止磕碰哦!
IMG_7047.JPG

IMG_7048.JPG
回复 支持 反对

使用道具 举报

 楼主| 发表于 2022-7-28 16:32:49 | 显示全部楼层

下水管用格堂专用保护盖保护,防止砂石堵塞管道。

IMG_7070.JPG
回复 支持 反对

使用道具 举报

您需要登录后才可以回帖 登录 | 立即注册

本版积分规则

全国统一客服电话
0570-8028505

24x7小时免费咨询

  • 官方在线客服

    QQ客服:小西

    点击交谈

    QQ客服:良子

    点击交谈

    QQ客服:闵月

    点击交谈
  • 衢州市柯城区财富中心3号楼2楼

  • 衢州格堂装饰有限公司

  • 扫一扫关注官方微信

    获取一手特惠信息

快速回复 返回顶部 返回列表