• 手机版

    扫码体验手机版

  • 微信公众号

    扫码关注公众号

登录注册
游客您好
第三方账号登陆

[龙游] 莱茵河畔17d#209㎡现代—心之所向

[复制链接]
发表于 2022-7-27 10:26:19 | 显示全部楼层 |阅读模式
心之所向

格堂装饰为您全程记录装修全过程!

小区名称
莱茵河畔
房屋面积
209㎡
户型结构
叠排
装修风格
现代
装修方式
半包
装修造价
查看请联系客服万元
设计师
毛工
项目经理
杨工
装修公司
格堂装饰
完工实景
完工实景
水电全景
水电全景
VR全景
VR全景
设计说明
心之所向
几何语言写尽淋漓,塑其沉静质感,绘意趣横生的艺术格调。再借光为引,注入淡然的古韵,以一种平静柔和的方式浸润悠然、沉静、深邃而绵长的空间氛围,与居者内心共情,于纷繁里澄明本心,意向自在,精神为上。
更多信息
本帖最后由 格堂小静 于 2023-3-6 12:31 编辑

客厅效果图
IMG_6545(1).JPG

IMG_6547(20220811-090912).JPG
餐厅效果图
IMG_6546(1).JPG





目      录





回复

使用道具 举报

 楼主| 发表于 2022-7-27 10:26:58 | 显示全部楼层
本帖最后由 格堂小静 于 2022-8-11 09:25 编辑

一楼原始图
IMG_6539(20220811-090556) - 副本.JPG
二楼原始图
IMG_6540(20220811-090623) - 副本.JPG
三楼原始图
IMG_6541(20220811-090655).JPG


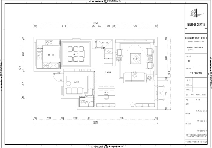
一楼平面图
IMG_6542(20220811-090714).JPG
二楼平面图
IMG_6543(20220811-090733).JPG
三楼平面图
IMG_6544(20220811-090753).JPG







回复 支持 反对

使用道具 举报

 楼主| 发表于 2022-7-27 10:28:16 | 显示全部楼层
本帖最后由 格堂小静 于 2022-7-27 10:29 编辑

拆改阶段
IMG_2600.JPG

IMG_2601.JPG

IMG_2597.JPG




回复 支持 反对

使用道具 举报

 楼主| 发表于 2022-7-27 10:29:14 | 显示全部楼层


IMG_2605.JPG

IMG_2599.JPG
回复 支持 反对

使用道具 举报

 楼主| 发表于 2022-7-27 10:29:58 | 显示全部楼层


IMG_2602.JPG

IMG_2603.JPG

IMG_2604.JPG
回复 支持 反对

使用道具 举报

 楼主| 发表于 2022-7-27 10:31:04 | 显示全部楼层

二楼房间拆改中
IMG_2595.JPG

IMG_2596.JPG
回复 支持 反对

使用道具 举报

 楼主| 发表于 2022-7-27 10:32:01 | 显示全部楼层

三楼房间拆除中
IMG_2607.JPG

IMG_2606.JPG
回复 支持 反对

使用道具 举报

 楼主| 发表于 2022-7-27 10:33:38 | 显示全部楼层


IMG_2608.JPG

IMG_3345.JPG
回复 支持 反对

使用道具 举报

 楼主| 发表于 2022-7-27 10:35:35 | 显示全部楼层

结构拆改可以让空间利用更合理,敲墙垃圾都会及时清理出去,保持现场卫生整洁,同时方便施工。为了整体结构的稳定性和安全性,承重墙是一定不能动的。

IMG_3348.JPG

IMG_3349.JPG

IMG_3350.JPG

IMG_3351.JPG
回复 支持 反对

使用道具 举报

 楼主| 发表于 2022-7-27 10:36:07 | 显示全部楼层

阳台拆改
IMG_3346.JPG

IMG_3352.JPG
回复 支持 反对

使用道具 举报

您需要登录后才可以回帖 登录 | 立即注册

本版积分规则

全国统一客服电话
0570-8028505

24x7小时免费咨询

  • 官方在线客服

    QQ客服:小西

    点击交谈

    QQ客服:良子

    点击交谈

    QQ客服:闵月

    点击交谈
  • 衢州市柯城区财富中心3号楼2楼

  • 衢州格堂装饰有限公司

  • 扫一扫关注官方微信

    获取一手特惠信息

快速回复 返回顶部 返回列表