• 手机版

    扫码体验手机版

  • 微信公众号

    扫码关注公众号

登录注册
游客您好
第三方账号登陆

[开化] 白渡自建房318㎡中式---- 渡

[复制链接]
发表于 2022-7-26 11:23:53 | 显示全部楼层 |阅读模式
白渡自建房318㎡中式---- 渡

格堂装饰为您全程记录装修全过程!

小区名称
白渡自建房
房屋面积
318㎡
户型结构
9房4卫3厅1厨2阳台
装修风格
中式
装修方式
半包
装修造价
查看请联系客服万元
设计师
余工
项目经理
毛工
装修公司
格堂装饰
完工实景
完工实景
水电全景
水电全景
VR全景
VR全景
设计说明
好用是基础,好看是结果
更多信息
回复

使用道具 举报

 楼主| 发表于 2022-7-28 08:38:34 | 显示全部楼层

原始结构图
1.jpg

3.jpg

5.jpg
回复 支持 反对

使用道具 举报

 楼主| 发表于 2022-7-28 08:38:58 | 显示全部楼层

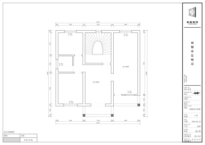
平面布置图
2.jpg

4.jpg

6.jpg
回复 支持 反对

使用道具 举报

 楼主| 发表于 2022-7-28 08:45:58 | 显示全部楼层

水电放样
IMG_1179.jpeg

IMG_1180.JPG

IMG_1181.jpeg

IMG_1182.JPG

IMG_1183.JPG
回复 支持 反对

使用道具 举报

 楼主| 发表于 2022-7-28 08:47:56 | 显示全部楼层

水电放样
IMG_1173.jpeg

IMG_1174.JPG

IMG_1175.JPG

IMG_1177.JPG

IMG_1178.jpeg
回复 支持 反对

使用道具 举报

 楼主| 发表于 2022-7-28 08:48:24 | 显示全部楼层

厨房水电放样阶段
IMG_1168.JPG

IMG_1169.JPG

IMG_1170.jpeg

IMG_1171.jpeg

IMG_1172.jpeg
回复 支持 反对

使用道具 举报

 楼主| 发表于 2022-7-28 08:52:36 | 显示全部楼层

厨房对角水电放样阶段
IMG_1163.JPG

IMG_1164.jpeg

IMG_1165.jpeg

IMG_1166.JPG

IMG_1167.jpeg
回复 支持 反对

使用道具 举报

 楼主| 发表于 2022-7-28 08:53:19 | 显示全部楼层

餐厅水电放样阶段
IMG_1158.JPG

IMG_1159.JPG

IMG_1160.JPG

IMG_1161.JPG

IMG_1162.JPG
回复 支持 反对

使用道具 举报

 楼主| 发表于 2022-7-28 08:53:40 | 显示全部楼层

餐厅对角水电放样阶段
IMG_1153.JPG

IMG_1154.JPG

IMG_1155.JPG

IMG_1156.JPG

IMG_1157.JPG
回复 支持 反对

使用道具 举报

 楼主| 发表于 2022-7-28 08:55:58 | 显示全部楼层

储藏室水电放样阶段
IMG_1148.JPG

IMG_1149.JPG

IMG_1150.JPG

IMG_1151.JPG

IMG_1152.JPG
回复 支持 反对

使用道具 举报

您需要登录后才可以回帖 登录 | 立即注册

本版积分规则

全国统一客服电话
0570-8028505

24x7小时免费咨询

  • 官方在线客服

    QQ客服:小西

    点击交谈

    QQ客服:良子

    点击交谈

    QQ客服:闵月

    点击交谈
  • 衢州市柯城区财富中心3号楼2楼

  • 衢州格堂装饰有限公司

  • 扫一扫关注官方微信

    获取一手特惠信息

快速回复 返回顶部 返回列表