• 手机版

    扫码体验手机版

  • 微信公众号

    扫码关注公众号

登录注册
游客您好
第三方账号登陆

[开化] 龙源小区13-4#115㎡现代---- 巢

[复制链接]
发表于 2022-7-26 11:14:31 | 显示全部楼层 |阅读模式
龙源小区13-4#115㎡现代---- 巢

格堂装饰为您全程记录装修全过程!

小区名称
龙源小区
房屋面积
115㎡
户型结构
3房2厅1厨2卫1阳台
装修风格
现代
装修方式
半包
装修造价
查看请联系客服万元
设计师
余工
项目经理
高工
装修公司
格堂装饰
完工实景
完工实景
水电全景
水电全景
VR全景
VR全景
设计说明
好用是基础,好看是结果
更多信息
本帖最后由 格堂小韩 于 2022-7-26 11:24 编辑

效果图
1.jpg

2.jpg
回复

使用道具 举报

 楼主| 发表于 2022-7-26 11:14:55 | 显示全部楼层
本帖最后由 格堂小韩 于 2022-10-22 09:45 编辑

回复 支持 反对

使用道具 举报

 楼主| 发表于 2022-7-28 16:23:59 | 显示全部楼层

原始结构图
原始平面图 (2)_副本.jpg
回复 支持 反对

使用道具 举报

 楼主| 发表于 2022-7-28 16:24:25 | 显示全部楼层

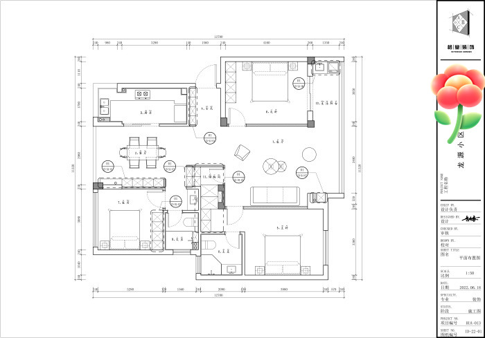
平面布置图
平面布置图 (2)_副本.jpg
回复 支持 反对

使用道具 举报

 楼主| 发表于 2022-7-28 16:24:58 | 显示全部楼层

大门保护
IMG_8551.JPG

IMG_8552.JPG
回复 支持 反对

使用道具 举报

 楼主| 发表于 2022-7-28 16:25:22 | 显示全部楼层

开工前准备
IMG_8553.JPG

IMG_8554.JPG

IMG_8555.JPG

IMG_8556.JPG
回复 支持 反对

使用道具 举报

 楼主| 发表于 2022-7-28 16:31:23 | 显示全部楼层

吉时到,我们开工啦
IMG_8661.JPG

IMG_8659.JPG
回复 支持 反对

使用道具 举报

 楼主| 发表于 2022-7-28 16:32:10 | 显示全部楼层

装修开工第一锤应该敲在要拆除的墙体的墙角(即拐角)上,象征一锤定音的意思,也是新房动土的一种表示方式
IMG_8660.JPG

IMG_8650.JPG
回复 支持 反对

使用道具 举报

 楼主| 发表于 2022-7-28 16:33:35 | 显示全部楼层

主卧原始结构
IMG_8557.JPG

IMG_8558.JPG

IMG_8559.JPG

IMG_8560.JPG

IMG_8561.JPG
回复 支持 反对

使用道具 举报

 楼主| 发表于 2022-7-28 16:34:59 | 显示全部楼层

主卧对角原始结构
IMG_8562.JPG

IMG_8563.JPG

IMG_8564.JPG

IMG_8565.JPG

IMG_8566.JPG
回复 支持 反对

使用道具 举报

您需要登录后才可以回帖 登录 | 立即注册

本版积分规则

全国统一客服电话
0570-8028505

24x7小时免费咨询

  • 官方在线客服

    QQ客服:小西

    点击交谈

    QQ客服:良子

    点击交谈

    QQ客服:闵月

    点击交谈
  • 衢州市柯城区财富中心3号楼2楼

  • 衢州格堂装饰有限公司

  • 扫一扫关注官方微信

    获取一手特惠信息

快速回复 返回顶部 返回列表