• 手机版

    扫码体验手机版

  • 微信公众号

    扫码关注公众号

登录注册
游客您好
第三方账号登陆

[衢州] 金誉府12-2-40#98㎡现代——煦暖半溪

[复制链接]
发表于 2022-7-25 16:22:11 | 显示全部楼层 |阅读模式
金誉府12-2-40#98㎡现代——煦暖半溪

格堂装饰为您全程记录装修全过程!

小区名称
金誉府
房屋面积
98㎡
户型结构
套房
装修风格
现代
装修方式
半包
装修造价
查看请联系客服万元
设计师
王工
项目经理
施工
装修公司
格堂装饰
完工实景
完工实景
水电全景
水电全景
VR全景
VR全景
设计说明
日复一日的在忙碌节奏中穿梭前行,人们更需要在简洁的环境中倾听纯净的声音。它来自一张舒适的沙发、一面干净的墙壁、以及孩子沉沉睡着的呼吸。
更多信息
效果图
6529410ec46556875171aa0286da814.jpg

b72ebed779ea30ed8ec71b53d159784.jpg
回复

使用道具 举报

 楼主| 发表于 2022-7-25 16:22:44 | 显示全部楼层
原始结构图
ecf24539b1dcbf8ae08df505f7ee9a7.jpg
回复 支持 反对

使用道具 举报

 楼主| 发表于 2022-7-25 16:23:16 | 显示全部楼层
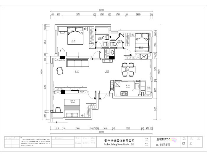
平面布置图
b050a05e4b10a78a2880352c93a2ca5.jpg
回复 支持 反对

使用道具 举报

 楼主| 发表于 2022-7-25 16:24:09 | 显示全部楼层
回复 支持 反对

使用道具 举报

 楼主| 发表于 2022-7-25 16:24:55 | 显示全部楼层
电梯口保护到位
IMG_20220724_110234.jpg

IMG_20220724_110236.jpg

IMG_20220724_110239.jpg

IMG_20220724_110237.jpg

IMG_20220724_110241.jpg
回复 支持 反对

使用道具 举报

 楼主| 发表于 2022-7-25 16:26:02 | 显示全部楼层
本帖最后由 格堂陈辰 于 2022-7-25 16:31 编辑

电梯口对角
IMG_20220724_110249.jpg

IMG_20220724_110251.jpg

IMG_20220724_110256.jpg

IMG_20220724_110252.jpg

IMG_20220724_110254.jpg
回复 支持 反对

使用道具 举报

 楼主| 发表于 2022-7-25 16:32:23 | 显示全部楼层

门槛保护到位
IMG_20220724_085451.jpg
回复 支持 反对

使用道具 举报

 楼主| 发表于 2022-7-25 16:32:58 | 显示全部楼层
大门保护到位
IMG_20220724_091428.jpg
回复 支持 反对

使用道具 举报

 楼主| 发表于 2022-7-25 16:34:13 | 显示全部楼层
临时马桶:每一个施工现场都会配备临时小便斗,并且时刻保持干净卫生、保证工地环境干净、整洁
IMG_20220724_085441.jpg
回复 支持 反对

使用道具 举报

 楼主| 发表于 2022-7-25 16:34:47 | 显示全部楼层
开工前下水管用格堂专用保护盖保护,防止砂石堵塞管道。
IMG_20220724_085418.jpg

IMG_20220724_085420.jpg

IMG_20220724_085426.jpg
回复 支持 反对

使用道具 举报

您需要登录后才可以回帖 登录 | 立即注册

本版积分规则

全国统一客服电话
0570-8028505

24x7小时免费咨询

  • 官方在线客服

    QQ客服:小西

    点击交谈

    QQ客服:良子

    点击交谈

    QQ客服:闵月

    点击交谈
  • 衢州市柯城区财富中心3号楼2楼

  • 衢州格堂装饰有限公司

  • 扫一扫关注官方微信

    获取一手特惠信息

快速回复 返回顶部 返回列表