• 手机版

    扫码体验手机版

  • 微信公众号

    扫码关注公众号

登录注册
游客您好
第三方账号登陆

[衢州] 衢州公馆12-2-2#123㎡ 现代——《简而不减》

[复制链接]
发表于 2022-7-24 15:04:58 | 显示全部楼层 |阅读模式
现代——《简而不减》

格堂装饰为您全程记录装修全过程!

小区名称
衢州公馆
房屋面积
123㎡
户型结构
套房
装修风格
现代
装修方式
半包
装修造价
查看请联系客服万元
设计师
江工
项目经理
郑工
装修公司
格堂装饰
完工实景
完工实景
水电全景
水电全景
VR全景
VR全景
设计说明
《简而不减》设计理念:真个空间没有过多纷乱的色彩,以白灰为基调、利落的线条下,现代极简风孕育出最纯粹、最干净、最惬意的生活方式。
更多信息
本帖最后由 格堂水菊 于 2022-8-8 13:46 编辑

效果图。
mmexport1658642785559.jpg

mmexport1658642787252.jpg

mmexport1658642780710.jpg

mmexport1658642782341.jpg

mmexport1658642783964.jpg
回复

使用道具 举报

 楼主| 发表于 2022-7-24 15:05:15 | 显示全部楼层
本帖最后由 格堂水菊 于 2022-8-8 15:51 编辑

开工
拆改放样
拆改阶段
水电放样
回复 支持 反对

使用道具 举报

 楼主| 发表于 2022-7-24 15:07:45 | 显示全部楼层

原始结构图。
mmexport1658642774797.png
回复 支持 反对

使用道具 举报

 楼主| 发表于 2022-7-24 15:08:10 | 显示全部楼层

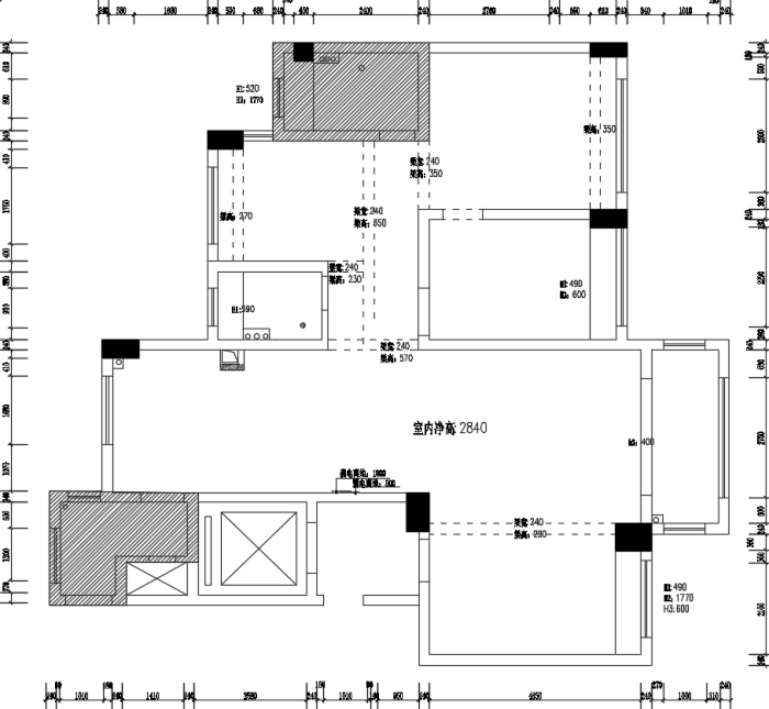
平面布置图
mmexport1658642773051.png
回复 支持 反对

使用道具 举报

 楼主| 发表于 2022-7-24 15:09:19 | 显示全部楼层

开工锤。
IMG_20220722_075029.jpg
回复 支持 反对

使用道具 举报

 楼主| 发表于 2022-7-24 15:10:03 | 显示全部楼层

礼花。
IMG_20220722_075025.jpg
回复 支持 反对

使用道具 举报

 楼主| 发表于 2022-7-24 15:10:26 | 显示全部楼层

鲜花。
IMG_20220722_081203.jpg
回复 支持 反对

使用道具 举报

 楼主| 发表于 2022-7-24 15:11:01 | 显示全部楼层

一切准备就绪,就等吉时。
IMG_20220722_081224.jpg
回复 支持 反对

使用道具 举报

 楼主| 发表于 2022-7-24 15:12:03 | 显示全部楼层

开工吉时到,礼花放起来,恭祝业主开工大吉,大吉大利!!!
IMG_20220722_081814_1.jpg
回复 支持 反对

使用道具 举报

 楼主| 发表于 2022-7-24 15:12:37 | 显示全部楼层

装修开工第一锤应该由业主敲在要拆除的墙体的墙角(即拐角)上,象征一锤定音的意思,也是新房动土的一种表示方式。
IMG_20220722_081838.jpg

IMG_20220722_081855.jpg
回复 支持 反对

使用道具 举报

您需要登录后才可以回帖 登录 | 立即注册

本版积分规则

全国统一客服电话
0570-8028505

24x7小时免费咨询

  • 官方在线客服

    QQ客服:小西

    点击交谈

    QQ客服:良子

    点击交谈

    QQ客服:闵月

    点击交谈
  • 衢州市柯城区财富中心3号楼2楼

  • 衢州格堂装饰有限公司

  • 扫一扫关注官方微信

    获取一手特惠信息

快速回复 返回顶部 返回列表