• 手机版

    扫码体验手机版

  • 微信公众号

    扫码关注公众号

登录注册
游客您好
第三方账号登陆

[龙游] 广信大厦斯诺克106㎡后现代

[复制链接]
发表于 2022-7-21 14:29:17 | 显示全部楼层 |阅读模式
斯诺克俱乐部

格堂装饰为您全程记录装修全过程!

小区名称
广信大厦
房屋面积
106㎡
户型结构
平层
装修风格
后现代
装修方式
半包
装修造价
查看请联系客服万元
设计师
徐工
项目经理
杨工
装修公司
格堂装饰
完工实景
完工实景
水电全景
水电全景
VR全景
VR全景
设计说明
最新案例
斯诺克俱乐部
更多信息
回复

使用道具 举报

 楼主| 发表于 2022-7-21 14:29:54 | 显示全部楼层
本帖最后由 格堂小静 于 2022-7-21 15:00 编辑

原始结构图
IMG_2543(20220721-133356).JPG
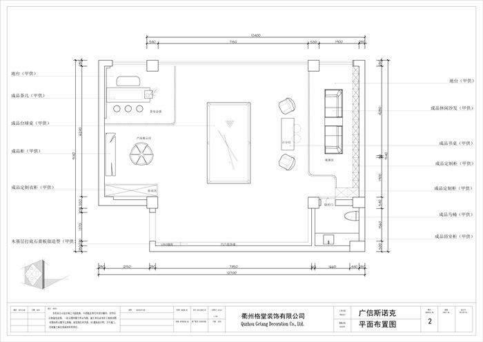
平面布置图
IMG_2544(20220721-133359).JPG






回复 支持 反对

使用道具 举报

 楼主| 发表于 2022-7-21 14:30:25 | 显示全部楼层
本帖最后由 格堂小静 于 2022-7-21 15:01 编辑

开工大吉
IMG_2405.JPG

IMG_2407.JPG

IMG_2408.JPG


回复 支持 反对

使用道具 举报

 楼主| 发表于 2022-7-21 14:30:42 | 显示全部楼层
本帖最后由 格堂小静 于 2022-7-21 15:02 编辑

IMG_2406.JPG

IMG_2409.JPG

IMG_2410.JPG
回复 支持 反对

使用道具 举报

 楼主| 发表于 2022-7-21 14:36:19 | 显示全部楼层


IMG_2411.JPG

IMG_2412.JPG
回复 支持 反对

使用道具 举报

 楼主| 发表于 2022-7-21 14:37:12 | 显示全部楼层
本帖最后由 格堂小静 于 2022-7-21 14:38 编辑

仪式准备
IMG_2414.JPG

IMG_2413.JPG
回复 支持 反对

使用道具 举报

 楼主| 发表于 2022-7-21 14:41:16 | 显示全部楼层

进户地面保护防止磕损
IMG_2404.JPG
回复 支持 反对

使用道具 举报

 楼主| 发表于 2022-7-21 14:43:12 | 显示全部楼层

设计师现场和师傅对接敲墙放样
IMG_2433.JPG

IMG_2419.JPG
回复 支持 反对

使用道具 举报

 楼主| 发表于 2022-7-21 14:43:32 | 显示全部楼层


IMG_2421.JPG

IMG_2420.JPG
回复 支持 反对

使用道具 举报

 楼主| 发表于 2022-7-21 14:43:51 | 显示全部楼层


IMG_2423.JPG

IMG_2431.JPG
回复 支持 反对

使用道具 举报

您需要登录后才可以回帖 登录 | 立即注册

本版积分规则

全国统一客服电话
0570-8028505

24x7小时免费咨询

  • 官方在线客服

    QQ客服:小西

    点击交谈

    QQ客服:良子

    点击交谈

    QQ客服:闵月

    点击交谈
  • 衢州市柯城区财富中心3号楼2楼

  • 衢州格堂装饰有限公司

  • 扫一扫关注官方微信

    获取一手特惠信息

快速回复 返回顶部 返回列表