• 手机版

    扫码体验手机版

  • 微信公众号

    扫码关注公众号

登录注册
游客您好
第三方账号登陆

衢州公馆10-12#115㎡ 现代——歌

[复制链接]
发表于 2022-7-19 09:31:51 | 显示全部楼层 |阅读模式
衢州公馆10-12#115㎡ 现代——歌

格堂装饰实景完工案例欣赏!

小区名称
衢州公馆
房屋面积
115㎡
户型结构
套房
装修风格
现代
装修方式
半包
装修造价
查看请联系客服万元
设计师
王工
项目经理
彭工
装修公司
格堂装饰
装修过程
装修日记
设计说明
“阳光,树影,自然,白色的层次,恣意满溢”,进入整个空间,设计的美学让人自然而然想到了浮士德一般戏剧的登场,就像抒情歌剧的扛鼎之作,此次璞辉运用对于美学的哲学理解,打造现代的室内空间,让层次与艺术营造安静之处,塑造一座可观赏、可穿越的巨型雕塑。
更多信息
7E1A6812.jpg


回复

使用道具 举报

 楼主| 发表于 2022-7-19 09:32:34 | 显示全部楼层
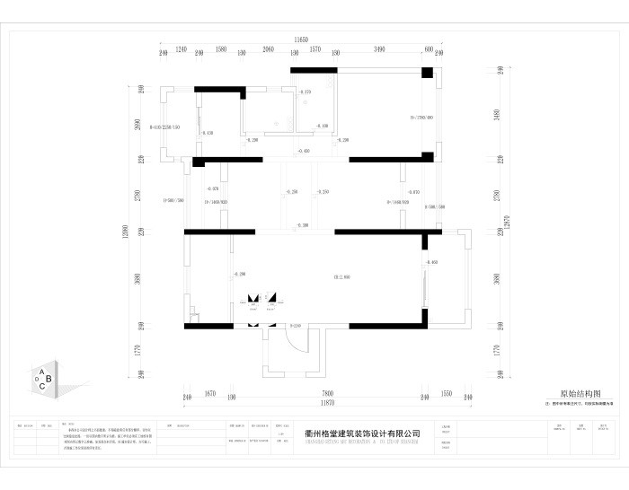
原始构图▼▼▼

163428r44umxzt4yl065au.jpg

平面布置图▼▼▼

163545s6eqehequssl6l5y.jpg


回复 支持 反对

使用道具 举报

 楼主| 发表于 2022-7-19 09:33:29 | 显示全部楼层
客厅▼▼▼



7E1A6805.jpg


7E1A6806.jpg


7E1A6808.jpg


7E1A6809.jpg


7E1A6811.jpg




回复 支持 反对

使用道具 举报

 楼主| 发表于 2022-7-19 09:34:11 | 显示全部楼层
餐厅▼▼▼



7E1A6812.jpg


7E1A6813.jpg


7E1A6814.jpg


7E1A6815.jpg


7E1A6817.jpg



7E1A6819.jpg



7E1A6818.jpg




回复 支持 反对

使用道具 举报

 楼主| 发表于 2022-7-19 09:34:31 | 显示全部楼层
厨房▼▼▼



7E1A6820.jpg


7E1A6822.jpg




回复 支持 反对

使用道具 举报

 楼主| 发表于 2022-7-19 09:35:17 | 显示全部楼层
书房▼▼▼



7E1A6823.jpg


7E1A6824.jpg


7E1A6825.jpg




回复 支持 反对

使用道具 举报

 楼主| 发表于 2022-7-19 09:35:43 | 显示全部楼层
主卧▼▼▼



7E1A6826.jpg


7E1A6828.jpg




回复 支持 反对

使用道具 举报

 楼主| 发表于 2022-7-19 09:36:02 | 显示全部楼层
小孩房▼▼▼



7E1A6836.jpg




回复 支持 反对

使用道具 举报

 楼主| 发表于 2022-7-19 09:36:18 | 显示全部楼层
次卧▼▼▼



7E1A6833.jpg


回复 支持 反对

使用道具 举报

 楼主| 发表于 2022-7-19 09:36:43 | 显示全部楼层
主卫 ▼▼▼



7E1A6829.jpg


7E1A6830.jpg




回复 支持 反对

使用道具 举报

您需要登录后才可以回帖 登录 | 立即注册

本版积分规则

全国统一客服电话
0570-8028505

24x7小时免费咨询

  • 官方在线客服

    QQ客服:小西

    点击交谈

    QQ客服:良子

    点击交谈

    QQ客服:闵月

    点击交谈
  • 衢州市柯城区财富中心3号楼2楼

  • 衢州格堂装饰有限公司

  • 扫一扫关注官方微信

    获取一手特惠信息

快速回复 返回顶部 返回列表