恒晟名苑71-2-4#100㎡现代——艺术若是最美的花朵,生活就是开花的树 |
|
恒晟名苑71-2-4#100㎡现代——艺术若是最美的花朵,生活就是开花的树
格堂装饰实景完工案例欣赏!
设计说明
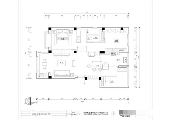
本案改变了原有户型的局限性,空间的划分将原有的三室两厅融为一体。
餐厅与厨房位于同一空间,扩大延伸厨房的长度将餐厅包合其中,设计别出心裁。 大理石纹理的餐桌,让其用餐的同时兼具观赏性,既美观又实用。 在现代风格的基础之上,呈现一个功能性的互动型空间。客厅处,利用深色的皮质沙发搭配同色系毛绒地毯,奠定空间整体的沉稳高级基调。 木质和石材的合理运用让空间的色调和谐统一。 主卧依旧是延续深色木质配色,将简约的手法与高级的色调融合。 开放式的干区利落的线条,展现出现代风格下的几何美感。 更多信息
| |


在线客服
微信客服
关注有礼