• 手机版

    扫码体验手机版

  • 微信公众号

    扫码关注公众号

登录注册
游客您好
第三方账号登陆

[衢州] 衢州公馆20-1-80#143㎡ 现代奶油风——格调生活

[复制链接]
发表于 2022-7-17 14:44:45 | 显示全部楼层 |阅读模式
衢州公馆20-1-80#143㎡ 现代奶油风——格调生活

格堂装饰为您全程记录装修全过程!

小区名称
衢州公馆
房屋面积
143㎡
户型结构
套房
装修风格
奶油风
装修方式
半包
装修造价
查看请联系客服万元
设计师
万工
项目经理
周工
装修公司
格堂装饰
完工实景
完工实景
水电全景
水电全景
VR全景
VR全景
设计说明
大面积的留白设计,局部点缀一抹绿让整个空间充满生机,以现代极简主义的设计理念,让整个空间精致且富有细节感。以简单而不失质感的空间设计,给人带来一种静谧舒适的视觉享受。
更多信息
效果图
62c871b24d289e2424357c28cd3e470.jpg

c85ce66fe2741a83d3fc5f24002955f.jpg

fdd6412ab47bc5b04527026341672d2.jpg
回复

使用道具 举报

 楼主| 发表于 2022-7-17 14:48:59 | 显示全部楼层
原始结构图
1.png
回复 支持 反对

使用道具 举报

 楼主| 发表于 2022-7-17 14:49:35 | 显示全部楼层
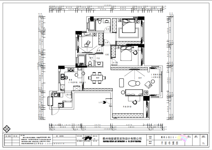
平面布置图

QQ截图20220717142342.png
回复 支持 反对

使用道具 举报

 楼主| 发表于 2022-7-17 14:49:54 | 显示全部楼层
本帖最后由 格堂陈辰 于 2022-11-12 13:14 编辑

目      录


回复 支持 反对

使用道具 举报

 楼主| 发表于 2022-7-17 14:50:23 | 显示全部楼层
本帖最后由 格堂陈辰 于 2022-7-19 17:10 编辑

大门地梯口保护到位防止后期磕碰
IMG_20220719_112113.jpg

IMG_20220719_112115.jpg

IMG_20220719_112123.jpg

IMG_20220719_112118.jpg

IMG_20220719_112121.jpg
回复 支持 反对

使用道具 举报

 楼主| 发表于 2022-7-17 14:50:39 | 显示全部楼层
本帖最后由 格堂陈辰 于 2022-7-19 17:10 编辑

大门地梯口对角
IMG_20220719_112145.jpg
IMG_20220719_112147.jpg

IMG_20220719_112153.jpg

IMG_20220719_112149.jpg

IMG_20220719_112150.jpg
回复 支持 反对

使用道具 举报

 楼主| 发表于 2022-7-17 14:51:21 | 显示全部楼层

大门保护
IMG_20220716_094533.jpg
回复 支持 反对

使用道具 举报

 楼主| 发表于 2022-7-17 14:52:06 | 显示全部楼层
门槛保护到位
回复 支持 反对

使用道具 举报

 楼主| 发表于 2022-7-17 14:52:52 | 显示全部楼层
燃气表保护到位。
IMG_20220716_093629.jpg
回复 支持 反对

使用道具 举报

 楼主| 发表于 2022-7-17 14:53:43 | 显示全部楼层
卫生间简易马桶安装到位。

回复 支持 反对

使用道具 举报

您需要登录后才可以回帖 登录 | 立即注册

本版积分规则

全国统一客服电话
0570-8028505

24x7小时免费咨询

  • 官方在线客服

    QQ客服:小西

    点击交谈

    QQ客服:良子

    点击交谈

    QQ客服:闵月

    点击交谈
  • 衢州市柯城区财富中心3号楼2楼

  • 衢州格堂装饰有限公司

  • 扫一扫关注官方微信

    获取一手特惠信息

快速回复 返回顶部 返回列表