• 手机版

    扫码体验手机版

  • 微信公众号

    扫码关注公众号

登录注册
游客您好
第三方账号登陆

[开化] 城东马园5号343㎡中式----画

[复制链接]
发表于 2022-7-16 09:31:27 | 显示全部楼层 |阅读模式
城东马园5号343㎡中式----画

格堂装饰为您全程记录装修全过程!

小区名称
城东马园5号
房屋面积
343㎡
户型结构
7房4厅5卫1厨1阳台
装修风格
中式
装修方式
半包
装修造价
查看请联系客服万元
设计师
余工
项目经理
高工
装修公司
格堂装饰
完工实景
完工实景
水电全景
水电全景
VR全景
VR全景
设计说明
好用是基础,好看是结果
更多信息
本帖最后由 格堂小韩 于 2022-10-22 11:31 编辑


回复

使用道具 举报

 楼主| 发表于 2022-7-16 09:37:51 | 显示全部楼层

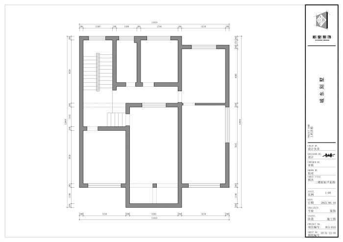
原始结构图
1L原始平面图.jpg

2L原始平面图.jpg

3L原始平面图.jpg
回复 支持 反对

使用道具 举报

 楼主| 发表于 2022-7-16 09:38:12 | 显示全部楼层

平面布置图
1L平面布置图.jpg

2L平面布置图.jpg

3L平面布置图.jpg
回复 支持 反对

使用道具 举报

 楼主| 发表于 2022-7-16 09:39:06 | 显示全部楼层

大门口保护
IMG_9211.JPG

IMG_9212.JPG

IMG_9213.JPG
回复 支持 反对

使用道具 举报

 楼主| 发表于 2022-7-16 09:40:24 | 显示全部楼层

开工前准备
IMG_9214.JPG

IMG_9215.JPG

IMG_9216.JPG

IMG_9217.JPG
回复 支持 反对

使用道具 举报

 楼主| 发表于 2022-7-16 09:41:21 | 显示全部楼层

吉时到,我们开工啦
IMG_9250.JPG

IMG_9252.JPG
回复 支持 反对

使用道具 举报

 楼主| 发表于 2022-7-16 09:41:59 | 显示全部楼层

装修开工第一锤应该敲在要拆除的墙体的墙角(即拐角)上,象征一锤定音的意思,也是新房动土的一种表示方式
IMG_9251.JPG

IMG_9235.JPG
回复 支持 反对

使用道具 举报

 楼主| 发表于 2022-7-16 09:42:52 | 显示全部楼层

拆除放样
IMG_9241.JPG

IMG_9242.JPG

IMG_9243.JPG

IMG_9244.JPG

IMG_9245.JPG
回复 支持 反对

使用道具 举报

 楼主| 发表于 2022-7-16 09:44:41 | 显示全部楼层

拆墙放样
IMG_9246.JPG

IMG_9247.JPG

IMG_9248.JPG

IMG_9249.JPG
回复 支持 反对

使用道具 举报

 楼主| 发表于 2022-7-16 09:45:06 | 显示全部楼层

拆墙放样
IMG_9253.JPG

IMG_9254.JPG

IMG_9255.JPG

IMG_9256.JPG

IMG_9257.JPG
回复 支持 反对

使用道具 举报

您需要登录后才可以回帖 登录 | 立即注册

本版积分规则

全国统一客服电话
0570-8028505

24x7小时免费咨询

  • 官方在线客服

    QQ客服:小西

    点击交谈

    QQ客服:良子

    点击交谈

    QQ客服:闵月

    点击交谈
  • 衢州市柯城区财富中心3号楼2楼

  • 衢州格堂装饰有限公司

  • 扫一扫关注官方微信

    获取一手特惠信息

快速回复 返回顶部 返回列表