• 手机版

    扫码体验手机版

  • 微信公众号

    扫码关注公众号

登录注册
游客您好
第三方账号登陆

[衢州] 中梁首府8-3-7#121㎡现代——简约

[复制链接]
发表于 2022-7-7 16:27:29 | 显示全部楼层 |阅读模式
两人一猫 三餐四季

格堂装饰为您全程记录装修全过程!

小区名称
中梁首府
房屋面积
121㎡
户型结构
套房
装修风格
现代
装修方式
半包
装修造价
查看请联系客服万元
设计师
邓工
项目经理
胡工
装修公司
格堂装饰
完工实景
完工实景
水电全景
水电全景
VR全景
VR全景
设计说明
本案在硬装上以现代、简约的理念贯穿整体,拒绝复杂的装饰造型,注重细节的品质和整体的设计感,简而不减,美观与实用并存。最吸睛的地方就是沙发边上的猫洞啦。小可爱“奴比”与大邱的幸福生活以后就要在这个房子里展开,两人一猫,三餐四季想想就很美好!
更多信息

效果图
mmexport1657093539907.jpg

mmexport1657093542172.jpg

mmexport1657093544326.jpg
回复

使用道具 举报

 楼主| 发表于 2022-7-7 16:27:52 | 显示全部楼层
回复 支持 反对

使用道具 举报

 楼主| 发表于 2022-7-7 16:28:53 | 显示全部楼层
本帖最后由 格堂水菊 于 2022-7-7 16:33 编辑

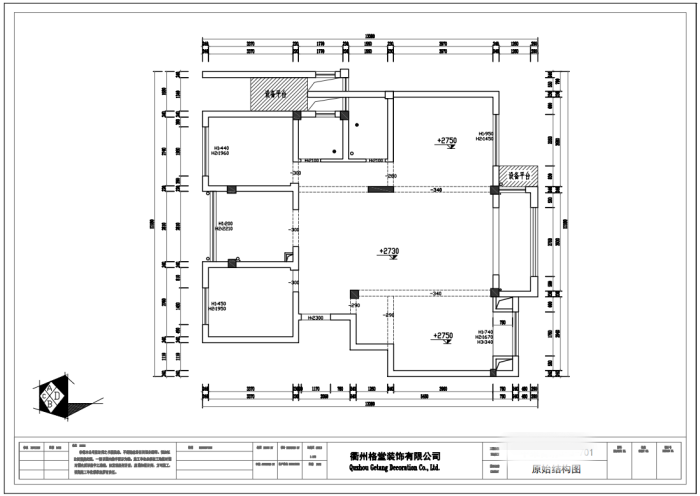
原始结构图。
mmexport1657093558694.png
回复 支持 反对

使用道具 举报

 楼主| 发表于 2022-7-7 16:29:29 | 显示全部楼层
本帖最后由 格堂水菊 于 2022-7-7 16:34 编辑

平面布置图。
mmexport1657093556149.png
回复 支持 反对

使用道具 举报

 楼主| 发表于 2022-7-7 16:33:23 | 显示全部楼层

大门保护、电梯保护、地面保护,防止后期磕碰到。
IMG_20220706_085933.jpg

IMG_20220706_082211.jpg

IMG_20220706_082050.jpg

IMG_20220706_082113.jpg

IMG_20220706_082145.jpg
回复 支持 反对

使用道具 举报

 楼主| 发表于 2022-7-7 16:34:59 | 显示全部楼层

大门保护、电梯保护、地面保护,防止后期磕碰到。
IMG_20220706_082136.jpg

IMG_20220706_082138.jpg

IMG_20220706_082148.jpg

IMG_20220706_082150.jpg
回复 支持 反对

使用道具 举报

 楼主| 发表于 2022-7-7 16:35:51 | 显示全部楼层

下水管用格堂专用保护盖保护,防止砂石堵塞管道。
IMG_20220706_085906.jpg

IMG_20220706_085917.jpg

IMG_20220706_085919.jpg
回复 支持 反对

使用道具 举报

 楼主| 发表于 2022-7-7 16:36:18 | 显示全部楼层

煤气表保护,防止后期磕碰。
IMG_20220706_085908.jpg
回复 支持 反对

使用道具 举报

 楼主| 发表于 2022-7-7 16:36:50 | 显示全部楼层

下水管用格堂专用保护盖保护,防止砂石堵塞管道。
IMG_20220706_084607.jpg
回复 支持 反对

使用道具 举报

 楼主| 发表于 2022-7-7 16:37:39 | 显示全部楼层

项目经理在做开工前准备。
IMG_20220706_085108.jpg

IMG_20220706_085126.jpg
回复 支持 反对

使用道具 举报

您需要登录后才可以回帖 登录 | 立即注册

本版积分规则

全国统一客服电话
0570-8028505

24x7小时免费咨询

  • 官方在线客服

    QQ客服:小西

    点击交谈

    QQ客服:良子

    点击交谈

    QQ客服:闵月

    点击交谈
  • 衢州市柯城区财富中心3号楼2楼

  • 衢州格堂装饰有限公司

  • 扫一扫关注官方微信

    获取一手特惠信息

快速回复 返回顶部 返回列表