• 手机版

    扫码体验手机版

  • 微信公众号

    扫码关注公众号

登录注册
游客您好
第三方账号登陆

[常山] 常山百悦城4-5-5#210㎡现代—拾光逐影 欣喜归家

[复制链接]
发表于 2022-6-26 16:43:22 | 显示全部楼层 |阅读模式
常山百悦城4-5-5#210㎡现代—拾光逐影 欣喜归家

格堂装饰为您全程记录装修全过程!

小区名称
百悦城
房屋面积
210㎡
户型结构
复式
装修风格
现代
装修方式
半包
装修造价
查看请联系客服万元
设计师
郑工
项目经理
施工
装修公司
格堂装饰
完工实景
完工实景
水电全景
水电全景
VR全景
VR全景
设计说明
无阻碍的宽阔格局
瞬间触动了心灵
从熠熠波动的细碎轻光中
静静感受自在
向上延伸
运用深色与浅色碰撞出利落感
再通过穿插、凹凸
镂空的设计手法
释放空间张力
促使观感变得立体稳定
更多信息
本帖最后由 格堂小丽 于 2022-6-26 16:44 编辑

效果图
a92b140e877bd92790a8e709a8fe3ab.png

2c143e33da74799754450d16e9aa1c7.png

adec964c13c1841e8a737c1db735e57.png

b2c5b569ebe68aab10b48e4e0c627d2.jpg


回复

使用道具 举报

 楼主| 发表于 2022-6-26 16:43:51 | 显示全部楼层
回复 支持 反对

使用道具 举报

 楼主| 发表于 2022-6-26 16:45:28 | 显示全部楼层
本帖最后由 格堂小丽 于 2022-6-26 17:15 编辑

一层原始结构图
6d2f2d669013dd6052f2a41cb69f8be.png
回复 支持 反对

使用道具 举报

 楼主| 发表于 2022-6-26 16:45:54 | 显示全部楼层
本帖最后由 格堂小丽 于 2022-6-26 17:15 编辑

二层原始结构图
b674616e4ab5a8ca1edda368158a661.png
回复 支持 反对

使用道具 举报

 楼主| 发表于 2022-6-26 16:46:21 | 显示全部楼层
本帖最后由 格堂小丽 于 2022-6-26 17:16 编辑

三层原始结构图
e7382981690e01189902b6fb74c78d7.png
回复 支持 反对

使用道具 举报

 楼主| 发表于 2022-6-26 16:46:56 | 显示全部楼层
本帖最后由 格堂小丽 于 2022-6-26 17:16 编辑

一层平面布置图
53ae458b4d98c708fedcbda0c0ac09b.png
回复 支持 反对

使用道具 举报

 楼主| 发表于 2022-6-26 16:47:44 | 显示全部楼层
本帖最后由 格堂小丽 于 2022-6-26 17:17 编辑

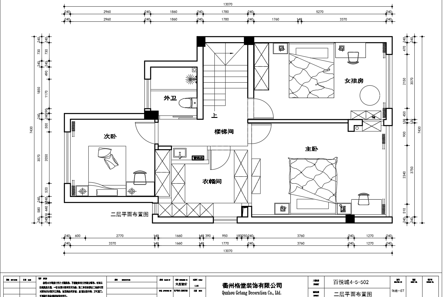
二层平面布置中
671cea7f4110b7e48ca5e076ca09488.png
回复 支持 反对

使用道具 举报

 楼主| 发表于 2022-6-26 16:49:07 | 显示全部楼层
本帖最后由 格堂小丽 于 2022-6-26 17:18 编辑

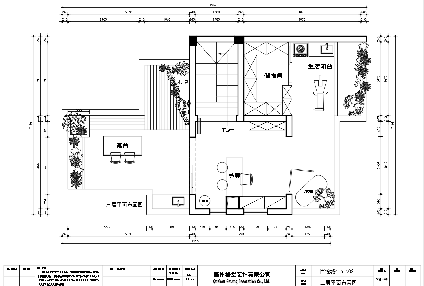
三层平面布置图
62e4fdf6d9942342897997b9adac7b7.png


回复 支持 反对

使用道具 举报

 楼主| 发表于 2022-6-26 16:50:35 | 显示全部楼层
良辰吉日,开工咯!开工仪式准备好。
067bc03fab3886fb2592c90b247a11d.jpg
回复 支持 反对

使用道具 举报

 楼主| 发表于 2022-6-26 16:51:06 | 显示全部楼层
鲜花礼炮也要一起准备好
990d4ba4103c77ca068f6006fc33451.jpg

306c30ef3ae85eb6ebb4c5d5e596a7a.jpg
回复 支持 反对

使用道具 举报

您需要登录后才可以回帖 登录 | 立即注册

本版积分规则

全国统一客服电话
0570-8028505

24x7小时免费咨询

  • 官方在线客服

    QQ客服:小西

    点击交谈

    QQ客服:良子

    点击交谈

    QQ客服:闵月

    点击交谈
  • 衢州市柯城区财富中心3号楼2楼

  • 衢州格堂装饰有限公司

  • 扫一扫关注官方微信

    获取一手特惠信息

快速回复 返回顶部 返回列表