• 手机版

    扫码体验手机版

  • 微信公众号

    扫码关注公众号

登录注册
游客您好
第三方账号登陆

[衢州] 招贤里4-1-9#88㎡现代极简——谧境

[复制链接]
发表于 2022-6-17 17:09:21 | 显示全部楼层 |阅读模式
谧境

格堂装饰为您全程记录装修全过程!

小区名称
招贤里
房屋面积
88㎡
户型结构
套房
装修风格
现代
装修方式
半包
装修造价
查看请联系客服万元
设计师
石工
项目经理
刘工
装修公司
格堂装饰
完工实景
完工实景
水电全景
水电全景
VR全景
VR全景
设计说明
每个人的生活中,都有一个蕴含着亲情的地方——家。生活的仪式感依存节日和人群,空间的仪式感则是合理规划,以需求为前提尊重每一平方米。
更多信息
本帖最后由 格堂飞飞 于 2022-7-3 11:18 编辑

效果图
IMG_7266.JPG

IMG_7267.JPG

IMG_7265.JPG
回复

使用道具 举报

 楼主| 发表于 2022-6-17 17:09:42 | 显示全部楼层
回复 支持 反对

使用道具 举报

 楼主| 发表于 2022-6-17 17:10:00 | 显示全部楼层

原始结构图
IMG_7269.JPG
回复 支持 反对

使用道具 举报

 楼主| 发表于 2022-6-17 17:10:18 | 显示全部楼层

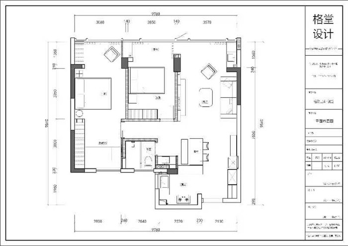
平面布置图
IMG_7268.JPG
回复 支持 反对

使用道具 举报

 楼主| 发表于 2022-6-17 17:13:12 | 显示全部楼层
本帖最后由 格堂飞飞 于 2022-6-17 17:23 编辑

电梯间墙面和地面,保护好了,防止磕碰哦!
IMG_7152.JPG

IMG_7158.JPG

IMG_7160.JPG

IMG_7159.JPG

IMG_7156.JPG
回复 支持 反对

使用道具 举报

 楼主| 发表于 2022-6-17 17:24:15 | 显示全部楼层

电梯间
IMG_7153.JPG

IMG_7157.JPG

IMG_7154.JPG
回复 支持 反对

使用道具 举报

 楼主| 发表于 2022-6-17 17:26:23 | 显示全部楼层
开工前准备工作,先要做好哦!
IMG_7161.JPG
开工前配电箱面板,先要拆除,防止磕碰破损!
IMG_7166.JPG

IMG_7167.JPG
回复 支持 反对

使用道具 举报

 楼主| 发表于 2022-6-17 17:27:57 | 显示全部楼层

大门门槛也要保护起来,防止磕碰破损哦!
IMG_7148.JPG

IMG_7147.JPG
回复 支持 反对

使用道具 举报

 楼主| 发表于 2022-6-17 17:29:26 | 显示全部楼层

临时马桶安装好了,要讲究卫生哦!
IMG_7146.JPG

回复 支持 反对

使用道具 举报

 楼主| 发表于 2022-6-17 17:30:04 | 显示全部楼层
本帖最后由 格堂飞飞 于 2022-6-17 17:31 编辑

下水管用格堂专用保护盖保护,防止砂石堵塞管道。

IMG_7145.JPG

IMG_7149.JPG

IMG_7151.JPG
回复 支持 反对

使用道具 举报

您需要登录后才可以回帖 登录 | 立即注册

本版积分规则

全国统一客服电话
0570-8028505

24x7小时免费咨询

  • 官方在线客服

    QQ客服:小西

    点击交谈

    QQ客服:良子

    点击交谈

    QQ客服:闵月

    点击交谈
  • 衢州市柯城区财富中心3号楼2楼

  • 衢州格堂装饰有限公司

  • 扫一扫关注官方微信

    获取一手特惠信息

快速回复 返回顶部 返回列表