• 手机版

    扫码体验手机版

  • 微信公众号

    扫码关注公众号

登录注册
游客您好
第三方账号登陆

[衢州] 金茂府6-1-60#126㎡现代简约——归居宁静·自有繁华

[复制链接]
发表于 2022-6-13 17:33:13 | 显示全部楼层 |阅读模式
金茂府6-1-60#126㎡现代简约——归居宁静·自有繁华

格堂装饰为您全程记录装修全过程!

小区名称
金茂府
房屋面积
126㎡
户型结构
套房
装修风格
现代
装修方式
全包
装修造价
查看请联系客服万元
设计师
梁工
项目经理
刘工
装修公司
格堂装饰
完工实景
完工实景
水电全景
水电全景
VR全景
VR全景
设计说明
“家,大千世界中独属于你的一隅,纷纷扰扰的城市中一个安静的角落。它定义了你认识宇宙的起点,保存着精神和记忆的原初。当我们想起家宅时,是宁静而不失温度的治愈居所,是晓看天色暮看云的无限惬意。”
更多信息
效果图
9b118ae65929e9b6e93a8bca0e74efe.jpg

eaebb4e4dbb5eef1ed43236e88d44f4.jpg
回复

使用道具 举报

 楼主| 发表于 2022-6-13 17:34:11 | 显示全部楼层
效果图
46ab53dd644eff8d7ab197eee21c24a.jpg

66b7bdccd6c3d631722be96b63a673d.jpg
回复 支持 反对

使用道具 举报

 楼主| 发表于 2022-6-13 17:34:39 | 显示全部楼层

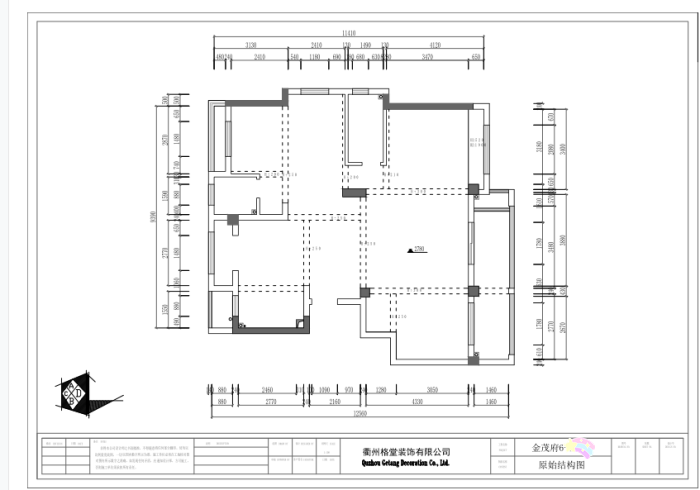
原始结构图
1655111387(1).png
回复 支持 反对

使用道具 举报

 楼主| 发表于 2022-6-13 17:35:07 | 显示全部楼层
平面布置图
1655111333(1).png
回复 支持 反对

使用道具 举报

 楼主| 发表于 2022-6-24 20:47:54 | 显示全部楼层
回复 支持 反对

使用道具 举报

 楼主| 发表于 2022-6-25 16:41:04 | 显示全部楼层
本帖最后由 格堂陈辰 于 2022-6-25 16:43 编辑

电梯口保护到位
IMG_20220609_110923.jpg

IMG_20220609_110925.jpg

IMG_20220609_110928.jpg

IMG_20220609_110927.jpg

IMG_20220609_110930.jpg
回复 支持 反对

使用道具 举报

 楼主| 发表于 2022-6-25 16:41:51 | 显示全部楼层
本帖最后由 格堂陈辰 于 2022-6-25 16:44 编辑

电梯口对角
IMG_20220609_110941.jpg

IMG_20220609_110943.jpg

IMG_20220609_110946.jpg

IMG_20220609_110945.jpg

IMG_20220609_110948.jpg
回复 支持 反对

使用道具 举报

 楼主| 发表于 2022-6-25 16:45:28 | 显示全部楼层

门槛保护
IMG_20220609_110918.jpg
回复 支持 反对

使用道具 举报

 楼主| 发表于 2022-6-25 16:46:19 | 显示全部楼层

大门保护
IMG_20220609_111001.jpg
回复 支持 反对

使用道具 举报

 楼主| 发表于 2022-6-25 16:47:14 | 显示全部楼层
煤气表已经保护到位。
IMG_20220608_080413.jpg
回复 支持 反对

使用道具 举报

您需要登录后才可以回帖 登录 | 立即注册

本版积分规则

全国统一客服电话
0570-8028505

24x7小时免费咨询

  • 官方在线客服

    QQ客服:小西

    点击交谈

    QQ客服:良子

    点击交谈

    QQ客服:闵月

    点击交谈
  • 衢州市柯城区财富中心3号楼2楼

  • 衢州格堂装饰有限公司

  • 扫一扫关注官方微信

    获取一手特惠信息

快速回复 返回顶部 返回列表