• 手机版

    扫码体验手机版

  • 微信公众号

    扫码关注公众号

登录注册
游客您好
第三方账号登陆

[衢州] 招贤里4-1-10#120㎡北欧——简单生活,有光,有风

[复制链接]
发表于 2022-6-9 17:09:41 | 显示全部楼层 |阅读模式
简单生活,有光,有风

格堂装饰为您全程记录装修全过程!

小区名称
招贤里
房屋面积
120㎡
户型结构
套房
装修风格
北欧
装修方式
半包
装修造价
查看请联系客服万元
设计师
许工
项目经理
刘工
装修公司
格堂装饰
完工实景
完工实景
水电全景
水电全景
VR全景
VR全景
设计说明
生活越接近平淡,内心越接近绚烂……内心的安宁才是真正的安宁,它更干净、更纯粹,更接近那叫灵魂的地方。“我曾经跨过山和大海,也穿过人山人海,我曾经拥有着的一切,转眼都飘散如烟,我曾经失落失望失掉所有方向,直到看见平凡才是唯一的答案。……”
更多信息

效果图
IMG_4479.JPG

IMG_4480.JPG
回复

使用道具 举报

 楼主| 发表于 2022-6-9 17:10:00 | 显示全部楼层
回复 支持 反对

使用道具 举报

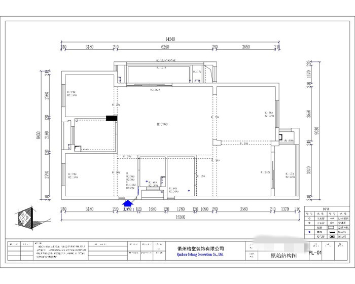
 楼主| 发表于 2022-6-9 17:10:18 | 显示全部楼层

原始结构图
IMG_4482.JPG
回复 支持 反对

使用道具 举报

 楼主| 发表于 2022-6-9 17:10:33 | 显示全部楼层

平面布置图
IMG_4481.JPG
回复 支持 反对

使用道具 举报

 楼主| 发表于 2022-6-9 17:11:54 | 显示全部楼层

开工前准备工作,先要做好哦!
IMG_20220526_085208.jpg
回复 支持 反对

使用道具 举报

 楼主| 发表于 2022-6-9 17:12:44 | 显示全部楼层

煤气表要保护起来,防止磕碰哦!
IMG_20220526_085420.jpg
回复 支持 反对

使用道具 举报

 楼主| 发表于 2022-6-9 17:13:41 | 显示全部楼层

临时马桶安装好了,方便师傅使用,要讲究卫生哦!
IMG_20220526_085529.jpg
回复 支持 反对

使用道具 举报

 楼主| 发表于 2022-6-9 17:14:31 | 显示全部楼层

下水管用格堂专用保护盖保护,防止砂石堵塞管道。

IMG_20220526_085434.jpg

IMG_20220526_090310.jpg
回复 支持 反对

使用道具 举报

 楼主| 发表于 2022-6-9 17:15:35 | 显示全部楼层

开工前配电箱,面板先要拆除,防止磕碰破损!
IMG_20220526_085830.jpg
回复 支持 反对

使用道具 举报

 楼主| 发表于 2022-6-9 17:17:09 | 显示全部楼层

准备就绪,就等开工吉时啦!
IMG_20220526_091506_1.jpg

IMG_20220526_085550.jpg

IMG_20220526_090404.jpg

IMG_20220526_085231.jpg
回复 支持 反对

使用道具 举报

您需要登录后才可以回帖 登录 | 立即注册

本版积分规则

全国统一客服电话
0570-8028505

24x7小时免费咨询

  • 官方在线客服

    QQ客服:小西

    点击交谈

    QQ客服:良子

    点击交谈

    QQ客服:闵月

    点击交谈
  • 衢州市柯城区财富中心3号楼2楼

  • 衢州格堂装饰有限公司

  • 扫一扫关注官方微信

    获取一手特惠信息

快速回复 返回顶部 返回列表