• 手机版

    扫码体验手机版

  • 微信公众号

    扫码关注公众号

登录注册
游客您好
第三方账号登陆

[衢州] 江湾半岛23-3-1#123㎡北欧——暖心治愈居所

[复制链接]
发表于 2022-6-9 17:04:04 | 显示全部楼层 |阅读模式
江湾半岛23-3-1#123㎡北欧——暖心治愈居所

格堂装饰为您全程记录装修全过程!

小区名称
江湾半岛
房屋面积
123㎡
户型结构
套房
装修风格
北欧
装修方式
半包
装修造价
查看请联系客服万元
设计师
许工
项目经理
胡工
装修公司
格堂装饰
完工实景
完工实景
水电全景
水电全景
VR全景
VR全景
设计说明
设计师采用了北欧风经典的原木+白色搭配
淋漓尽致的发挥了北欧的元素
摒弃了塞得满满当当的设计
使用了简约并且较少的家具及装饰点缀
巧妙运用了少即是多的设计语言
不仅扩大了家的空间
也保证了设计上的优雅与格调
更多信息
效果图
e52a93cb2bc06bef3dcabb6278d5227.jpg

59d94cba8bbc7f9372f941a3d8fa9d4.jpg
回复

使用道具 举报

 楼主| 发表于 2022-6-9 17:04:29 | 显示全部楼层
回复 支持 反对

使用道具 举报

 楼主| 发表于 2022-6-9 17:08:19 | 显示全部楼层
原始结构图
f815adfb399bac182d0ae70b157f41c_副本.jpg
回复 支持 反对

使用道具 举报

 楼主| 发表于 2022-6-9 17:08:34 | 显示全部楼层
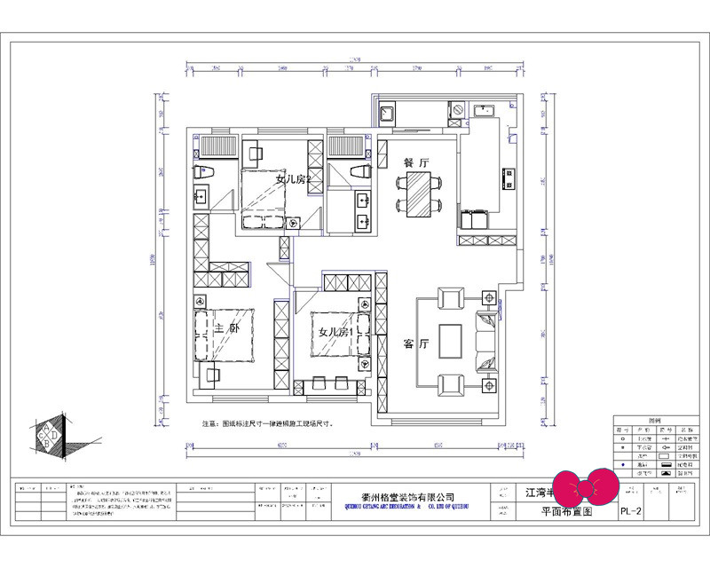
平面布置图
f944e647614b888ec28de1d1d411527_副本.jpg
回复 支持 反对

使用道具 举报

 楼主| 发表于 2022-6-9 17:11:07 | 显示全部楼层
开工仪式准备,开工横幅、鲜花、礼花准备到位
IMG_20220605_090949.jpg

回复 支持 反对

使用道具 举报

 楼主| 发表于 2022-6-9 17:12:05 | 显示全部楼层
大门保护到位,防止施工过程中磕碰到
IMG_20220605_085414.jpg
回复 支持 反对

使用道具 举报

 楼主| 发表于 2022-6-9 17:12:32 | 显示全部楼层
电梯楼道墙地面保护到位
IMG_20220605_085424.jpg

IMG_20220605_085426.jpg

IMG_20220605_085429.jpg

IMG_20220605_085430.jpg

IMG_20220605_085432.jpg

回复 支持 反对

使用道具 举报

 楼主| 发表于 2022-6-9 17:12:55 | 显示全部楼层
电梯楼道墙地面保护到位
IMG_20220605_085440.jpg

IMG_20220605_085444.jpg

IMG_20220605_085446.jpg

IMG_20220605_085448.jpg

IMG_20220605_085451.jpg

回复 支持 反对

使用道具 举报

 楼主| 发表于 2022-6-9 17:13:20 | 显示全部楼层
简易马桶到位
IMG_20220605_085345.jpg

IMG_20220605_085350.jpg
回复 支持 反对

使用道具 举报

 楼主| 发表于 2022-6-9 17:13:48 | 显示全部楼层
燃气表保护到位
IMG_20220605_085801.jpg
回复 支持 反对

使用道具 举报

您需要登录后才可以回帖 登录 | 立即注册

本版积分规则

全国统一客服电话
0570-8028505

24x7小时免费咨询

  • 官方在线客服

    QQ客服:小西

    点击交谈

    QQ客服:良子

    点击交谈

    QQ客服:闵月

    点击交谈
  • 衢州市柯城区财富中心3号楼2楼

  • 衢州格堂装饰有限公司

  • 扫一扫关注官方微信

    获取一手特惠信息

快速回复 返回顶部 返回列表