• 手机版

    扫码体验手机版

  • 微信公众号

    扫码关注公众号

登录注册
游客您好
第三方账号登陆

[龙游] 阳光水岸8-4-6#188㎡新中式———东方气韵

[复制链接]
发表于 2022-6-8 11:00:45 | 显示全部楼层 |阅读模式
东方气韵

格堂装饰为您全程记录装修全过程!

小区名称
阳光水岸
房屋面积
188㎡
户型结构
复式
装修风格
新中式
装修方式
半包
装修造价
查看请联系客服万元
设计师
陈工
项目经理
谢工
装修公司
格堂装饰
完工实景
完工实景
水电全景
水电全景
VR全景
VR全景
设计说明
主要考虑功能使用上方便舒适,业主喜欢新中式风格,设计师将现代元素与中式元素结合相得益彰,选择了统一定制,达到色彩、材质、风格的高度统一。新中式家具围合摆放,简约与精致做工结合,体现中式的大气与讲究
更多信息
回复

使用道具 举报

 楼主| 发表于 2022-6-8 11:02:38 | 显示全部楼层
本帖最后由 格堂小静 于 2022-12-9 11:12 编辑

一楼原始结构
IMG_4339.PNG
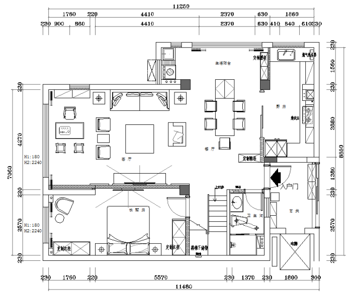
一楼平面布置
IMG_4341.PNG
回复 支持 反对

使用道具 举报

 楼主| 发表于 2022-6-8 11:03:26 | 显示全部楼层

二楼原始结构图
IMG_4340.PNG
二楼平面布置图
IMG_4342.PNG
回复 支持 反对

使用道具 举报

 楼主| 发表于 2022-6-8 11:04:05 | 显示全部楼层


IMG_3420.JPG

IMG_3421.JPG
回复 支持 反对

使用道具 举报

 楼主| 发表于 2022-6-8 11:04:22 | 显示全部楼层


IMG_3422.JPG

IMG_3423.JPG
回复 支持 反对

使用道具 举报

 楼主| 发表于 2022-6-8 11:04:37 | 显示全部楼层


IMG_3424.JPG

IMG_3425.JPG
回复 支持 反对

使用道具 举报

 楼主| 发表于 2022-6-8 11:10:52 | 显示全部楼层


IMG_3426.JPG

IMG_3427.JPG
回复 支持 反对

使用道具 举报

 楼主| 发表于 2022-6-8 11:11:07 | 显示全部楼层


IMG_3429.JPG

IMG_3430.JPG
回复 支持 反对

使用道具 举报

 楼主| 发表于 2022-6-8 11:11:29 | 显示全部楼层


IMG_3431.JPG

回复 支持 反对

使用道具 举报

 楼主| 发表于 2022-6-8 11:13:44 | 显示全部楼层

窗户保护防止灰尘后期磕碰到
IMG_3413.JPG

IMG_3414.JPG
回复 支持 反对

使用道具 举报

您需要登录后才可以回帖 登录 | 立即注册

本版积分规则

全国统一客服电话
0570-8028505

24x7小时免费咨询

  • 官方在线客服

    QQ客服:小西

    点击交谈

    QQ客服:良子

    点击交谈

    QQ客服:闵月

    点击交谈
  • 衢州市柯城区财富中心3号楼2楼

  • 衢州格堂装饰有限公司

  • 扫一扫关注官方微信

    获取一手特惠信息

快速回复 返回顶部 返回列表