• 手机版

    扫码体验手机版

  • 微信公众号

    扫码关注公众号

登录注册
游客您好
第三方账号登陆

[常山] 常山百悦城6-3-5#206㎡简约风——家简·而不减

[复制链接]
发表于 2022-5-28 10:57:48 | 显示全部楼层 |阅读模式
常山百悦城6-3-5#206㎡简约风——家简·而不减

格堂装饰为您全程记录装修全过程!

小区名称
百悦城
房屋面积
206㎡
户型结构
复式
装修风格
现代
装修方式
半包
装修造价
查看请联系客服万元
设计师
郑工
项目经理
施工
装修公司
格堂装饰
完工实景
完工实景
水电全景
水电全景
VR全景
VR全景
设计说明
空间的架构思路是 “以情感为价值导向 ”,将无用之物剔除之后,留下的是精挑细选的必要存在。因为足够简单,所以每一处都在用力地表述空间,表达情感。一个人心中的家,并不仅仅是一间属于自己的房子,而是长年累月在这间房子里度过的生活。
更多信息
效果图
9efbdc039e3853524b0e2a486f24d19.png

74ba3552b199b299a4d1e0443ba0b35.png

40ffbee037fba14d2c23143e4f07ffc.png

427327abf1c2d540dd62f85eb5dc655.png
回复

使用道具 举报

 楼主| 发表于 2022-5-28 10:58:06 | 显示全部楼层
回复 支持 反对

使用道具 举报

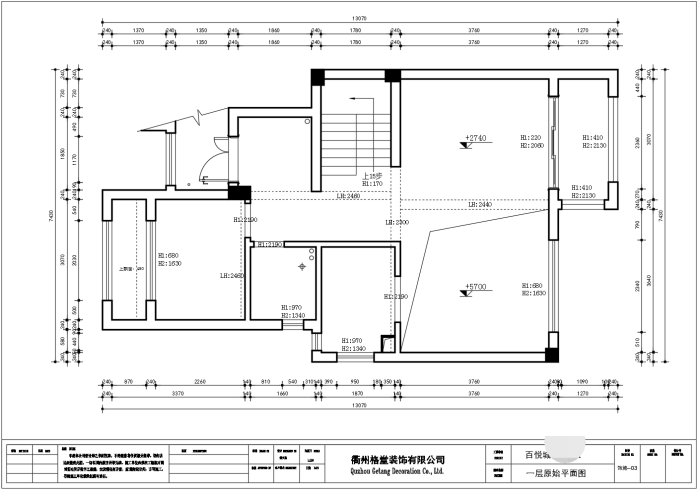
 楼主| 发表于 2022-5-28 10:58:59 | 显示全部楼层
本帖最后由 格堂小丽 于 2022-5-28 11:00 编辑

一层原始结构图
789966ccd3871a7840e91bd9dabee13_看图王.png
回复 支持 反对

使用道具 举报

 楼主| 发表于 2022-5-28 10:59:54 | 显示全部楼层
二层原始结构图
96ccba0b5474ce399f78b226f26784c_看图王.png
回复 支持 反对

使用道具 举报

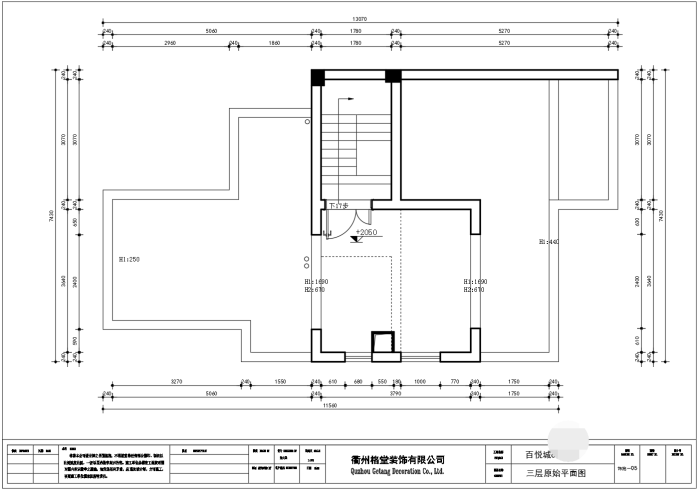
 楼主| 发表于 2022-5-28 11:00:30 | 显示全部楼层
顶楼原始结构图
c909a3f792a8a5b1f4cc88e3d3e8283_看图王.png
回复 支持 反对

使用道具 举报

 楼主| 发表于 2022-5-28 11:01:56 | 显示全部楼层
一层平面布置图
946e53fef00b5911b98eca5b79cfcaa_看图王.png
回复 支持 反对

使用道具 举报

 楼主| 发表于 2022-5-28 11:02:20 | 显示全部楼层
二层平面布置图
33cc72f0c8e4ec66ea94610d61de46e_看图王.png
回复 支持 反对

使用道具 举报

 楼主| 发表于 2022-5-28 11:02:53 | 显示全部楼层
顶楼平面布置图
8a17aed6ecd55cffa1175d2b904e5dd_看图王.png
回复 支持 反对

使用道具 举报

 楼主| 发表于 2022-5-28 11:10:00 | 显示全部楼层
开工仪式准备好
0b6c181816af89724aaf5a67b17a80c.jpg
回复 支持 反对

使用道具 举报

 楼主| 发表于 2022-5-28 11:10:45 | 显示全部楼层
鲜花礼炮准备好
1968e75ccebfa026b53e8c8bbfc823b.jpg

bd8d996ed200ca5a7315b6d27093f20.jpg
回复 支持 反对

使用道具 举报

您需要登录后才可以回帖 登录 | 立即注册

本版积分规则

全国统一客服电话
0570-8028505

24x7小时免费咨询

  • 官方在线客服

    QQ客服:小西

    点击交谈

    QQ客服:良子

    点击交谈

    QQ客服:闵月

    点击交谈
  • 衢州市柯城区财富中心3号楼2楼

  • 衢州格堂装饰有限公司

  • 扫一扫关注官方微信

    获取一手特惠信息

快速回复 返回顶部 返回列表